AADL Traverwood Library

AADL Traverwood Library

25. April 2011

AADL Traverwood Library
2008

Ann Arbor, MI

Client
Ann Arbor District Library

Architect
inFORM studio
Northville, Michigan

Design Principal
Michael Guthrie

Technical Principal
Kenneth Van Tine

Design Dir./ PM
Cory Lavigne

Project Team
Andrew Mannion
Lindsay Cooper
Amy Baker
Jason Roberts
Elizabeth Huck
Melissa Alexander

Managing Principal
Gina Van Tine

Associate Architects
VPS Architecture

Structural Engineer
Robert Darvas Associates

MEP/FP Engineer
Durkin & Villalta Partners Engineering

Landscape Architect
Grissim Metz Andriese Associates

Lighting Designer
inFORM studio

Interior Designer
inFORM studio

Construction Manager
O’Neal Construction

Ash Hardwood Contractor
John Yarema

Site Area
4.34 acres

Building Area
16,600 sq.ft.

Photos
Justin Maconochie Photography

Exterior View – Traverwood Drive

What were the circumstances of receiving the commission for this project?

The original commission came to us through an RFP response. As we prepared for the interview, some of the initial thoughts forwarded from the Library Board of Directors indicated the desire to remove a vast majority of the trees from the site in order to facilitate a significantly higher quantity of parking than the two branch libraries previously constructed. Unanticipated user volumes had forced the AADL to provide alternative parking locations upon completion of their first branch. As a preemptive measure, they doubled the number of parking space requirements (50 spaces to 100) to meet projected demands. However, prior to our interview, we organized a brief site visit and were witness to a many of the established ecosystems and forms of wildlife inhabiting the site; including a pileated wood pecker nesting in the branches above, a skittish garter snake, a lumbering green turtle and a myriad of deer tracks on the forest floor. It was at this time that we, as a design team, committed to a more empathic response and would approach our proposal as such.

Exterior View – Reading Room/Parking Exit

During our interview, we expressed these concerns to the AADL and the Library Board of Directors. There was no value to be gained in clearing the site and removing so many mature trees. There had to be other alternatives, other approaches which would preserve this vision of a sylvan symbiosis. We suggested one, in which the building would tread lightly at the edge, respectful of cohabitation, promoting reflection and protecting the woods, not destroying them.

With a strong sustainable agenda in place, the AADL agreed with this approach, while remaining insistent we allow provisions for additional parking totals. Further evaluation of on-site circulation brought about considerations to allow parking under the building, reducing the amount of impervious surface on-site and minimizing further site clearing. We also initiated meetings with the City of Ann Arbor which led to the implementation of on-street parking along both Traverwood and Huron Parkway, thereby reducing further, the amount of on-site parking required.

Interior View – Entry Lobby

Can you describe your design process for the building?

In 2005, The Ann Arbor District Library (AADL) purchased approximately four acres of property for a new branch library to serve the Northeast quadrant of the city of Ann Arbor. This was to be the third branch library constructed by the current administration since 2002 and will replace a 4000 sq.ft. branch library within an existing strip mall located along a nearby commercial corridor. The site, heavily wooded and densely vegetated, is located on the Southwest corner of the intersection of Huron Parkway and Traverwood Drive.

A thorough site analysis identified edges of the property along the Southwest corner which were scarred and sparsely vegetated, an ideal and well suited location for placement of the building footprint. Locating the building at the property corner accomplished three primary objectives:

1. The creation of a protective barrier between the existing eco-systems within the woods and the inhabitants of the city.
2. Established urban street presence along the street and sidewalk edge.
3. Minimal site impact, thereby maintaining the biodiversity of the natural environment and reducing sprawl.

Site Plan

In the early stages of program development for the new Northeast Branch of the AADL, we initiated a research phase intended to illustrate and study the complex nuances and relationships between the main library and the four branches. The process explored a variety of methodologies, graphically representing gathered data in order to locate and analyze existing and latent relationships within the comprehensive library network. This in turn provided a basis to better understand how each of the separate facilities related to one another as a cohesive institution and revealed hidden potentials, providing valuable new insights to the design approach. The study included data as diverse as:

• Neighboring Typology
• Precedent Studies
• Media Circulation (Past, Present and Projected)
• Media Transportation
• Material Usage and Distribution in the existing collections
• Trends in Media Circulation
• Space : Collection ratios
• Hierarchal Collection / Media Circulation within the library
• Material Owned : Material Circulated ratios
• Door Count ratios
• User Geographic boundaries
• Complimentary Typology
• Population Growth and Projections
• General Conclusions

From the research, we were able to determine a number of conclusions and recommendations, including general and system wide findings concerning overall operations within the Main-to-Branch and Branch-to-Branch connections, as well as conclusions more specific to the Northeast branch.

Interior View – Entry Lobby

During the early stages of the site planning process, we collectively began to discuss and investigate considerations for harvesting wood from the site for re-use in the building. Although densely populated, many of the trees were Ash, suffering the effects of the Emerald Ash Borer (EAB), a destructive beetle, which aggressively attacks North American Ash trees through feeding on the water and nutrient conducting tissues under the bark, killing the tree over a period of 3 to 5 years. The first recorded outbreak of the insect was in Michigan in 2002. It is assumed that the insect entered the US undetected in wood packing material from China in the mid 1990’s. By 2007, an estimated 30 million ash trees have been killed in South East Michigan alone. Wide spread destruction by the EAB has cost municipalities, property owners, nursery operators and forest product industries tens of millions of dollars in removal, disposal and replanting efforts. Our research showed that this particular tree species is especially well-suited to milling, as the insect does not damage the interior portion of the wood. With so much value found in a close, abundant, natural resource, we began to propose unique uses of the wood in the floors, walls, ceiling and structure of the new branch library. Additionally, grants from the South East Michigan Resource Conservation & Development Council aided in the feasibility of this reutilization.

As the design progressed the use of Ash became more than a symbolic gesture, as it was first considered. The utilization of the Ash would become a major component to the design of the library interior. Used in the floors, walls and ceiling as an interior wrapper, the ash wood will flow from the main entry floor and walls into a ceiling condition stretching along the entire eastern interior edge of the building and culminating in an Ash wrapped reading rooms whose primary views will be focused westward from where the wood originated.

Interior View – Floor Weave

Additionally, large sections of the logs were used as structural columns, accommodating vertical and lateral loading along the large southwest expanse of glass. The bark has been stripped from these log columns exposing the randomized grooves and carvings created by the EAB larvae. The intention to harvest and reutilize the Ash wood accomplishes two primary objectives of the owner and designer alike:

• Harvest and re-use of Ash within the library as a viable indigenous material.
• To take the Ash and tell a story with it.

The process of reclaiming the dead ash for use in the library will serve as a public reminder of the many ways in which proliferation of this dying wood can achieve a nw life and remain a valuable resource. It leaves a physical record of this historic moment, illustrating how the EAB destroyed the Ash trees both regionally and more specifically, on this site creating, what is in essence, a visual and tactile testament to the life and destruction of the Ash tree in Michigan and surrounding area. It allows generations to be exposed to an autopsy report of an extinct species in the region.

Interior View – Raining Wood

How does the completed building compare to the project as designed? Were there any dramatic changes between the two and/or lessons learned during construction?

Certain aspects of the project did not survive the “value engineering” phase. As we moved from design into the construction and bid phases, building material prices were skyrocketing nationally in the US as resources and materials were being supplied to the southern states as they recovered from the devastation of Hurricane Katrina. The increasing prices and project estimate prompted us to shift the originally designed copper skin to a custom galvalume panel and corten steel. Additionally, the main volume of the library was designed to accommodate a green roof system, but again, spiraling costs forced us to scale back. The current roof system is a membrane (adhered) Sarnafast system (S-237 membrane – 60 mil) on (2) layers of rigid insulation. However, the current membrane specification and underlying structural support would accommodate a green roof application, should the library choose to install one at a future date.

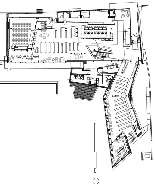
Floor Plan

How does the building compare to other projects in your office, be it the same or other building types?

With each new project, inFORM studio endeavors to create an architecture that responds to and represents contemporary societal concerns, embracing current cultural conditions and modern technologies. Each project is a unique exploration and evocative in its expression of the construction process, celebrating unique functional requirements with innovative forms and details.

E-Mail Interview conducted by John Hill

Building Sections
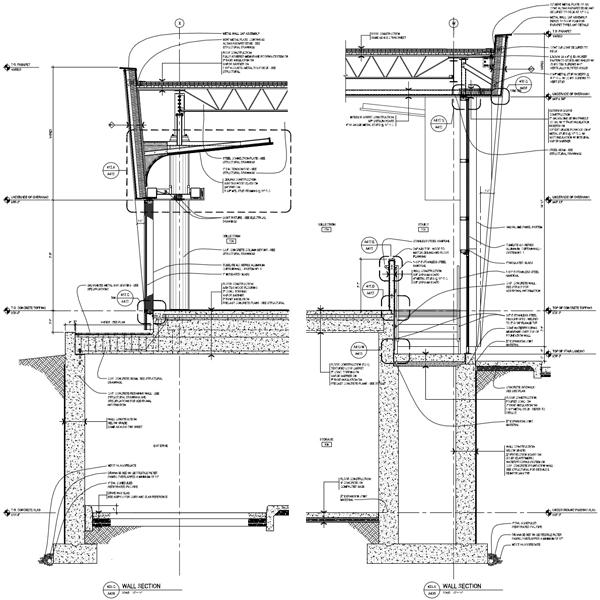
Wall Sections

AADL Traverwood Library
2008

Ann Arbor, MI

Client
Ann Arbor District Library

Architect
inFORM studio
Northville, Michigan

Design Principal
Michael Guthrie

Technical Principal
Kenneth Van Tine

Design Dir./ PM
Cory Lavigne

Project Team
Andrew Mannion
Lindsay Cooper
Amy Baker
Jason Roberts
Elizabeth Huck
Melissa Alexander

Managing Principal
Gina Van Tine

Associate Architects
VPS Architecture

Structural Engineer
Robert Darvas Associates

MEP/FP Engineer
Durkin & Villalta Partners Engineering

Landscape Architect
Grissim Metz Andriese Associates

Lighting Designer
inFORM studio

Interior Designer
inFORM studio

Construction Manager
O’Neal Construction

Ash Hardwood Contractor
John Yarema

Site Area
4.34 acres

Building Area
16,600 sq.ft.

Photos
Justin Maconochie Photography

Related articles 

Featured Project 

Atelier KI JUN KIM

House by the Wall

Other articles in this category