Anthropologie Oklahoma City

Anthropologie Oklahoma City

9. July 2012

Anthropologie Oklahoma City
2011

Oklahoma City, OK

Client
Anthropologie

Architect
EOA/Elmslie Osler Architect
New York

Design Principal
Robin Osler

Project Manager
Sarah Bieri

Project Team
Tim McAndrew
Karolina Szulc

Associate Architect
Phillips Partnership

Structural Engineer
Phillips Partnership

MEP/FP Engineer
Devita and Associates

Contractor
Murray Costello Construction

Fixtures
Fleetwood Fixtures

Site Area
10,000 sf

Building Area
10,000 sf

Photos
Robert Reck

View of Exterior

What were the circumstances of receiving the commission for this project?

We had designed 14 stores previously for the Anthropologie brand so we were awarded the commission based on our past experience with them.

View of interior garden area

Can you describe your design process for the building?

We always begin with gathering images that inspire and reference a general theme. For this store we thought about the Great Plains of Oklahoma which imply a horizontality as well as a tone. The existing building shell that we were given was already very horizontal so to counter that, we pulled images expressing vertical rhythms, using texture through materiality to imply a landscape. We also wanted to integrate the exterior and interior so we referenced courtyards and large framed openings. We provided three initial sketches of plans and elevations for review and ultimately one scheme was chosen to develop that was a combination of the three.

View of interior garden area

How does the completed building compare to the project as designed? Were there any dramatic changes between the two and/or lessons learned during construction?

We had designed a ceiling of folding planes to create an interior landscape above. On the exterior, there was a more extensive grouping of vertical fluted wood piers. The ceiling became a flat lid and a number of the fluted wood columns were removed due to budget constraints that developed later on in the project. We had also wanted to use fluted columns on the inside and the garden was a more sculptural element. These were simplified, also due to budget requirements.

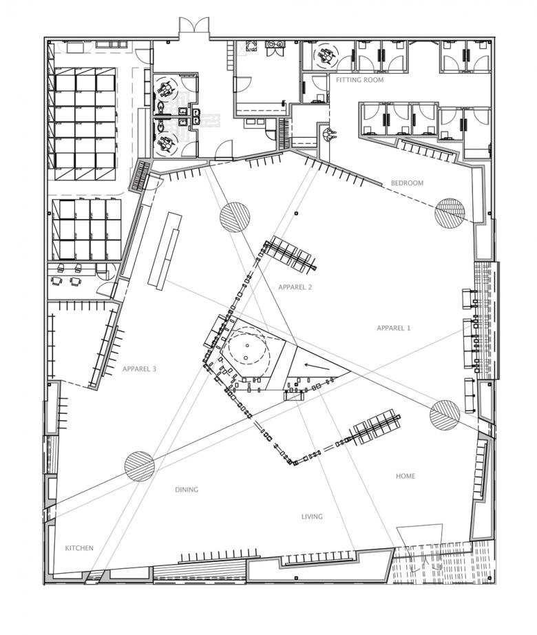
Floorplan

How does the building compare to other projects in your office, be it the same or other building types?

We had designed 14 other stores for Anthropologie, each one unique. The scale of each store is similar but each has its own identity related to its context. The challenge is to design each store as its own destination yet connect it to the brand as a whole. The process we used for the Oklahoma City store is similar to how we approach all of our projects – listening to the client, working through inspiration sources, thinking carefully about how the space will be used. No matter how different each of our projects may be programmatically, they each have the same underlying philosophy.

Email interview conducted by John Hill.

Elevation1
Elevation2

Anthropologie Oklahoma City
2011

Oklahoma City, OK

Client
Anthropologie

Architect
EOA/Elmslie Osler Architect
New York

Design Principal
Robin Osler

Project Manager
Sarah Bieri

Project Team
Tim McAndrew
Karolina Szulc

Associate Architect
Phillips Partnership

Structural Engineer
Phillips Partnership

MEP/FP Engineer
Devita and Associates

Contractor
Murray Costello Construction

Fixtures
Fleetwood Fixtures

Site Area
10,000 sf

Building Area
10,000 sf

Photos
Robert Reck

Related articles 

Featured Project 

Atelier KI JUN KIM

House by the Wall

Other articles in this category