Arch Wall House

Arch Wall House

1. May 2015

Arch Wall House
2014
Tokyo

Architects
naf architect & design Inc.

Design Principal
Akio Nakasa

Project Team
Daisuke Aoki

Structural Engineer
Satoshi Horie, Horie architects & engineers co. ltd.

Contractor
Sansho Kensetsu

Kitchen
Toyo Kitchen, LIXIL

Bath
Daiwa Juko, LIXIL

Toilet
Panasonic, LIXIL

Hardware
Interform Mfg

Lighting fixture
Louis Poulsen, Panasonic, Endo Lighting Corp.

Site Area
Building A: 202.31 ㎡
Building B: 251.91 ㎡

Building Area
Building A: 88.15 ㎡
Building B: 104.44 ㎡

Total Floor Area
Building A: 88.15 ㎡
Building B: 104.44 ㎡

Photo
Toshiyuki Yano

Exterior viewed from the south


Please give us an overview of the project.

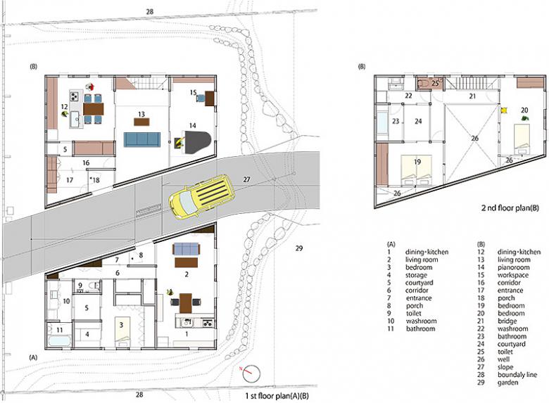
The arched walls of these two residences rise from either side of a sloping path that passes between them. On the left side is a single-story home for a woman living alone (Building A), and on the right side is a two-story home for a family of three that includes a couple and their child (Building B). The woman in Building A is the mother of the husband in Building B. 

Exterior viewed from the south
Looking towards the south side from the sloping path
Exterior viewed from the north


What was most important for you during the design process?

Measuring over 1000 ㎡, the large lot originally contained a main house, a cottage, a small torii gate, a shrine, and an elaborate garden with an alleyway and plantings. The lot borders a municipal road on the south and a former national highway on the north. We located buildings A and B on the site of the main house, which had been demolished, and widened and elongated the alley to form a sloping path linking the streets to the north and south. Aside from these changes we left the property as much as possible unchanged. It had existed in the community for a long time in a half-destroyed state, and anyone had been able to enter at will from the adjoining properties to the east and west or from the municipal road. For that reason we decided that it would be best not to abruptly transform the entire site.

Taking into consideration transportation in the community and convenience, we designed the sloping path so that a car can pull up to the entryway of either building A or B. The entry to Building A is barrier free; to prevent crime, the floor levels are raised so that windows are at least two meters above the exterior ground level.

Second floor of Building B
Second floor of Building B
First floor of Building B


How does this project fit into current architectural trends such as sustainability, social function, or technology? 

The peaks of the curved walls that extend up from either side of the sloped road are just barely separated from one another, meaning that buildings A and B are not considered a multi-generational household under the law. However, while each structure is a complete unit, we attempted to create two homes whose relationship is somewhere between neighboring and facing one another, but also share some elements of daily life and space. 

In Japan today the nuclear family is becoming more common and the average number of people per household is decreasing. I wanted to use architecture as a tool for adjusting relationships between generations and neighbors, and by doing so to open up new possibilities for how we live.

First floor of Building B
First floor of Building A


What challenges did you face in the project? How did you respond to them?

Because there is extremely heavy traffic on the former national highway, we did not include any windows on the north side of either building. The windows on the east and west sides face neighboring houses, so we also kept these small and as few in number as possible. Those on the south side, facing the garden, are large. We included courtyards and skylights in both buildings, which together with the sloping ceiling and curved walls create diversity in the interior spaces.

The courtyards are the largest inlets for sunlight, and in order to draw the light along the sloping ceilings and into the interior, we included glass transom windows and wall partitions. Light from the skylights also reflects off the porcelain tiles lining the curved walls, transforming the feeling of the space depending on the weather or time of day. On sunny days the light has a sharp edge to it, while on cloudy days it’s softer, and in the mornings and evenings the rooms are suffused with a faint periwinkle light.

First floor of Building A
Diagram 
Layout 
Floor plan 


E-mail interview by Yuna Yagi (translated from Japanese by Winifred Bird)  

Arch Wall House
2014
Tokyo

Architects
naf architect & design Inc.

Design Principal
Akio Nakasa

Project Team
Daisuke Aoki

Structural Engineer
Satoshi Horie, Horie architects & engineers co. ltd.

Contractor
Sansho Kensetsu

Kitchen
Toyo Kitchen, LIXIL

Bath
Daiwa Juko, LIXIL

Toilet
Panasonic, LIXIL

Hardware
Interform Mfg

Lighting fixture
Louis Poulsen, Panasonic, Endo Lighting Corp.

Site Area
Building A: 202.31 ㎡
Building B: 251.91 ㎡

Building Area
Building A: 88.15 ㎡
Building B: 104.44 ㎡

Total Floor Area
Building A: 88.15 ㎡
Building B: 104.44 ㎡

Photo
Toshiyuki Yano

Related articles 

Featured Project 

Atelier KI JUN KIM

House by the Wall

Other articles in this category