US Building of the Week

Ardmore House

Kwong Von Glinow | 18. January 2021
Photo: James Florio
Project: Ardmore House, 2020
Location: Chicago, Illinois, USA
Client: Kwong Von Glinow
Architect: Kwong Von Glinow
  • Design Principals: Lap Chi Kwong, Alison Von Glinow
  • Project Team: Shichen Li, Botao Sun, Tammy Phan, Junfu Cui, Jimmy Carter, Winee Lau, Nan Xu
Structural Engineer: Goodfriend Magruder Structure
MEP/FP Engineer: blakeMEP EES
Contractor: OSLO Builders, LLC
Site Area: 3,125 sf
Building Area: 3,100 sf
Photo: James Florio
Please provide an overview of the project.

For this house bordering an alleyway on a traditional Chicago lot, Kwong Von Glinow flips the traditional residential section, arraying bedrooms on the first floor and living spaces on the second. This approach supports contemporary ways of living, emphasizing communal areas, interconnectivity, and flexible live-work spaces that receive ample natural light and engage the surrounding urban context.

Photo: James Florio

A curved double-height atrium runs lengthwise from front to back doors, creating an interior courtyard that vertically connects the common areas on the first and second floors. Defined by a large picture window and a curving wall, the courtyard offers an informal multi-purpose area where residents can relax and their children can play.

Photo: James Florio

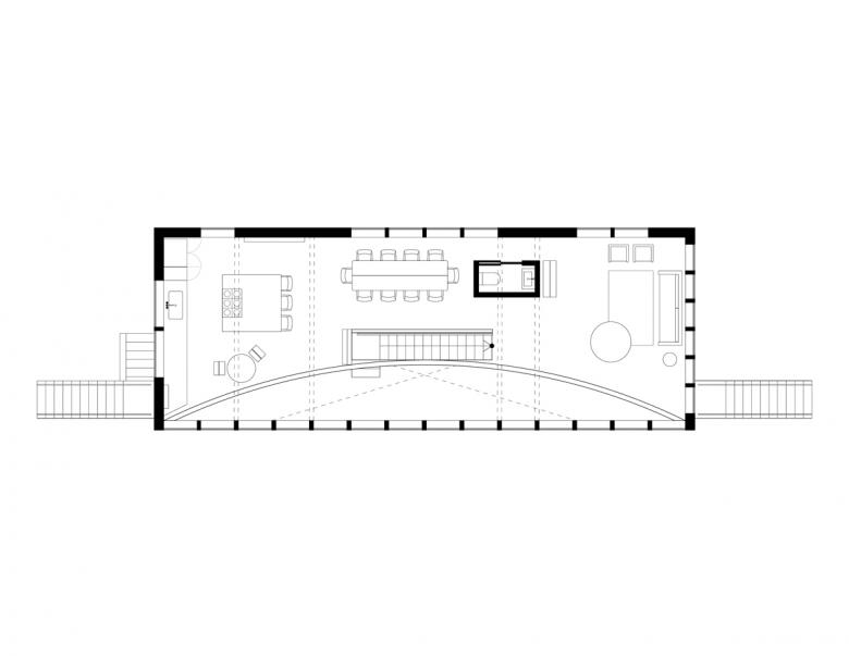
A stair tucked behind the courtyard’s curving wall leads to the second floor. The open plan is organized around four trusses that support the house’s Chicago balloon frame. These trusses distinguish five areas set around the curve of the balustrade: the kitchen, the island, the dining room, the powder room, and the living room. Throughout, a restrained colors and materials palette—white walls and white oak wood floors, trusses, and furnishing—draws attention to the qualities of the spaces themselves. All of the shared and public spaces on the second floor are oriented towards a ribbon window that spans the length of the interior courtyard. The 56-foot-long window floods the home with natural light and opens panoramic views that capture the fullness of the surrounding neighborhood: century-old trees, the back balconies and fire-escapes of neighboring buildings, and street lamps with their meandering cabling.

Photo: James Florio
How does the design respond to the unique qualities of the site?

The design of the home balances privacy and openness on the urban site. Off the courtyard’s curving inner wall lie all of the home’s bedrooms, pushed away from the alleyway towards the neighboring lot. The two bedrooms nearer the front of the house have windows that look toward the neighbor’s Chicago brick wall, providing privacy from the view of the street and neighbors. The primary bedroom suite is located at the back of the home, overlooking a private garden.

Photo: James Florio

The exterior of the home engages the neighborhood’s traditional vernacular style while reflecting the organization of the interior spaces. The design shifts the facade hierarchy from the street to the alleyway, the most urban of the contexts. The street-facing facade has a row of half-height ribbon windows along the second floor and a single door on the first level, maintaining privacy for the front bedroom. On the alleyway side, floor-to-ceiling windows on the second floor and a large picture window facing out to the alleyway from the interior courtyard open the interiors to the urban surroundings.

Photo: James Florio
What products or materials have contributed to the success of the completed building?

The exterior materials approach emphasizes the sectional flip and lends visual rhythm to the monolithic building. The house sits atop a concrete base with a dual-color Accoya wood rain screen system. The bottom half of the first level is clad in grey wood, while black wood lines the top half of the first level and all of the second.

Email interview conducted by John Hill.

Photo: James Florio
Photo: James Florio
Photo: James Florio
Photo: James Florio
Site Plan (Drawing: Kwong Von Glinow)
Level 1 Plan (Drawing: Kwong Von Glinow)
Level 2 Plan (Drawing: Kwong Von Glinow)
Basement Plan (Drawing: Kwong Von Glinow)
Model with animation (Photo: Kwong Von Glinow)

Related articles 

Other articles in this category