U.S. Building of the Week
Art Barn
In addition to serving as a residence, the aptly named Art Barn in Aspen, Colorado, contains gallery spaces inside a gabled, wood-sided structure reminiscent of an old barn. The architects at Rowland+Broughton answered a few questions about the building.
Location: Aspen, Colorado, USA
Client: Confidential
Architect: Rowland+Broughton Architecture / Urban Design / Interior Design
- Design Principals: John Rowland, AIA; Sarah Broughton, AIA, NCIDQ
- Project Manager: Amanda Christianson, AIA
- Project Team: Bryan May, AIA
MEP/FP Engineer: Resource Engineering Group
Landscape Architect: Shannon Murphy Landscape Architects
Lighting Designer: Elumenate
Interior Designer: Atelier AM
Contractor: Hansen Construction
Civil Engineer: High Country Engineering
A/V: Paragon
Building Area: 6,200 sf
Art Barn is designed for the purpose of gathering, discussion and displaying contemporary mixed media art forms. The owners use the residence for engagement with the art community and raising awareness of the arts by hosting events supporting local entities and housing visiting artists.
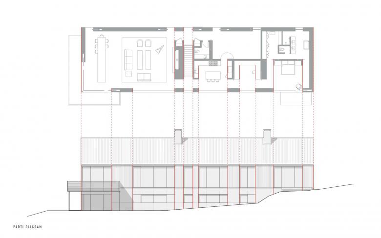
At 6,200 square feet, the home is positioned so the entry façade addresses a pastoral ranch meadow and the rear façade frames panoramic Aspen views. The design was predicated upon the vision of allowing a rural vernacular to rest naturally on the site. The singular gable form, along with the minimalist detailing of the shou-sugi-ban wood siding and fenestration, suggests a simple, pure design carried to the inside.
The great room is designed for flexibility with furniture easily removed to accommodate dinner parties, musical receptions, and other events. Two distinct gallery spaces are designed to display a range of video art arrangements.
Art Barn’s crescendo is the tearoom. Designed as a modern interpretation of an authentic Japanese tearoom, and to accommodate traditional tea ceremonies, the space is located behind hidden doors at the lower level video art gallery. It’s accessed via two entrances; one a humble entrance for the tea master, the other a formal reception for guests. Consultation with tea masters from University of Kyoto informed the sourcing of traditional Japanese materials, including sliding shoji doors with hand-made Japanese shoji inlay, western red cedar paneling, Arakabe plaster walls, hand-made tatami mats, reclaimed wood for a “god pillar.” Indoor/outdoor connection with an Eastern inspired mountain moss garden is through a corner sliding glass door.
Sustainable materials throughout the home include shou-sugi-ban wood siding, zinc corrugated metal roofing, architectural concrete, white oak, and Tadelakt plaster.
A soothing interior palette features natural materials, including European white oak flooring, light grey plaster walls, rift-sawn white oak, and Aegean limestone countertops. Minimally framed windows and doors, and 18-inch-thick walls, allow for oversized pocket window and doors systems, which bring in abundant natural light. The walls provide the optimal backdrop for video art displays. Sixteen-inch-wide wood plank floors align with walls with total precision and further provide the simplicity and clarity needed to ensure the art is the focus. Outlets, switches and solar shades are meticulously detailed and tucked away so as not to impede viewing art or the overall experience of the space. Even the concrete foundation wall in the lower level was designed to complement the surrounding art.
Email interview conducted by John Hill.
- Zinc corrugated metal roof
- Charred cypress wood siding
- Frameless windows and doors by TRU Schuco
- European white oak flooring
- Custom designed sliding door hardware by R+B
- Oversized pocket doors and frameless swing doors by Tueren Prospekt AGS
















