Artsquest Center at SteelStacks

Artsquest Center at SteelStacks

19. November 2012

Artsquest Center at SteelStacks
2012

Bethlehem, PA

Client
Artsquest

Architect
Spillman Farmer Architects
Bethlehem, PA

Managing Principal
Barry Pell, AIA

Design Principal
Joseph N. Biondo, AIA

Project Architect
Michael Metzger, AIA

Senior Designer
William Deegan

Project Team
Wayne Stitt, AIA, Christa Kraftician, AIA, Charles Shoemaker, AIA, Salvatore Verrastro, AIA, Joanne Titcomb, Deirdre Kwiatek, Randy Galiotto, Patrick Ruggiero, Sierra Krause, Joseph Balsamo, Clint Newton, Deborah Innis, Mark Piell, Elliot Nolter, Brian Brandis, AIA, Chris Connors, Mike Savage

Structural Engineer
Barry Isett & Associates

MEP Engineer
Brinjac Engineering

Acoustic Consultant
Acoustic Dimensions

Landscape Architect
Wallace Roberts & Todd

Civil Engineer
French & Parrello Associates

Food Service Consultant
Porter Khouw Consulting

Commissioning Consultant
The Stone House Group

Specifications Consultant
Conspectus

Construction Manager
Alvin H. Butz

Building Area
68,000 square feet

Exterior view

What were the circumstances of receiving the commission for this project?

The project started out with a national search for design firms. After a rigorous interview process, Spillman Farmer was ultimately chosen for our design sensibilities, keen understanding of the site’s history, technical expertise, and thoughtful approach to making meaningful spaces focused on human-centered design.

View from third floor terrace 

Can you describe your design process for the building?

We saw this as an opportunity to make architecture that is clear, precise and honest; one that honors the site’s industrial past while crafting spaces that feel as authentic as the iconic cathedrals of industry that surround it. The building’s form and function was predicated on performance. We delivered this by creating a building which was conceived as a finely tuned music box with public spaces opening up to and fronting the industrial machines; a community living room which shows clear evidence of how and why it was made.

For us, good design is not about how a building looks but how a building works. The ArtsQuest Center is a very flexible and adaptable building with the unique ability to hold five performance venues simultaneously. With that, acoustic properties, both isolation and absorption are paramount to the success of the building’s performance. Proper planning is the critical first step - each performance space is strategically located within the building to achieve acoustic success. Spaces are acoustically isolated from each other through structural isolation and with building mass; sand filled masonry walls and thickened structural slabs create the isolation while isolated walls/ceiling planes and insulation complete the dampening qualities. In spite of their reflective surfaces, interior performance spaces perform extraordinarily well.

Lobby view

How does the building compare to other projects in your office, be it the same or other building types?

Regardless of building type, function or scale, our design process is very focused and consistent. We are determined to develop an architecture that is grounded in a clear diagram, and rational plan. The buildings are rooted in their unique context, intended to be tactile and material based with rigorous and thoughtful detailing throughout.

Our buildings are distilled to what is absolutely necessary and show clear evidence of how and why it was made in an effort to become a learning experience for the building’s users for generations.

Site Plan

How does the building relate to contemporary architectural trends, be it sustainability, technology, etc.?

Although we have become a fashion conscience society, our buildings do not rely on contemporary trends. Our design process is guided by the fundamental principles of critical regionalism over style, or abstract concept. In addition, we are deeply influenced by the Shaker Philosophy of Design which is “do not make something if it is not necessary, but if it is both necessary and useful, do not hesitate to make it beautiful….”

The architecture we produce attempts to be authentic, resourceful and is fundamentally grounded in the unique history of each context.

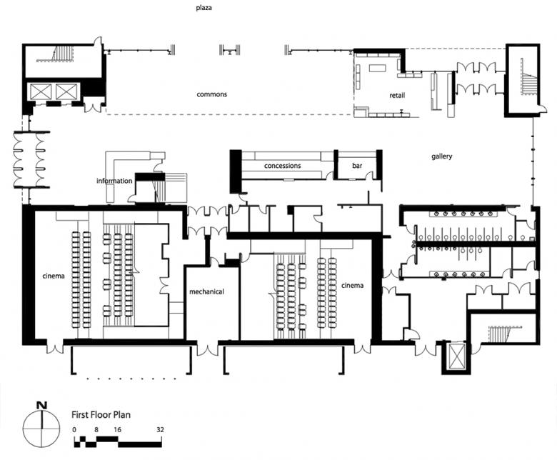
First Floor Plan

Are there any new/upcoming projects in your office that this building’s design and construction has influenced?

We have many exciting projects of various scales and building types in design. Each project is influenced by the explorations of the last. Our architecture favors the tectonic and tactile, and is constructed of authentic building materials harvested from the earth. We are fascinated with building materials and systems and have an unending curiosity for taking ordinary materials to extraordinary new heights. We will continue to push toward an architecture that is clear, precise, and honest – one that is grounded in the fundamentals of good design.

Email interview conducted by John Hill.

Exploded Axonometric

Artsquest Center at SteelStacks
2012

Bethlehem, PA

Client
Artsquest

Architect
Spillman Farmer Architects
Bethlehem, PA

Managing Principal
Barry Pell, AIA

Design Principal
Joseph N. Biondo, AIA

Project Architect
Michael Metzger, AIA

Senior Designer
William Deegan

Project Team
Wayne Stitt, AIA, Christa Kraftician, AIA, Charles Shoemaker, AIA, Salvatore Verrastro, AIA, Joanne Titcomb, Deirdre Kwiatek, Randy Galiotto, Patrick Ruggiero, Sierra Krause, Joseph Balsamo, Clint Newton, Deborah Innis, Mark Piell, Elliot Nolter, Brian Brandis, AIA, Chris Connors, Mike Savage

Structural Engineer
Barry Isett & Associates

MEP Engineer
Brinjac Engineering

Acoustic Consultant
Acoustic Dimensions

Landscape Architect
Wallace Roberts & Todd

Civil Engineer
French & Parrello Associates

Food Service Consultant
Porter Khouw Consulting

Commissioning Consultant
The Stone House Group

Specifications Consultant
Conspectus

Construction Manager
Alvin H. Butz

Building Area
68,000 square feet

Related articles 

Featured Project 

Atelier KI JUN KIM

House by the Wall

Other articles in this category