U.S. Building of the Week
Bill & Melinda Gates Center for Computer Science & Engineering
While the tech sector in the United States is synonymous with California's Silicon Valley, other parts of the country are making investments to teach and train tomorrow's computer scientists. The new Gates Center at the University of Washington caters to the thriving sector in Seattle, which is home to Amazon, Microsoft and other tech companies. LMN Architects Partner Stephen Van Dyck answered a few questions about the project.
Location: University of Washington, Seattle, WA, USA
Client: University of Washington
Architect: LMN Architects
Project Team: Julie Adams, Associate AIA; Andrew Carr; Michael Day; Melissa Eby; Eun Jun, AIA; John Lim, AIA; Evan McQuillen, Associate AIA; Mark Reddington, FAIA; George Shaw, FAIA; Mary Anne Smith, AIA; Stephen Van Dyck, AIA
Civil & Structural Engineer: Magnusson Klemencic Associates
MEP/FP Engineer: Affiliated Engineers, Inc.
Landscape Architect: Olin Partnership
Lighting Designer: Horton Lees Brogden Lighting Design
General Contractor/Construction Manager (GCCM): Mortenson Construction
Site Area: 96,520 sf
Building Area: 138,760 sf
We participated on a public RFQ (Request for Qualifications), then shortlisted Proposal phase, followed by shortlisted interviews. The project was delivered in the GCCM method of delivery, architect selection and then a selection of Construction Manager/General Contractor following shortly thereafter.
The Gates Center establishes a new standard for the study of computer science designed to attract a broad and diverse student population, while also enhancing the school’s connections to the campus, community, and thriving tech sector.
The new building fulfills a soaring demand for computer science education in the Pacific Northwest, and through its design, aims to enrich the diversity of talent that is so heavily in demand across the globe. The Paul G. Allen School of Computer Science and Engineering has experienced a dramatic rise in stature since 2003, when the existing 165,000 square foot Paul G. Allen Center for Computer Science & Engineering, also designed by LMN Architects, was completed. The design of the new Bill & Melinda Gates Center supports the school’s mission to foster interdisciplinary collaboration and offers a contemporary vision for the future.
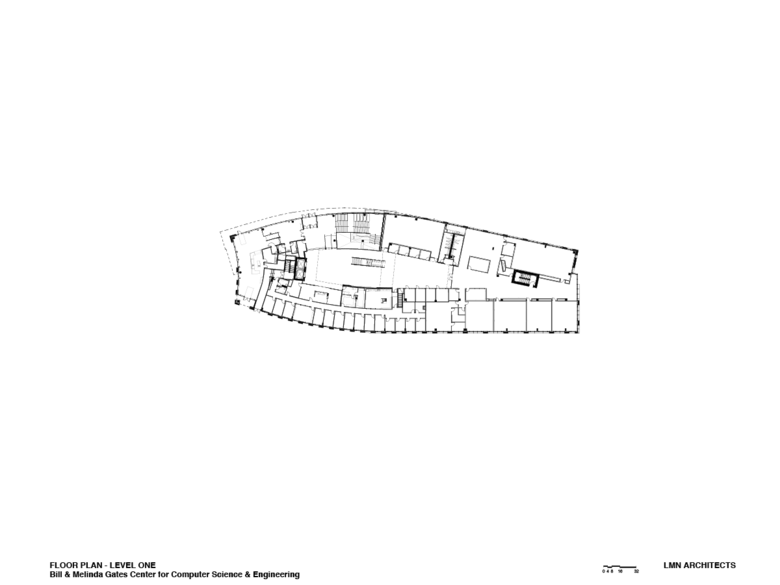
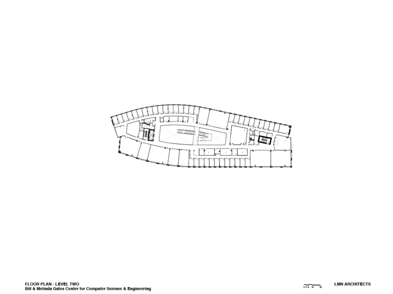
Departing from the minimal, bare spaces typically associated with the technology sector, the Gates Center offers a warm, welcoming, and accessible environment for students, researchers, and faculty. The building features a two-sided curving form that responds to the unique topography and flow of campus circulation. A richly detailed building façade system of terra cotta panels in four texture types juxtaposes against crisp, modern black glass and metal, providing sun shading while framing the intermixed nature of the program within.
The Gates Center greatly expands the current capacity of the school, providing critical research spaces, classrooms and lecture spaces, faculty offices, and a new home to the School’s undergraduate majors. At the heart of the building is a large central atrium that provides visual and physical connections to all floors, and acts as the school’s cultural hub. This daylight atrium is an important social incubator in this technology-centered environment, fostering connections between students, encouraging interaction among teams, and reflecting the department’s culture of innovation and collaboration across disciplines.
The new Bill & Melinda Gates Center has been designed to further the mission of the Allen School in enhancing the inclusivity of the department and attracting a diversity of students to the program. The building integrates the topography, the campus networks, and departmental aspirations to create a significant new campus hub.
The overarching goal was to create a building that would be welcoming and attractive to a diverse population of future computer science students. The building design seeks to accommodate the needs of the expanding — and increasingly interdisciplinary — department, and in doing so represents the future of computing as a hub of social and academic activity. As an expansion project, the facility’s components are at parity with the department’s existing building while accommodating new space typologies for emerging fields of study as well as spaces for gathering and collaborating with Seattle’s broader tech community.
Located across a major campus thoroughfare from the Allen Center, the new Gates Center creates a second hub of Computer Science at the University of Washington. The new building establishes a civic external presence to the program, housing a new café at street level; and it enhances the entries to neighboring buildings by establishing new grade-level plazas that connect to the broader campus network. Over its length, the building navigates over 35 feet in grade difference, accommodates an access road through its footprint, and locates strategic gathering spaces at its ends to visually connect it with views to the Allen Center, Lake Washington and Cascade Mountains beyond.
The initial design studies explored a variety of programmatic configurations, including cloistered faculty offices and separate research lab areas. The final design responded to the client’s desire for the architecture to encourage serendipitous interaction among students and faculty, and the final programmatic configuration intersperses laboratory and office space throughout to achieve this.
For the exterior, a terra cotta and aluminum rainscreen envelope system was developed as a contemporary complement to the many load-bearing masonry buildings that surround it. The depth of the system adapts across the elevations to provide solar protection. Inside, a selective use of cherry wood panels on walls and ceilings is a warming counterpoint to the bare structure and exposed systems seen throughout.
Email interview conducted by John Hill.
















