Black Family Visual Arts Center
Black Family Visual Arts Center
The digitization of just about every aspect of life comes with the need to change our physical structures accordingly. Dartmouth College's new Digital Humanities program required a space of its own, prompting the school to consolidate related departments into a new building. The resulting design by Boston's Machado and Silvetti Associates consists of "a series of discrete program neighborhoods" that open to a 3-story "Arts Forum," what is envisioned as an urban space. The architects answered some questions about the recently completed project.
Can you describe your design process for the building?
As with all of our projects, our practice thrives on difficult design challenges requiring innovative design solutions that address each context and brief on its own terms. In the course of working on the Black Family Visual Arts Center we engaged in eclectic discourse with the client and the faculty, complex problem-solving at all scales, and constant testing and retesting of design ideas.
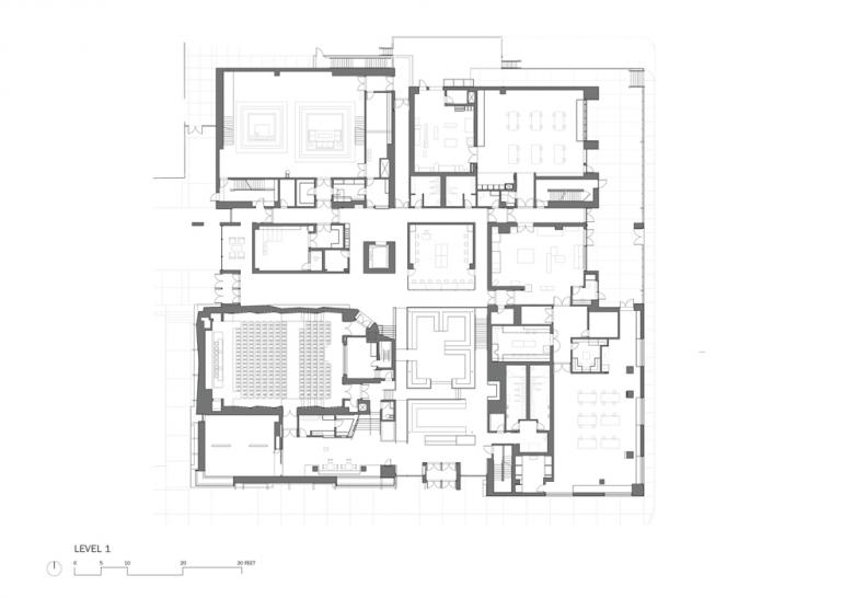
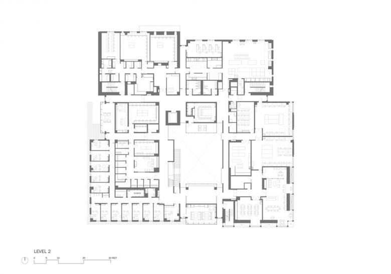
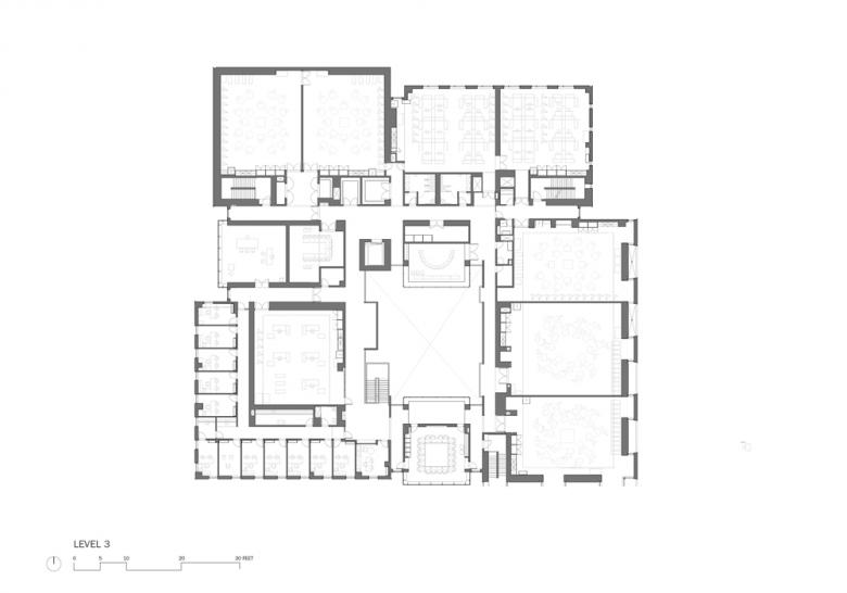
This 105,000 square foot building consolidates Dartmouth’s Studio Art and Film and Media departments into a single facility for the first time in the College’s history, and provides spaces for a newly created Digital Humanities program. The facility houses sculpture, printmaking, photography, architecture, painting and drawings studios as well as state of the art film production, animation and editing space. With the ideas of individual department identity and cross-disciplinary engagement we designed a series of discrete program neighborhoods which open onto the shared space of the three-story Arts Forum.
How does the building compare to other projects in your office, be it the same or other building types?
At the heart of the Black Family Visual Arts Center is the Arts Forum, a central atrium space, which brings light and air into the core of the urban block. The three story space is designed to promote cross-disciplinary interaction and the collegial sharing of ideas. We are consistently interested in designing this kind of intimate urban space, whether the space is inside or outside. In our practice, we make no distinction between architecture and urban space and often, as at Dartmouth, these two are intimately bound. This approach stems from our beliefs that the relationship between buildings or rooms and the realm that surrounds them cannot be separated and indeed the buildings and the public realm must inform one another in rich and nuanced ways.
How does the building relate to contemporary architectural trends, be it sustainability, technology, etc.?
The new Visual Arts Center is designed to achieve a LEED Gold rating. The project utilizes a high performance envelope including foam insulation and triple-glazed windows. HVAC systems direct exhaust air through high efficiency heat recovery wheels. The building incorporates a wide variety of energy saving technologies, including in-floor and chilled beam radiant heating and cooling, occupancy sensors for lighting and ventilation, rainwater collection and reuse and daylight harvesting and daylight sensing lighting systems.
Are there any new/upcoming projects in your office that this building’s design and construction has influenced?
All of the work that we do inevitably informs us in subsequent work. At the same time we always find it thrilling to engage the particular demands of any given project and client and we thus begin each project anew without pre-emptive solutions or design ideas. There is clearly a balance required between a practice’s continuity and a project’s specificity and we happen to thoroughly enjoy this convergence.
How would you describe the architecture of New Hampshire and how does the building relate to it?
New Hampshire, like many New England states, enjoys a litany of small and wonderfully eclectic buildings and urban spaces. Vernacular forms, delicate siding, expansive brick, pastoral meadows, and lush forest appear with great regularity providing the serene backdrop for Northeast living. We wanted to design with respect for the small scale and nuance of this New Hampshire campus’ form and feeling. We also, paradoxically, wanted to provide a uniquely urban space that differentiated itself from the rest of campus. Thus we designed a series of small neighborhoods, corresponding to program, and joined them together in a large building. The arrangement of these neighborhoods creates common circulation and community space seamless with the outside. The scale of the entire building is then significant enough to command a presence on the street while framing a very distinctive outdoor urban plaza and lawn.
Email interview conducted by John Hill.
Black Family Visual Arts Center
2012
Hanover, New Hampshire
Client
Dartmouth College
Architect
Machado and Silvetti Associates
Boston, MA
Principal-in-Charge
Jorge Silvetti
Consulting Principal
Rodolfo Machado
Project Architect
Edwin Goodell
Project Manager
Derek Johnson
Structural Engineer
LeMessurier Consultants
MEP/FP Engineer
TMP Consulting Engineers
Site/Civil Engineer
Nitsch Engineering/CLD Consulting Engineers
Landscape Architect
Richard Burck & Associates
Lighting Designer
Benya Lighting
Curtain Wall Design Assist.
W&W Glass and Gordon Smith
Stone Consultant
Swenson Consultant
Recycling Consultant
Institution Recycling Network
Rainwater Collection System
Rainwater Recovery
Envelope Design
Gale Associates
Envelope Consultant
Simpson Gumpertz & Heger
Code Review/Smoke Exhaust Design & Commissioning
Rolf Jensen & Associates
Contractor
Suffolk Construction
Geotechnical Design and Inspections
Haley & Aldrich
Building Area
105,000 sf
Photographs
Anton Grassl/Esto
Drawings
Machado and Silvetti Associates









