World Building of the Week
Boavista 339
A narrow trapezoidal lot pushed Paulo Merlini Architects to be creative with the floor plans and balconies in their design of Boavista 339, a residential building in Porto. The balconies and arched windows define the facade, which also expresses the building's mix of studio and one-bedroom apartments. The architect and photographer Ivo Tavares sent us some text and images on the project.
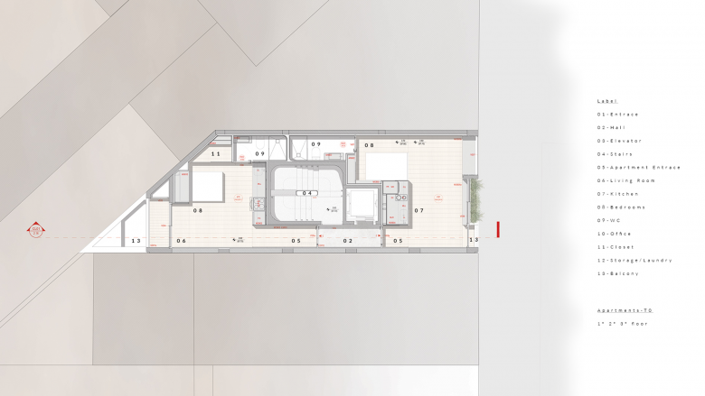
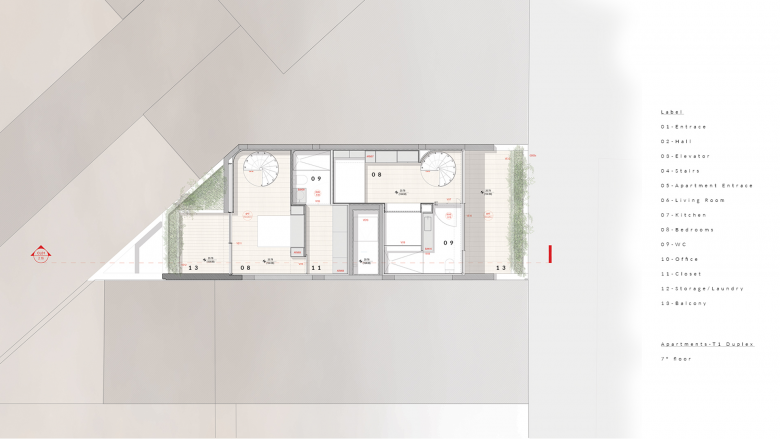
The client’s intention was to create a residential building with studio and one-bedroom apartments. With only 88 m2, a frontage of 5.5 m facing the street, and 2 m wide on the rear elevation, the plot is characterized by its small size and peculiar configuration.
Considering the typology of the plot, we inserted the stairwell in the central area of the volume, freeing up the façades and thus optimizing the capture of natural light inside the apartments. A recurring distribution logic in this type of plot in Porto city.
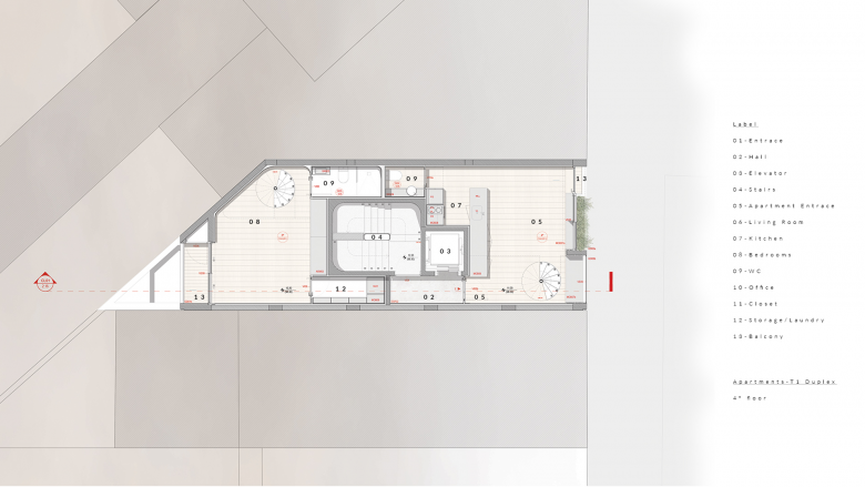
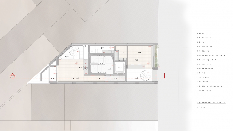
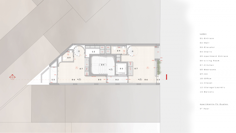
In order to make the most of the land, we created a complex typology of simplexes and duplexes from the second floor up, and integrated a small commercial space on the first floor, enhanced by a patio on the rear elevation.
This way we managed to reduce the amount of area used for exterior corridors (non-saleable area) by optimizing the one from the apartments, which allowed us to integrate eleven units into the 649 m2 of available area, guaranteeing a wide variety of different typologies, each with its own characteristics, thus enhancing the value of the property. Despite the variability, and in order to ensure easy and correct execution of the work, we took care to standardize the elements that make them up.
Considering the small size of the apartments, and in order to guarantee a feeling of greater spatial amplitude, we opened up the elevations completely, intertwining the openings in elegant concrete arches that draw the façade together and give it a strong personality. The choice of the arches has a double intention here: On the one hand, they help to add elegance to the elevation by connecting the elements that make up the façade. On the other, they take advantage of the fact that the arch is the architectural element that best adapts to the shape of the body, reinforcing the empathetic character of the whole.
In order to guarantee the privacy of the residents, we created 80-cm-high flowerbeds that block the axes of vision from the street, give extra comfort to the interior of the typologies and help to compose the elevation, through the contrast between the natural elements and the concrete. On the main elevation, the arches define access openings to small balconies, 60 cm deep, also typical in the city of Porto.
This way, we have achieved a building that, although aesthetically it has a very distinctive character, reinterprets history, taking inspiration from the very specific logics of the typical typology in the city.
Location: Rua de Agramonte, 339, Porto, Portugal
Client: Withheld
Architect: Paulo Merlini Architects, Gondomar
- Main Architects: Paulo Merlini, André Silva
- Project Team: Inês Silva, Maria Tavares, Rita Pinho
Photographer: Ivo Tavares Studio
Building Area: 650 m2
Related articles
-
-
'Just Another Fake' – Montemor-o-Novo Studio by Ai Weiwei
Eduard Kögel, Ai Weiwei | 19.05.2025 -
-
















