US Building of the Week

Boulder A.D.U.

Tres Birds | 28. March 2022
Photo: James Florio
Project: Boulder A.D.U., 2021
Location: Boulder, Colorado, USA
Architect: Tres Birds
Architect/Landscape Architect/Interior Designer: Tres Birds
  • Design Principal: Michael M. Moore
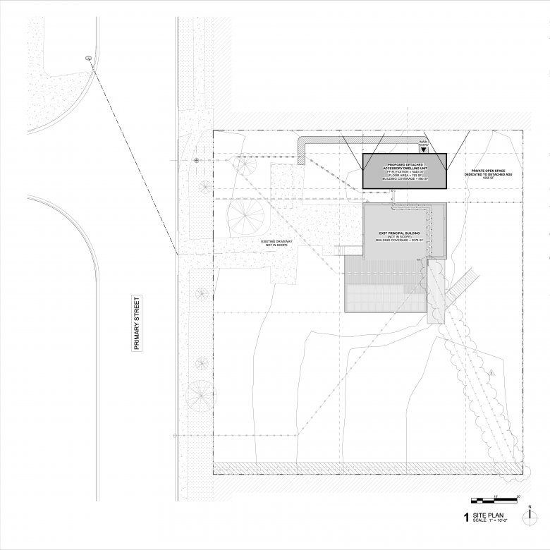
Site Area: 2100 sf
Building Area: 800 sf
 
Important Manufacturers / Products are listed at bottom.
Photo: James Florio

One of the newest housing trends in American backyards is the A.D.U., or Accessory Dwelling Unit. An A.D.U. is a small house located on the same lot as a single-family home. It’s an independent residential unit that can be a guest house, a home for extended family, or even an office or a party space.

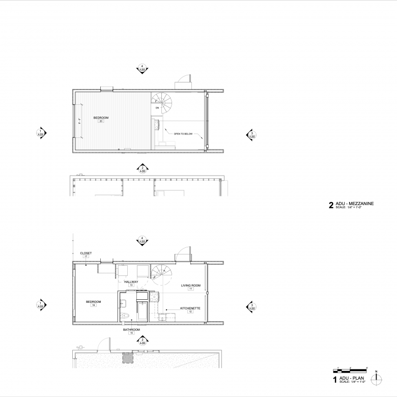
Tres Birds recently designed and built this cozy A.D.U., which echoes the aesthetic of the main house. The new 800-square-foot fully-functional home features a kitchen/dining space, bedroom, bathroom, and flexible loft space, which could be additional living space, an office, or a second bedroom.
 

Photo: James Florio

Efficiently designed, the small home reuses and repurposes a number of materials. It’s made primarily of reclaimed bowling alley lanes and plywood. The warm-toned 50-year-old bowling alley wood is used as a structurally independent mezzanine floor system and laminated together to create the east side timber frame window system. Gleaming reject tile from a Boulder artisan is used throughout the bathroom and in the kitchen. 
 

Photo: James Florio

The skylight is made from a dichroic glass panel left over from a past Tres Birds project. As the angle of the sun changes throughout the day and season, so do the visual effects within the living space, creating a vibrant show of colored light throughout.

Window locations and roof overhangs were designed specifically to maximize natural light in the home while providing adequate shading for summer sun. In the winter, the continuous standing seam exterior is designed to be low maintenance and to quickly shed snow from its pitched roof.
 

Photo: James Florio

The home is furnished with mid-century pieces by Isamu Noguchi (lamp), Sori Yanagi (stool) and Charles and Ray Eames (table, chairs), with artworks by Berger&Fohr, Gregg Deal, and Mike Moore.
 

Photo: James Florio

The A.D.U. scores well for energy efficiency. The envelope is tight and well insulated. Radiant floor heating and cooling keep the indoor climate comfortable. Lighting, security, HVAC, and the operable skylight can all be controlled by the occupant’s phone, integrating the systems and cutting down on energy waste. The home received a Home Energy Rating System (HERS) score of 33, not far off from Europe’s stringent Passive House requirement of HERS 20. For reference, a new standard home scores HERS 100 and an Energy Smart home scores HERS 85.
 

Photo: James Florio
Important Manufacturers / Products:

  • Base cabinets: IKEA
  • Bathroom walls: Reclaimed artisan tiles from Boulder artisan
  • Countertops: Krion 1100 snow white from Porcelanosa
  • Stairs: Paragon Stairs
  • Facade Cladding: Bonderized metal from Signature Services Roofing
  • Flooring: Polished structural concrete slab with regional river rock aggregate
  • Doors: Custom, apple-ply by Tres Birds
  • Door Hardware: Krown Lab (bathroom door)
  • Windows: Anderson Arch series in Douglas fir with aluminum cladding
  • Roofing: Bonderized metal from Signature Services Roofing
  • Interior Lighting: Flexible LED Strip Light- Ultra Bright, from Aspect LED

Drawing: Tres Birds
Drawing: Tres Birds
Drawing: Tres Birds

Other articles in this category