Brahler Residence

1. September 2014

Brahler Residence
Bay Village, Ohio

Client
Gary and Katy Brahler

Architect
Robert Maschke Architects
Cleveland, OH

Design Principal
Robert Maschke, FAIA

Project Architect
Marc Manack, AIA

Project Manager
Matthew Lindsay

Structural Engineer
IA Lewin and Associates

MEP Engineer
Denk Associates

Contractor
Creative Construction Systems

Construction Manager
Andy Simons

Interior Designer/Landscape Architect
Robert Maschke Architects

Windows
Eagle Windows

Brick
Arriscraft Masonry

Green Roof and Walls
ELT Living Walls

Site Area
23,300 sf

Building Area
1,937 sf addition to 1,674 sf residence

Photographs
Hanson Photographic

Drawings
Robert Maschke Architects

View looking northwest

What were the circumstances of receiving the commission for this project?

RMA was approached by the owner to design an addition and renovation to an existing 100 year old bungalow

View from street

Please provide an overview of the project.

The site of the existing Brahler Residence possesses a dramatic downward slope from the street toward a brook that bisects the lot. A densely wooded perimeter provides privacy from the compact suburban neighborhood. The client wished to maintain the quaint cottage style of the existing century-old shake clad structure while enhancing it with open interior spaces filled with natural light. A new master suite, gallery, and indoor/outdoor entertaining spaces supplement the existing program.



View looking north

The addition is situated to create courtyard spaces at multiple levels. A folding roof plane mediates between gabled and diagonally hipped roof geometries to create a dynamic vaulted interior space. Roofs and facades clad in wood shake, standing seam metal, and vegetated surfaces fold together, collapsing the distinctions between new and existing, landscape and building, façade and roof. From the street, a windowless living façade camouflages the addition's massing, increasing privacy for the spaces beyond. Inside, one encounters an environment characterized by layered views that create subtle connections to the exterior.

View looking northeast

What are the main ideas and inspirations influencing the design of the building?

The architecture merges landscape and building surfaces, articulating the envelope of the addition while configuring the site into differentiated formal and informal spaces.

Master suite

Were there any significant challenges that arose during the project? If so, how did you respond to them?

The addition was built on solid shale. To build the lower terrace along the existing brook, the shale had to be strategically removed (dynamited) to anchor the home.

View from bath

How would you describe the architecture of Ohio and how does the building relate to it?

Ohio has a very traditional vernacular architecture, the Brahler Residence respects this vernacular but reinterprets the aesthetic in a forward and resourceful contemporary approach

Email interview conducted by John Hill.

View of recreation room
Site plan and massing diagram
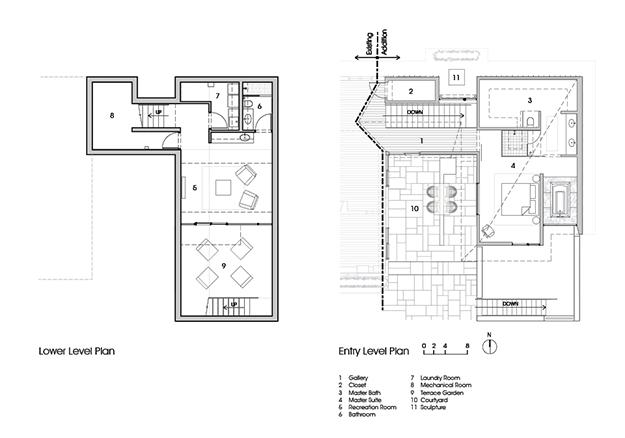
Floor plans
Section looking west

Brahler Residence
Bay Village, Ohio

Client
Gary and Katy Brahler

Architect
Robert Maschke Architects
Cleveland, OH

Design Principal
Robert Maschke, FAIA

Project Architect
Marc Manack, AIA

Project Manager
Matthew Lindsay

Structural Engineer
IA Lewin and Associates

MEP Engineer
Denk Associates

Contractor
Creative Construction Systems

Construction Manager
Andy Simons

Interior Designer/Landscape Architect
Robert Maschke Architects

Windows
Eagle Windows

Brick
Arriscraft Masonry

Green Roof and Walls
ELT Living Walls

Site Area
23,300 sf

Building Area
1,937 sf addition to 1,674 sf residence

Photographs
Hanson Photographic

Drawings
Robert Maschke Architects

Related articles 

Other articles in this category