Brelsford WSU Visitor Center
Brelsford WSU Visitor Center
Identity can be expressed in many ways, and for universities it is as varied as school colors, a sports mascot, Greek letter, and pride in the achievements of alumni. At Washington State University, identity comes across at the new Brelsford WSU Visitor Center, designd by Olson Kundig Architects, in the form of 15-foot-high letters announcing the campus, and through the exhibition of important and lasting contributions from the school's students and faculty. Alan Maskin, Principal and Design Lead at Olson Kundig, sent us the following narrative about the recently completed visitor center.
Like many architecture firms, the partners at Olson Kundig begin the week by reviewing projects that we might pursue. The decision to pursue the Brelsford Washington State University Visitor Center design-build competition was an easy one. We had just designed the visitor center at the Bill & Melinda Gates Foundation and the firm was halfway through the design of the Bellevue Botanical Gardens Visitor Center. We hoped having two comparable projects in our portfolio might help get us to the short list.
We were also aware of a shift happening within the cultural realm based on past and current museum and exhibit design projects, a sector that my team focuses on at Olson Kundig. The lines that once demarcated museums and community centers have started to blur, particularly in the realm of public convening—a significant piece of the program for the WSU Visitor Center.
The other compelling aspect of this pursuit was that it was a design-build competition. Given its scale, the WSU Visitor Center represented an opportunity to garner experience in an emerging standard of project delivery for our industry: a design-build modality where the architects contract directly with, and work for, the builder.
We assembled a team of partners whom we had previous experience with: Sellen Construction and Sellen Sustainability, The Berger Partnership for landscape design and KPFF for structural and civil engineering. “Cougs” were embedded throughout the entire project team, and as the process unfolded, it became clear how much it meant to the WSU alumni to make a built contribution to their university—a place that taught them architecture, landscape architecture, construction management and engineering.
In December 2012, we advanced to the shortlist with two other prominent and extremely qualified Northwest teams, and our team spent most of the winter holiday creating possible schemes for the competition. At the first design session, we turned the tables on our teammates—builders, sustainability specialists, engineers—by handing each of them a blank site plan and asking them to draw their own responses before the architects commenced with design. We posted all of our colleague's schemes on a wall and then pushed each of the eight attendees to speak to the drawings as advocates for their respective disciplines.
We debated the urban design components, the relationship between town and campus, arrival and departure sequences, landscape potential, how daylight moved across the site, appropriate building massing, construction typology, colors of the Palouse prairie, natural ventilation, a sustainable material palette and the best ways to arrive by foot, bicycle and car. It was the interdisciplinary discussion that followed (more than the sketches themselves) that ultimately informed our design direction.
DESIGN SCHEME & APPROACH
Created over a century ago, the historic town of Pullman’s main street turned its back on the adjacent Palouse River. It was a time when the natural landscape was viewed more as a resource and commodity, a far cry from how nature is regarded today. The orientation of our scheme embraces the riverbank, which runs across the east end of the site, as a place for students and visitors to inhabit and experience nature.
The Visitor Center sits near the junction of the WSU campus and downtown Pullman at the corner of Main and Spring streets, a historic threshold between the town and the 123 year-old land grant campus. During our discussions about iconic architecture, we structured the scheme around compositions of the building viewed through the windshields of cars as they approached the site along Main Street from the east and west. We also imagined how the center could look through the lens of visitors’ cellphone screens, realizing that if the iconic elements were successful they would be photographed and pushed into the world through social media.
Inspired by the HOLLYWOOD sign nestled into the Hollywood Hills in Southern California, we set out to create photo opportunities for visitors, potential students, the student body, sports teams, classes and student groups. Fifteen-foot-tall concrete letters spell out “WSU” on the west piazza, acting as both symbolic pillars and structural ones (the “U” supports the roof of the building.)
A forty-foot-tall tower sculpture fabricated from tapered 1-inch-thick curved steel plates is a modern counterpoint to the historic Bryan Tower visible on the campus beyond. The tower is designed to be a beacon of light and a barometer that announces significant campus events.
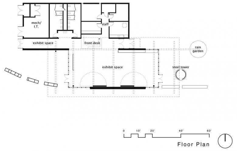
The program called for a 4,400 SF iconic structure with a 2,000 SF Great Room that could support public and private events, permanent and temporary exhibits about WSU and a digitally interactive donor wall. The remaining program called for restrooms, office space, support, catering and a retail area that sells products related to conducted research at WSU.
Our team, familiar with WSU’s Composite Materials and Engineering Center, devised a material palette that integrated WSU research into sustainable composite materials. As a result, we included “pine beetle kill” wood, a re-use of trees from northwest forests devastated by Pine Beetle infestation. The project is currently seeking LEED® Silver certification.
The entire project was designed and built in ten months (comparably sized projects can take twice as long) – a testament to a relentless and hardworking team, a remarkable contractor with a brilliant site superintendent, and a WSU project manager who shared our passion for what we wanted to build at WSU. Members of all facets of this project will share lessons learned from the design-build process at an upcoming Collaborative Project Delivery Forum hosted by AIA Seattle on December 5, 2013, from 3 to 4:15 pm.
I have attended many public openings for the projects I’ve designed over the past two decades, but this was the first time there was a full marching band, a dog dressed up like a cougar, and hundreds of people wearing crimson-colored clothing, all set against the backdrop of an expression overheard repeatedly throughout the day: Go Cougs!
Brelsford WSU Visitor Center
2013
Pullman, Washington
Client
Washington State University
Architect
Olson Kundig Architects
Seattle, WA
Design Lead
Alan Maskin
Design Collaborator
Steven Rainville
Project Manager
Marlene Chen
Project Staff
Derek Santo
Structural and Civil Engineer
KPFF
MEP and Lighting Engineer
WSP Flack & Kurtz
Landscape Architect
Berger Partnership
General Contractor
Sellen Construction
Sustainability Consultant
Sellen Sustainability
Building Area
4,400 sf
Photos
Benjamin Benschneider
Drawings
Olson Kundig Architects













