World Building of the Week

Bruce Museum

EskewDumezRipple | 2. September 2024
Photo: Timothy Hursley
What were the circumstances of receiving this commission?

The Bruce Museum is a regionally based, world-class museum located in Greenwich, Connecticut, with a multi-disciplinary collection and exhibition program bringing together art, science, and natural history.

In 2014, following a national design competition led by jones|kroloff, the Bruce hired the New Orleans and Washington, DC-based architecture firm EskewDumezRipple to design a transformative renovation and expansion that would carry the museum into the future.

The resulting project is a complete renovation of the original 32,500-square-foot structure, and the addition of a 42,000-sf new wing providing permanent and changing gallery space, expanded collection storage, and a new public entrance lobby and lecture hall for the museum.

Photo: Timothy Hursley
What makes this project unique?

Museum in the Park ­— Park in the Museum

The initial planning strategy of maintaining all public gallery spaces on the same level resulted in the new gallery program extending out over the sloping hillside below. New public lobby, café, gift shop and lecture hall spaces are located beneath these galleries to backfill program into the sloping site. This planning strategy results in a new front door to the museum that is highly visible and immediately accessible from the level of the adjacent Bruce Park.

The planning organization of the gallery expansion forms a U-shaped footprint that connects to the existing building at two locations, wrapping around the hillside that abuts the museum. Between these two points the design team created a captured courtyard, drawing the space of the park into the museum itself.

A monumental public stair follows the slope of the courtyard, providing a gracious means of ascent to the mezzanine and gallery levels above. This new courtyard space — conceived of as a “diorama of the site” — provides a means to continually orient visitors as they move throughout the museum.

Photo: Timothy Hursley
What is the inspiration behind the design of the building?

The design concept grew out of the landscape and geology of the site itself. The existing park contained numerous rock outcroppings, the result of post-glacial scouring of the Connecticut coastal landscape following the last Ice Age. These dramatic outcroppings scattered throughout the site – as well as the fact that the original Victorian house/museum was constructed of locally quarried stone – became the departure point for a stone material strategy for the design.

In addition, the project team looked at ways that artists have developed site specific responses to material, landscape, and experience. Assembled, additive, stacked or excavated, reductive, carved; these artworks shape phenomena to connect people to place in profound and powerful ways.

The design of the exterior façade took its inspiration from two local precedents that have stone as the primary material reference – quarry and lace walls.

Stone quarries are found throughout the region, where the act of carving into the earth produces a series of striated layers of cut material. The streaking of dirt and soot further articulates the face of the quarry and produces a wall of graphic contrast.

Photo: Timothy Hursley

Also, as part of early research, designers found that early settlers in the region constructed walls on their property by loosely stacking stones to create what are known as lace walls. These low stone walls create a condition where the built wall is “as much air as it is stone.”

The resulting design reinterprets both of these two precedents to create a rich interplay of texture and contrast.

While stone ultimately proved to be too expensive to use as the façade material, the design utilizes a custom formwork to produce a series of unique precast concrete panels to recreate the variegated face of a stone quarry. At the building entrance, a series of precast concrete “sticks” are arranged within a stainless-steel frame to allow light to filter through the façade in a reinterpretation of a lace wall.

The faceted precast panels change appearance over the course of the day as light and shadow moves across — and through — the face of the building. This effect is even more dramatic as day turns to night and light emanates through the lace wall at the building entry.

Photo: Richard Barnes
How did the site impact the design?

The design of the 42,000-sf expansion addresses the shortcomings of the previous arrival experience. A critical design decision was made to locate all the expanded gallery program at the same level as the existing museum galleries. This results in the expansion extending out over the hillside, providing an opportunity to infill the space below while carving into the hillside as the massing steps down to the park below.

New public programs (lobby, café, gift shop and multi-purpose lecture hall) are organized on a single floor located twenty-five feet below the galleries at the level of the park. The new east-facing entrance is now highly visible and easily accessible to visitors arriving by car or on foot. As a result, the new Bruce is now experienced as a museum in the landscape.

The ring road around the museum is now a limited access drive, providing staff parking at the top of the hill, museum loading/service access, and drop off/entry for visiting school groups that repurposes the previous museum front door.

Photo: Timothy Hursley
To what extent did the owner, client, or future users of the building affect the design?

The user experience determined planning strategies for the museum, especially during the creation of an updated entry sequence and increased connection with the adjacent Bruce Park.

The expanded art galleries allow The Bruce to host larger exhibitions, as well as showcase more of the museum’s 15,000-piece permanent collection, much of which was previously hidden away in its basement.

Photo: Timothy Hursley

Museums are vital community infrastructure. In turn, this project became as much an anthropological exercise, as an architectural one. The team pored over the history of the museum, its humble beginnings as the former home of Robert Bruce and its donation to the town under the stipulation that it be used as “a natural history, historical, and art museum for the use and benefit of the public.”

The team looked at what the museum had become in its modern incarnation, serving the public through local and regional outreach, educational offerings, and its unique blend of art, science and history.

Photo: Timothy Hursley

And lastly the team looked at what quality of transformation would empower it to continue serving the public in this capacity, holding numerous, productive conversations about the adjacencies of spaces within and how a museum’s aesthetic might be inspired by the landscape that surrounds it.

Today the Bruce is able to play host to a wide array of community programming. The expansion enabled the Bruce to allocate a large portion of its previous wing to dedicate educational outreach. Partnerships with nearby universities and K-12 schools have been established to foster an under-standing of art and science, united under one roof.

Photo: Timothy Hursley

“We can host the community in a way we’ve never been able to do before,” Bruce Museum Executive Director Robert Wolterstorff says. “In the past, we had no permanent collections galleries.” He hopes that adding them now, to showcase works that local collectors have generously donated to the museum, will provide the impetus for other collectors to donate, as “Greenwich is as rich in art collectors,” he adds, “as New York City.”

Email interview conducted by John Hill.

Photo: Timothy Hursley
Project: Bruce Museum, 2023
Location: Greenwich, Connecticut, USA
Client: Bruce Museum
ArchitectEskewDumezRipple, New Orleans
  • Design Principals: Steve Dumez, FAIA; Noah Marble, AIA, LEED AP, WELL AP
  • Project Architects: Haley Allen, AIA, LEED AP; Javier Marcano, AIA, WELL AP, LEED AP
  • Project Manager: Shawn Preau, AIA, NCARB
  • Project Team: Vanessa Smith-Torres; Kyle Digby; Sam Levison, AIA, LEED AP; Mark Thorburn, NCARB; Max Katz, AIA; Guan Wang
Structural Engineer: Guy Nordenson & Associates
MEP/FP Engineer: Altieri 
Civil Engineer: Redniss & Mead
Geotechnical Engineer: Melick-Tully and Associates
Landscape Architect: Reed Hilderbrand
Lighting Designer: Fisher Marantz Stone
Programming & Planning Consultant: M. Goodwin Museum Planning
Acoustics: Jaffe Holden
Security Consultant: Ducibella Venter Santore
Food Service Consultant: Futch Design Associates
Building Envelope: Simpson Gumpertz & Heger
Cost Estimator: Stuart-Lynn Company
Code Consultant: Bruce J. Spiewak
Owner’s Representative & Commissioning: The Stone House Group
Contractor: Turner Construction
Building Area: 74,500 sf (Existing renovation: 32,000 sf; Addition: 42,500 sf)
Site Plan (Drawing: EskewDumezRipple)
Ground Level Plan (Drawing: EskewDumezRipple)
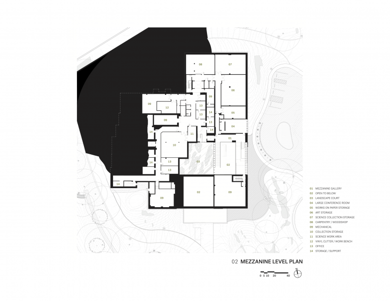
Mezzanine Level Plan (Drawing: EskewDumezRipple)
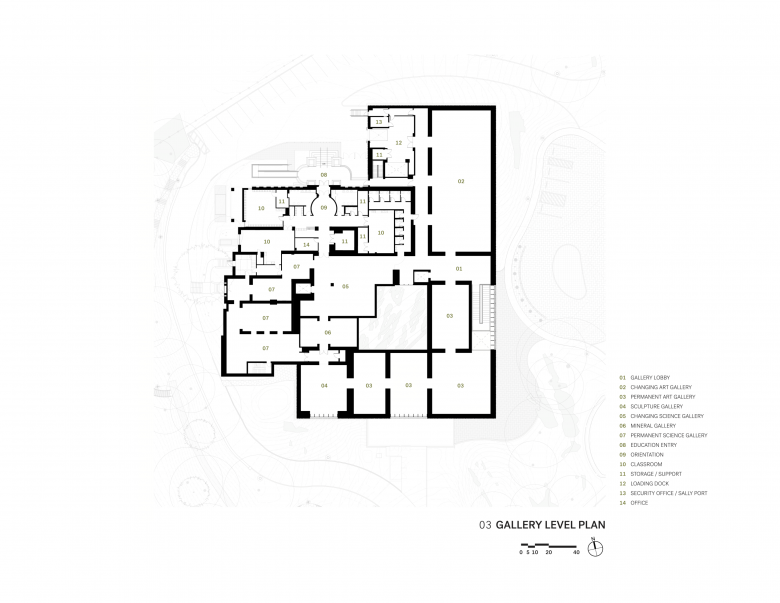
Gallery Level Plan (Drawing: EskewDumezRipple)
Section at Entry and Bruce Park (Drawing: EskewDumezRipple)
Sectional Perspective (Drawing: EskewDumezRipple)
Facade Exploration (Image: EskewDumezRipple)
Facade Exploration (Image: EskewDumezRipple)
Facade Exploration (Image: EskewDumezRipple)

Related articles 

Other articles in this category