Carl J. and Ruth Shapiro Ambulatory Care Center

Carl J. and Ruth Shapiro Ambulatory Care Center

9. April 2012

Carl J. and Ruth Shapiro Ambulatory Care Center
2011
Boston, MA

Client
Boston Medical Center

Architect
Tsoi/Kobus & Associates
Cambridge, MA

Principal in Charge
Richard Kobus, FAIA

Design Principal
Greg Luongo, AIA

Project Architect
John Mitchell

Project Manager
Richard Moon, AIA

Project Team
Kate Wendt
Jill Garzik
Jim Cowdrick

Structural Engineer
McNamara /Salvia Consulting Engineers

MEP/FP Engineer
Richard D. Kimball Company

Interior Designer
Kate Wendt, Jill Garzik

Construction Manager
William A. Berry & Son (now Suffolk Construction Co.)

Terracotta Panels and Baguettes
NBK

Panelized System Supporting Terracotta Panels
Sanford Contracting

Comb System Supporting Baguettes
FNG Industries (now AMCOL International)

Building Area
240,000 gsf

Exterior view from street

What were the circumstances of receiving the commission for this project?

The project was the result of our long-time relationship with Boston Medical Center. We continue to work with them on master planning efforts and various campus-wide improvements, collaborating towards their goals to strengthen their mission of bringing “exceptional care, without exception” to the Boston community.

View of lobby

Can you describe your design process for the building?

The design process was a typical one that included all phases from schematic design through to construction administration, in partnership with a construction manager.

View of exterior side; terracotta panelized system and baguette screen

How does the completed building compare to the project as designed? Were there any dramatic changes between the two and/or lessons learned during construction?

Located on a highly visible site, the nine-story Shapiro Center represents the first phase in a long-term effort by the hospital to transform the image of its well-traveled southern campus edge. The building improves pedestrian access, enlivens the streetscape, and sets the tone for future improvements. The scale and proportion of the building complement neighboring structures, while the exterior terracotta cladding system on the south/southwest façades addresses solar glare and offers a contemporary counterpoint to the traditional brick found throughout the campus. Beta-testing, research and multiple mock-ups were documented to ensure that the terracotta would perform as designed/predicted. The architects, construction team and vendors collaborated to yield practical solutions in problem-solving sessions, to expedite the process and control costs.

Interior Elevations

How does the building compare to other projects in your office, be it the same or other building types?

This new ambulatory care center, located on the campus of New England’s largest safety-net hospital for the poor and uninsured, consolidates outpatient clinical services and establishes a consistent patient experience for many of Boston’s most vulnerable residents. The design of the building creates a unique “urban oasis” that maximizes connections to the outdoors through views, daylight, and a palette of hospitality-inspired materials and colors. TK&A has an extensive healthcare portfolio; each project reflects the distinct needs and goals of the clients we serve.

Departmental stacking diagram

How does the building relate to contemporary architectural trends, be it sustainability, technology, etc.?

In addition to raising the bar for inner-city hospital design, the Shapiro Center is poised to set a new standard for sustainable design among Boston healthcare facilities. The building features energy-efficient and water-conserving mechanisms for mechanical, electrical, and architectural systems. Carpet tile and resilient flooring are made from post-consumer content and rapidly renewable resources, and have set new hospital-wide standards for similar products. All anigre wood veneer throughout the building is sourced from a single tree. The Shapiro Center is registered as a pilot project with the Green Guide for Healthcare, which incorporates many U.S. Green Building Council LEED-NC guidelines.

The Shapiro Center replaces a 1920s-era maternity building where caregivers advocated the benefits of fresh air to patients. The design of the new building puts a 21st-century spin on that concept by creating visual connections to the outdoors throughout the facility. A covered entry drive forms a courtyard with patterned brick pavers and landscaping. Terracotta on the building’s exterior carries inside, wrapping the reception wall and extending to the two-story lobby, the elevator lobbies, and the clinic waiting areas. A bamboo garden in the lobby echoes outdoor plantings, and a palette of hospitality-inspired materials and colors, including terrazzo flooring, sandblasted glass, and the wood veneer further evokes the natural environment.

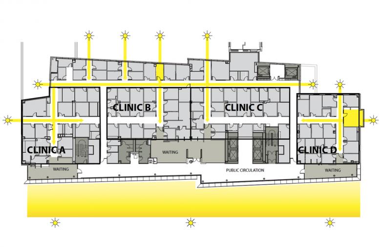
Daylighting Study

Are there any new/upcoming projects in your office that this building’s design and construction has influenced?

We understand that every client is unique and has different needs/goals, however we apply the same principles of smart architecture and design for healthy environments to all our projects, across a diversity of market sectors and highly complex building types. 

Email interview conducted by John Hill.

Carl J. and Ruth Shapiro Ambulatory Care Center
2011
Boston, MA

Client
Boston Medical Center

Architect
Tsoi/Kobus & Associates
Cambridge, MA

Principal in Charge
Richard Kobus, FAIA

Design Principal
Greg Luongo, AIA

Project Architect
John Mitchell

Project Manager
Richard Moon, AIA

Project Team
Kate Wendt
Jill Garzik
Jim Cowdrick

Structural Engineer
McNamara /Salvia Consulting Engineers

MEP/FP Engineer
Richard D. Kimball Company

Interior Designer
Kate Wendt, Jill Garzik

Construction Manager
William A. Berry & Son (now Suffolk Construction Co.)

Terracotta Panels and Baguettes
NBK

Panelized System Supporting Terracotta Panels
Sanford Contracting

Comb System Supporting Baguettes
FNG Industries (now AMCOL International)

Building Area
240,000 gsf

Related articles 

Featured Project 

Atelier KI JUN KIM

House by the Wall

Other articles in this category