Casa Deck

Casa Deck

4. December 2007

Architectural Design
Felipe Assadi + Francisca Pulido
www.felipeassadi.com
 
Structural Engineering
Patricio Stagno

Constructed Surface Area
house 150 m2; deck 370 m2
 
Photography
Cristobal Palma
 
Location
Alto Rungue, Chile
 
Date
2006

 
The view toward the community of Rungue presented a plane slanting down toward the valley, with the Cordillera de la Costa forming the backdrop, and the lot suggested a large terrace from which the vistas could be fully taken in.
The design began with a deck, with which the different areas of the house were to be incorporated. Funds, however, were available exclusively for this terrace, with enough left over only for the incorporation of a large living area. As a result, a two-component solution was adopted: a deck with a living area that would include kitchen, dining room, and master bedroom.
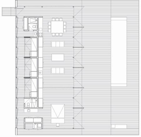
On the assumption that the bedrooms in a summer house are used only for sleeping, they were almost completely eliminated in favor of a dormitory area. A fold in the deck adapts it to the inclination of the lot, at the same time enclosing the space for the dwelling. The exterior is conceived as a free area resting on the slope and the interior as a glass capsule incorporated into the folds of the wooden sheet. The interior has been divided longitudinally in two by a service block containing the kitchen and bathrooms, and a set of triple bunk beds toward the back of the house. The two spaces thus created constitute a large living room / dining room / kitchen on one side and a hallway/dormitory on the other.
The wooden sheet of the deck runs the entire length of the house, from the lowest part -into which the swimming pool is incorporated- to the roof, showing the use of wood at every point. The principal deck follows the inclination of the lot to create a monumental chaise longue the size of the house. The roof slants in the other direction, serving as a solarium looking westward.
 

Photography: Cristobal Palma   
 Plan  

Felipe Assadi (Santiago, 1971) graduated as an architect from the UFT de Santiago in 1996, and holds a Master's degree from the Pontificia Universidad Católica de Chile (2006). In 1999 he was awarded the Youth Promotion Prize, for the best architect under the age of 35, from the Colegio de Arquitectos de Chile. He is a workshop professor at the Universidad Andrés Bello and has been visiting professor at various universities in Chile, Mexico, Colombia, and Italy.

Francisca Pulido (Santiago, 1971) graduated as an architect from the Universidad Finis Terrae in 1996. She is now workshop professor at the Universidad Andrés Bello, and a partner in the firm of Assadi + Pulido.

Architectural Design
Felipe Assadi + Francisca Pulido
www.felipeassadi.com
 
Structural Engineering
Patricio Stagno

Constructed Surface Area
house 150 m2; deck 370 m2
 
Photography
Cristobal Palma
 
Location
Alto Rungue, Chile
 
Date
2006

Related articles 

Other articles in this category