Casa Martos

Casa Martos

22. April 2013

Casa Martos
2012

Buenos Aires
Argentina

Architects
Sebastián Adamo, Marcelo Faiden
Buenos Aires

Collaborators
Ruth Lastra, Rachael Yu

Structural Engineer
Carlos Margueirat

Electrics
Juan Pablo Basile

Client
Alejandro Martos

Photographs
Cristóbal Palma

General View

This house is in Villa Adelina, a district in the north of the Province of Buenos Aires that is home to large-scale business, industry and housing.

Back Garden

The house is sited close to the street on a plot of land where there was already a prefabricated house. The characteristics of the neighboring buildings determine the position of the new dwelling.

Interior View

To one side an industrial building creates a party wall 10 m high that is used to longitudinally structure the house and to orient all the interior spaces towards gardens on the piece of land opposite.

Interior View

Metal decking extends all along the framework, becoming the support for new vegetation that, seen from within, seems to merge with the garden next door.

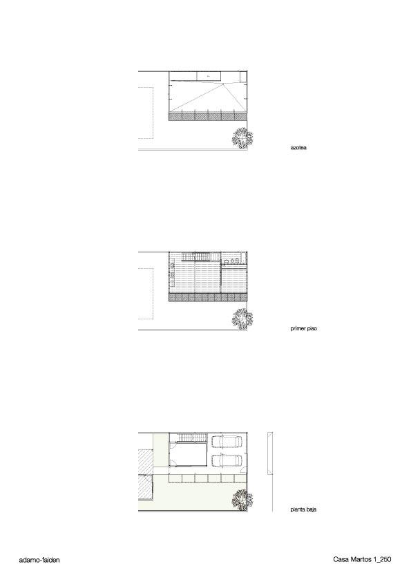
Plan

Casa Martos
2012

Buenos Aires
Argentina

Architects
Sebastián Adamo, Marcelo Faiden
Buenos Aires

Collaborators
Ruth Lastra, Rachael Yu

Structural Engineer
Carlos Margueirat

Electrics
Juan Pablo Basile

Client
Alejandro Martos

Photographs
Cristóbal Palma

Related articles 

Other articles in this category