Casa Parr

Casa Parr

29. June 2009

Housing
2008

Chiguayante, Chile

Architecture
Mauricio Pezo
Sofía von Ellrichshausen

 
Structural Engineering
Claudio Sepúlveda

Construction
Claudio Bravo

Photos: Cristóbal Palma

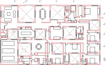
The house is both vast and intimate. Instead of large rooms, it has a series of rooms that repeat themselves and certain functions that are duplicated in the Chilean country house tradition. Set on a plot of land measuring 2.835 sq. m., the 532 sq. m. dwelling occupies a small farm, built on the site of an old house where the owner spent his childhood. The place contains memories associated with various kinds of fruit trees and native trees.

The program extends horizontally, both to occupy the depth of the gardens and to promote a certain introspection and invisibility from the outside. In addition to establishing a series of variations linked to the size and proximity of the rooms, the irregular, somewhat labyrinthine structure contains nine open patios that help control the density of the construction.

Although the sense of spaciousness was achieved by raising the ceilings to the height of two floors, they were not supposed to cast shadows on the patios. Two inclinations were therefore proposed: one for the roofs, which always descends towards the patios (permitting only the shadow cast by the walls), and one for the ceilings, whose vertices divided by natural light openings are located according to the furniture in each room.

The weight of a tile mantle (which recalls the old house) falls from these fourteen truncated prisms, conceived as small metal pieces to eliminate the seams at the edges (as if it were a collage by Burri), in order to emphasize the industrial yet artisanal nature of its surfaces.

Ground floor plan
Ceiling plan
Roof plan
Section

Mauricio Pezo obtained an MA at the Universidad Católica de Chile (Santiago, 1998) and graduated as an architect from the Universidad del Bío-Bío (Concepción, 1999), where he currently teaches, as well as at the Universidad de Talca.
 
Sofía von Ellrichshausen obtained a degree in architecture from the University of Buenos Aires (Buenos Aires, 2002). She teaches design at the Universidad del Desarrollo and the Universidad de Talca. In 2001 they set up the Pezo von Ellrichshausen office in Buenos Aires. They now work in Concepción, Chile.

Housing
2008

Chiguayante, Chile

Architecture
Mauricio Pezo
Sofía von Ellrichshausen

 
Structural Engineering
Claudio Sepúlveda

Construction
Claudio Bravo

Related articles 

Other articles in this category