Casa Pedro Lira

Casa Pedro Lira

14. October 2007

Architectural Design
Sebastián Irarrazaval
www.sebastianirarrazaval.com
 
Contractor
Rodrigo Meyer
 
Lighting
Arteknia / Martín Irarrazaval
 
Constructed Surface Area
200 m2
 
Photography
Carlos Eguiguren
 
Location
Santiago, Chile
 
Date
2006

 
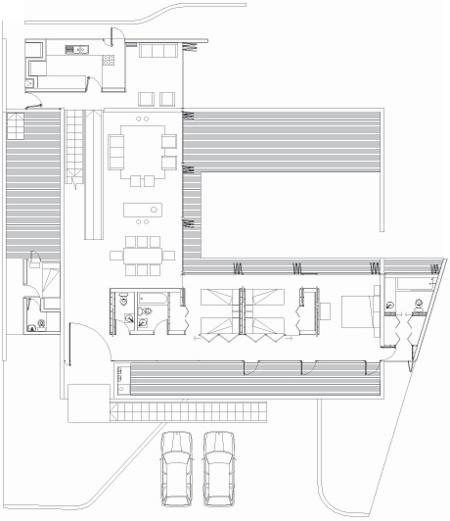
The house is articulated around three areas: a patio raised above street level; a mixed sequence of stairs and ramps leading from the parking area to the roof; and a perimetric wall that defines the surrounding lot.
The interior is organized by pillars, stairways, and skylights which configure limits and generate spatial tensions. The L-shaped plan presents a blank façade, a reflection of the wall that separates the small patio from the bedrooms and filters the noise of surrounding traffic. Various mobile elements make it possible to form or segregate spaces.
 

Photography: Carlos Eguiguren    
Planta  
Section A
Section B

Sebastián Irarrazaval (Santiago, 1967) graduated as an architect from the Universidad Católica de Chile in 1991, and has taught at the same institution since 1994. In 1993 he studied urbanism at the Architectural Association in London. In 1999 he received the award as most outstanding young architect from the Architecture Offices Association. He has been a professor at the University of Arizona, the Universidad Central de Caracas, and the Massachusetts Institute of Technology.

Architectural Design
Sebastián Irarrazaval
www.sebastianirarrazaval.com
 
Contractor
Rodrigo Meyer
 
Lighting
Arteknia / Martín Irarrazaval
 
Constructed Surface Area
200 m2
 
Photography
Carlos Eguiguren
 
Location
Santiago, Chile
 
Date
2006

Related articles 

Featured Project 

Atelier KI JUN KIM

House by the Wall

Other articles in this category