CEDIM - Design school

CEDIM

30. June 2008

Design School
2008

Monterrey
 
Developer
©CEDIM
Michael García Novak

Architecture
arquitectura 911sc
México, D.F

Fernanda Canales
México, D.F

Project Team
Ernesto Lomeli
Laura Janka
Iván Cervantes
Caliope Hernández
Mario Nájera
Gilda Valencia
Flor Marín
Edgar González
 
Engineering and Contractor
Condasa

Supervision
Escala
 
Constructed Surface Area
5.200 m²

Photos: Dante Busquets

The new campus for the CEDIM design school in Monterrey is the result of a competition held in 2006. Located on the western edge of the city, the new campus will replace the former centrally-located one. This move to an extensive, empty territory, surrounded by mountains and near the Santa Catarina River, has defined the project.

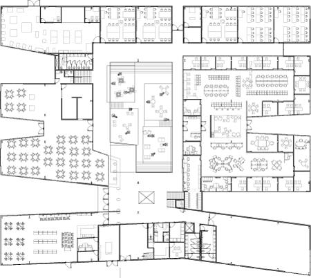
Laid out on a 12,000-square-meter lot along the river, the campus occupies the site in a compact block. The need for multifunctional areas and efficient circulations determined an almost square two-story block of 5,200 m², pierced with grooves to let in natural light and provide views of the surroundings. These incisions bring the landscape inside but also make the interior more complex, generating diverse spatial qualities and shorter circulations.

The façade is a continues band of folds and inflexions, in both plan view and elevation. These variations evoke the rugged mountain landscape of the surroundings and allow a fragmented reading of the monolithic volume. The recesses of the façades create an interplay of volumes and organize the different functions. The deepest incision corresponds to the main entryway, which opens up between the library and the cafeteria, generating intermediate spaces between landscape and interior. The entrance becomes a plaza set in between the two volumes and extending forward as far as the street access.

On the inside, there is a central triple-height space illuminated by skylights. This space communicates the academic and administrative areas, vertical circulations, library, cafeteria, and gallery. It is a fluid, open space, partially occupied by four almost contiguous volumes resting on irregularly-disposed columns. These translucent boxes house the computer workshops and other functions. Half a level below is the student lounge, a meeting point and social interaction space, with a groundlevel horizon and oblique views of the building.
The organization of the program seeks to provide good views of the mountains and reduce direct sunlight, linking up interior and exterior, as well as the different functions, and always maintaining flexibility for future growth and changes of use.
In terms of construction, the building adopts a double strategy: on the one hand a clear and austere metallic structure, and on the other a series of independent claddings and partitions. Interior divisions are created by drywall and glass, while the exterior façades alternate corrugated sheet metal with irregular fenestration, which is determined by interior function. This independence of structure and cladding will facilitate future expansion, making for low operating and maintenance costs.

Section
Ground flor
First level

Fernanda Canales (Mexico City, 1974) graduated as an architect from the Universidad Iberoamericana and went on to earn a master's degree from the Universitat Politècnica de Catalunya. She currently works as a researcher while obtaining her doctorate at the Escuela Técnica Superior de Arquitectura in Madrid. She has worked for Toyo Ito in Tokyo and for Ignasi Solà-Morales in Barcelona. She is a professor of Urban Management at the CMAS.
 
Saidee Springall del Villar (Mexico City, 1968) graduated as an architect from the Universidad Iberoamericana, and holds a master's degree in architecture from the Graduate School of Design of Harvard University (1996). In 1995 she worked in the firm of Rafael Moneo in Madrid. In 2002 she founded arquitectura 911sc in association with Jose Castillo.
 
Jose Castillo Olea (Mexico City, 1969) graduated as an architect from the Universidad Iberoamericana and holds a master's degree and Ph.D. in urbanism from Harvard University (2000). He is a professor at the UIA in Mexico City and at the University of Pennsylvania. He forms part of Urban Age, a series of itinerant lectures on the future of cities, and has been curator of exhibitions and biennials in Venice, Sao Paolo, and Rotterdam. In 2002 he founded arquitectura 911sc in association with Saidee Springall.

Design School
2008

Monterrey
 
Developer
©CEDIM
Michael García Novak

Architecture
arquitectura 911sc
México, D.F

Fernanda Canales
México, D.F

Project Team
Ernesto Lomeli
Laura Janka
Iván Cervantes
Caliope Hernández
Mario Nájera
Gilda Valencia
Flor Marín
Edgar González
 
Engineering and Contractor
Condasa

Supervision
Escala
 
Constructed Surface Area
5.200 m²

Related articles 

Other articles in this category