City of Santa Monica Parking Structure
Parking garages are a necessary evil in cities, particularly in an auto-centric metropolis like Los Angeles. Yet while most garages are bland additions to cityscapes, they can also be canvases for creative expression, as in the case of this colorful structure designed by Behnisch Architekten for the City of Santa Monica. The 744 parking spaces sit behind a facade of red, orange and yellow panels and snaking stairs, enlivening its street just two blocks from the beach. Architect Christof Jantzen answered a few questions about the project.
What were the circumstances of receiving the commission for this project?
The commission was based upon a competitive RFP/RFQ process.
Please provide an overview of the project.
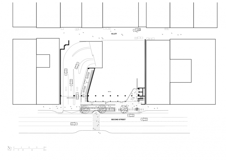
Public Parking Garage with 8 stories above, three stories below ground. Retail and Bicycle parking on ground floor.
What are the main ideas and inspirations influencing the design of the building?
Incorporating access (main stair) to parking into the façade of the structure; harvesting natural daylight through façade design.
Were there any significant challenges that arose during the project? If so, how did you respond to them?
Daylight modeling was performed to assure functionality and effect of the daylighting scheme within the façade composition.
How does the building relate to contemporary architectural trends, be it sustainability, technology, etc.?
Façade technology, passive natural daylighting, enhancing the public realm, sustainability,
How did you approach designing for Santa Monica/California and how would you describe the process of working on the project there?
The Scope of the Parking Structure – even though being utilitarian – asked for inclusion of the public realm, ease of visitor access, visibility, state of the art façade treatment, and energy conserving measures.
The process was a collaborative team effort that included the expertise of many consultants, manufacturers, and contractor.
How would you describe the architecture of Santa Monica/California and how does the building relate to it?
Santa Monica is a forward thinking city. The client and user groups involved supported the design and construction team through all phases including the permitting and approval process. The climate in Southern California is exceptional, the location of the site one of the world’s major travel destinations. The building responds directly to the programs needs while at the same time advancing the buildings utilitarian nature: integration into the urban fabric and embracing the public space.
Email interview conducted by John Hill.
City of Santa Monica Parking Structure
2013Santa Monica, California
Client
City of Santa Monica
Architect
Behnisch Architekten (Stuttgart, Germany) with Studio Jantzen (Venice, CA)
Partner
Christof Jantzen
Project Leader
Steph Cramer
Building Area
286,265 sf








