Claremont University Consortium Administrative Campus Center

Claremont University Consortium Administrative Campus Center

23. April 2012

Claremont University Consortium Administrative Campus Center
2011
Claremont, CA

Client
Claremont University Consortium

Architect
LTL Architects
New York, NY

Principals
Paul Lewis
Marc Tsurumaki
David J. Lewis

Project Manager
John Morrison

Project Team
Hye-Young Chung
Matthew Clarke
Perla Dís Kristinsdóttir
Aaron Forrest
Tina Hunderup
Deric Mizokami
Michael Tyre

Architect of Record
Grant / Takacs Architecture

Structural Engineer
John Labib and Associates

MEP/FP Engineer
CA Engineering Design Group

Landscape Architect
AHBE Landscape Architects

Lighting Designer
Lumen Architecture

Construction Manager
CUC Construction Management and Facilities

Civil Engineer
Andreasen Engineering

Electrical Engineer
Kocher Schirra Goharizi

LEED Consultant
Ecotype Consulting

A/V Consultant
TPI

LED Artist
Jason Krugman

Exterior Cladding
Western red cedar

Acoustical Ceilings
Custom fabrication by D. Reeves Inc.

Cabinetwok and Custom Woodwork
D. Reeves Inc.

Custom Workstations
Smith & Fong Plyboo, fabricated by CUC Facilities Carpentry Shop

Lighting Dimming System
Lutron Ecosystem

Building Area
42,000 gsf

Exterior

Can you describe your design process for the building?

We believe it is necessary to invert the value of constraints by recasting the seeming limitations of a project as the very trigger for design invention. By maneuvering imaginatively within operational boundaries, the latent potentials of the project can be teased out of the very restrictions that would seem to weigh it down. Carefully balancing pragmatism and creativity, we sought the most compelling solution that creates architectural quality by directly engaging the parameters of cost, function, site and environmental performance.

Entrance

How does the completed building compare to the project as designed? Were there any dramatic changes between the two and/or lessons learned during construction?

For the most part the built-reality is consistent with the design intent.  One major change during construction (made at the client’s request) was a significant increase to the size of the tensile fabric shade canopy on the South side of the building in order to better accommodate large-scale community events.  This entailed a fairly extensive redesign during construction but ultimately benefitted the project as it greatly increased the amount of usable exterior space and allows the CUC to provide a home for various community-oriented functions.  The project was intended to be a bridge between “town” and “gown” and the change allows the CUC to offer the surrounding communities a much needed large-scale gathering space. 

Central Stair

How does the building compare to other projects in your office, be it the same or other building types?

LTL has engaged in multiple adaptive reuse projects for various institutional clients in recent years, including Arthouse at the Jones Center in Austin, Texas, and the Sullivan Family Student Center in Laramie, Wyoming.  The decision to reuse an existing structure is most often driven by economic necessity but there is an increasing awareness the part institutional clients that adaptive reuse is often also the most environmentally sustainable option.  The tension between the specificity of the original building and the exigencies of a new program is a productive one-- an opportunity for architectural invention.

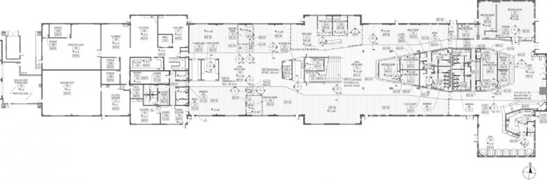
Plan

How does the building relate to contemporary architectural trends, be it sustainability, technology, etc.?

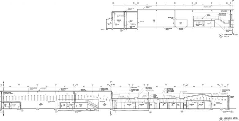
While a major aspect of the project’s sustainability strategy is to retain and reuse the existing prefabricated steel shed, its current utilitarian exterior is neither inviting nor appropriate for the new use. To redefine the building’s character, a continuous cedar surface wraps portions of its north, east, and south elevations. The ribbon works with the original pitch-roofed geometry of the building, but slips free of its shell to produce a clearly defined entry point along with a series of outdoor gathering spaces. Moving from exterior to interior, the cedar screen defines the major public circulation and shared facilities. Illuminated at night with embedded LED lights, the cedar ribbon serves as both a wayfinding device—denoting the building’s entry to vehicular and pedestrian traffic—and as a recognizable image for CUC.

Email interview conducted by John Hill.

Long Section
Reflected Ceiling Plan

Claremont University Consortium Administrative Campus Center
2011
Claremont, CA

Client
Claremont University Consortium

Architect
LTL Architects
New York, NY

Principals
Paul Lewis
Marc Tsurumaki
David J. Lewis

Project Manager
John Morrison

Project Team
Hye-Young Chung
Matthew Clarke
Perla Dís Kristinsdóttir
Aaron Forrest
Tina Hunderup
Deric Mizokami
Michael Tyre

Architect of Record
Grant / Takacs Architecture

Structural Engineer
John Labib and Associates

MEP/FP Engineer
CA Engineering Design Group

Landscape Architect
AHBE Landscape Architects

Lighting Designer
Lumen Architecture

Construction Manager
CUC Construction Management and Facilities

Civil Engineer
Andreasen Engineering

Electrical Engineer
Kocher Schirra Goharizi

LEED Consultant
Ecotype Consulting

A/V Consultant
TPI

LED Artist
Jason Krugman

Exterior Cladding
Western red cedar

Acoustical Ceilings
Custom fabrication by D. Reeves Inc.

Cabinetwok and Custom Woodwork
D. Reeves Inc.

Custom Workstations
Smith & Fong Plyboo, fabricated by CUC Facilities Carpentry Shop

Lighting Dimming System
Lutron Ecosystem

Building Area
42,000 gsf

Related articles 

Featured Project 

Atelier KI JUN KIM

House by the Wall

Other articles in this category