Colorado Outward Bound Cabins

18. July 2016

Colorado Outward Bound Cabins

2015
Leadville, Colorado

Client
Colorado Outward Bound School

Architect
Colorado Building Workshop, University of Colorado Denver

Professor/ Director
Rick Sommerfeld

Lecturers
JD Signom, Scott Lawrence, Jordan Vaughn

Students
Derek Ackley, Sidney Aulds, Brent Beicker, Matthew Breen, Andrew Brown, John Giddens, Brandon Gossard, Aaron Gray, Dane Hardy, Chad Holmes, Casandra Huff, 
Mark Hurni, Timo Jyrinki, Rachel Koleski, Kate Lucas, Nathan Moore, Matt Ollmann, Aleka Pappas, Holly Paris, Nathan Pepper, Kit Piane, Ken Roberts, Louisa Sanford, Joe Stainbrook, Brandon Sweeney, Phil Stuen, Amanda Tharp, Elliott Watenpaugh

Structural Engineer
Andy Paddock

Glass Supplier
Glass Systems/ Oldcastle Building Envelope

Roofing
Carlisle Syntec

Welding
AirGas and Red-D-Arc

Site Area
3.3 acres

Building Area
200 sf each

What were the circumstances of receiving the commission for this project?
The project commission came from a former Colorado Outward Bound School employee and graduate of the design build program at CU Denver, JD Signom. On a hike with Peter O’Neil, the Executive Director of COBS, they discussed the possibility of housing for the COBS staff. COBS had limited resources and were considering buying tuff sheds and converting them into summer housing. JD convinced Peter to reach out to Colorado Building Workshop for help. We agreed to design and build 21 cabins over two years. The first 14, featured here, would be summer cabins for junior staff and the remaining seven would be built the following year as year-round cabins for senior staff.

Please provide an overview of the project.
The Colorado Outward Bound School’s Micro dormitories were designed and built by 28 graduate students from the University of Colorado Denver’s Design-Build Program, Colorado Building Workshop. A team of interdisciplinary faculty and professionals helped guide the process. The project showcases architect lead design build and the ingenuity of an integrated project delivery design team.

The semester began with an intensive three-day integrated project delivery (IPD) design session. The clients, structural engineer, students and architecture faculty worked as a team to understand the history of the Colorado Outward Bound School, diagram existing housing precedents, analyze environmental data and better comprehend the social nature of the school. 

As the semester evolved the students presented concepts to the IPD team and clients. The feedback they received was incorporated into new design proposals and a full-scale mock-up. The students tested their prefabricated assemblies and CNC’d furniture using the mock-up, which was constructed inside the architecture building. This proved an invaluable testing ground for how building assemblies could negotiate tight spaces, similar to the pine forest of Leadville.

The project concluded with the construction of 14 micro cabins in a mere 29 day on-site build. The students reassembled their prefabricated cabins that they had worked on throughout the semester and constructed everything from the steel frames to the CNC’d interior furniture and storage. 

What are the main ideas and inspirations influencing the design of the building?
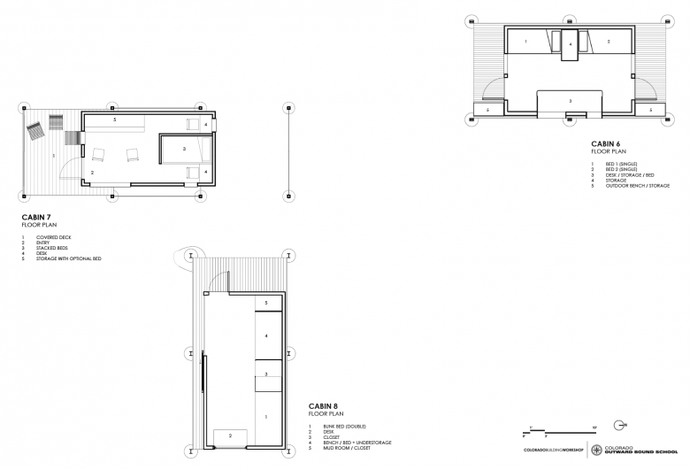
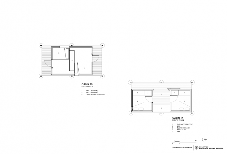
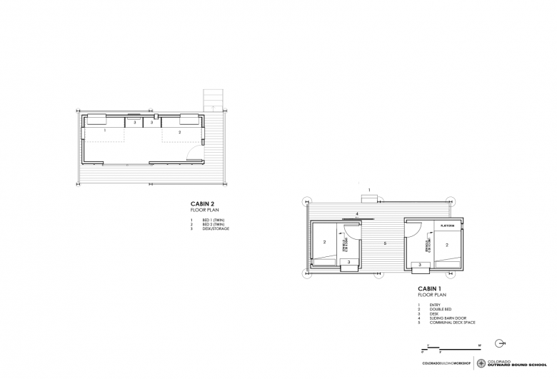
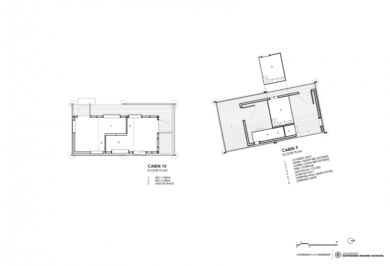
Inspired by the client's pragmatic lodging and storage requirements, and to facilitate completion in three weeks of on-site construction, the cabins were conceived as two separate elements, a “box” and a “frame.” The “frame” acts as a storage device for the educators' large gear (bikes, skis, kayaks, etc.) while simultaneously housing the cabin “box” and covered porches. The prefabricated cabin “box” rests in the frame under the protection of a “snow roof” designed to keep the winter snow load off the waterproofed roof below. Hot rolled steel provides a low maintenance rain screen for the box. This steel cladding and the vertical columns blend with the lodgepole forest minimizing the visual impact of the cabins. Structural taped glazing on the windows eliminates mullions and connects the occupants directly with natural views. 

How does the design respond to the unique qualities of the site?
The project is located on a steep hillside in a lodgepole pine forest. The cabins sit lightly on the landscape, elevated above the winter snow pack. They are sited to direct views from the interior private spaces towards trees, rock outcroppings and distant mountain views of the Mosquito Range. More public “community” views are directed into social spaces that develop from the organization of the cabins in relationship to one another. These community spaces are made up of front porches and the negative spaces between cabins.

How did the project change between the initial design stage and the completion of the building?
The main difference between the initial design and completion of the building came in prefabricated wall assembly. Students wanted to test a prefabricated Structurally Non-Insulated Panels or SNIPs. The CNC’d interior and flat stud wall framed SNIPs were designed with the structural engineer and conceived to be a lighter, more integrated way to assemble the cabins and interior furniture. It proved to created unforeseen issues with tolerance that slowed the process and compromised the craft of the cabins. The idea was abandoned for flat packed, advanced frame, prefabricated wall assemblies.

Was the project influenced by any trends in energy-conservation, construction, or design?
In order to speed the delivery timeline we prefabricated 86 unique steel columns all with girder plates, beam tabs and cross bracing holes that were cabin specific. This steel was sourced through a local steel company named Altitude Steel. The steel roofing material was an N Decking used as pan in concrete floors. The metal was cut to length before it shipped but assemble in 2’-0” sections on-site. The prefabricated flat pack wall panels were designed and built by the students. They used an advanced framing technique to align the roof structure and decrease the amount of wood required in framing. The floors and wood roofs were built on-site. The flat roofs of the prefab cabin boxes were waterproofed with EPDM donated by Carlisle Syntec. The interior of the cabins are skinned in CNC’d birch plywood bringing warmth to the interior and evoking a connection with the trees surrounding the site. The plywood is specifically milled to accommodate desks, beds and storage for each user. The walls and CNC’d plywood were prefabricated in Denver, flat packed onto trucks and shipped to Leadville to shorten the on-site construction timeline.

Email interview conducted by John Hill.

Site Plan
Cabins 1 & 2
Cabins 3, 4 & 5
Cabins 6, 7 & 8
Cabins 9 & 10
Cabins 11 & 12
Cabins 13 & 14
Cabin 2 - Exploded Axonometric

Colorado Outward Bound Cabins

2015
Leadville, Colorado

Client
Colorado Outward Bound School

Architect
Colorado Building Workshop, University of Colorado Denver

Professor/ Director
Rick Sommerfeld

Lecturers
JD Signom, Scott Lawrence, Jordan Vaughn

Students
Derek Ackley, Sidney Aulds, Brent Beicker, Matthew Breen, Andrew Brown, John Giddens, Brandon Gossard, Aaron Gray, Dane Hardy, Chad Holmes, Casandra Huff, 
Mark Hurni, Timo Jyrinki, Rachel Koleski, Kate Lucas, Nathan Moore, Matt Ollmann, Aleka Pappas, Holly Paris, Nathan Pepper, Kit Piane, Ken Roberts, Louisa Sanford, Joe Stainbrook, Brandon Sweeney, Phil Stuen, Amanda Tharp, Elliott Watenpaugh

Structural Engineer
Andy Paddock

Glass Supplier
Glass Systems/ Oldcastle Building Envelope

Roofing
Carlisle Syntec

Welding
AirGas and Red-D-Arc

Site Area
3.3 acres

Building Area
200 sf each

Related articles 

Other articles in this category