Columbia College Chicago Media Production Center

10. February 2010

Columbia College Chicago
Media Production Center
2009

Chicago, IL

Client

Columbia College Chicago

Architect

Studio Gang Architects
Chicago

Design Principal
Jeanne Gang

Managing Principal

Mark Schendel

Project Architect

Margaret Cavenagh

Project Manager

William Emmick

Project Team

Kara Boyd

Structural Engineer

Magnusson Klemencic Associates

MEP/FP Engineer

Sachin Anand, dbHMS
Spaceco Inc.

Landscape Architect

Site Design Group

Lighting Designer

Barbizon Lighting Company

Interior Designer

Studio Gang Architects

Contractor

W.E. O'Neil

Construction Manager

William Emmick
Rob Ruehl
Brad Johnson

Others

Chicago Flyhouse Inc.
Sieben Energy Associates
Threshold Acoustics

Building Area

36,000 SF

With a glass facade inspired by the film and television industry’s color bar test pattern, Columbia College Chicago’s Media Production Center illuminates South State Street in Chicago’s downtown Loop neighborhood.

(Photos: Steve Hall © Hedrich Blessing)

What were the circumstances of receiving the commission for this project?

We were part of a shortlist of architects invited to submit our qualifications. The list was narrowed, and we were interviewed several times in various settings, including a tour of the client’s site and the client visiting our office.

The design offers an animated prismatic addition to its urban environment while creating interactive and visually connected interior spaces for teaching media production.

Can you describe your design process for the building?

We interviewed all the faculty departments, visited other similar facilities, analyzed the site and watched some great films. We started to create diagrams and models that responded to the program and site, and began to experiment with giving the building’s interior spaces a cinematic quality.

The film industry’s unique language of color-tests and focus charts (used for calibrating cameras) inform the use of color and pattern throughout the space- forging a connection between the students and the tools of their chosen medium.

How does the completed building compare to the project as designed? Were there any dramatic changes between the two and/or lessons learned during construction?


The completed building, in action with the students using it, confirms that the spaces work as designed; it functions in a great way. We received this email slightly after the building opened: “I just co-produced the first outside-Columbia shoot in the MPC.  All I can say is ‘Wow.’ It’s a great space and perfect for shooting.  My partner and I both agreed that a huge percentage of the positive mood on the set came from the fact that the place was so well laid out that no one had an excuse to be in a bad mood. Thanks for putting together a studio that actually has production in mind (a sadly rare occurrence).”

There were modifications to the original design, but they were slight and often times ended up enhancing the project rather than diminishing it. For example, the need to reduce some of the glass sizes in the curtain wall for cost reasons led to the idea of introducing the “color bar” pattern into the façade. The added horizontal elements gave the pattern more structure and  strengthened its connection to the building’s content.

Light is used as a “material” that highlights movement throughout the building.

How does the building compare to other projects in your office, be it the same or other building types?


Like other buildings in the office, this project considers the specifics of what goes on there and tries to exploit its potential, be it program, site, material, or technology; it’s not about a pure formal gesture.

Views into spaces like the directing studio encourage interdisciplinary interaction between the college’s students by making typically behind-the-scenes aspects of the filmmaking process visible.

How does the building relate to contemporary architectural trends, be it sustainability, technology, etc.?

The building introduces innovative technologies for reducing energy use including its air supply system for the sound stages. It achieves a LEED gold certification, which is uncommon in this building type.

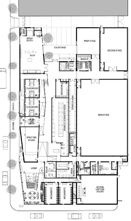
MPC Floor Plan

Are there any new/upcoming projects in your office that this building’s design and construction has influenced?

The degree to which we harnessed natural light for dramatic effect in this building will definitely influence our future buildings.

E-mail interview conducted by John Hill

Columbia College Chicago
Media Production Center
2009

Chicago, IL

Client

Columbia College Chicago

Architect

Studio Gang Architects
Chicago

Design Principal
Jeanne Gang

Managing Principal

Mark Schendel

Project Architect

Margaret Cavenagh

Project Manager

William Emmick

Project Team

Kara Boyd

Structural Engineer

Magnusson Klemencic Associates

MEP/FP Engineer

Sachin Anand, dbHMS
Spaceco Inc.

Landscape Architect

Site Design Group

Lighting Designer

Barbizon Lighting Company

Interior Designer

Studio Gang Architects

Contractor

W.E. O'Neil

Construction Manager

William Emmick
Rob Ruehl
Brad Johnson

Others

Chicago Flyhouse Inc.
Sieben Energy Associates
Threshold Acoustics

Building Area

36,000 SF

Related articles 

Featured Project 

Atelier KI JUN KIM

House by the Wall

Other articles in this category