Country Estate

Country Estate

27. June 2011

Country Estate
2010

New Canaan, CT

Architect
Roger Ferris + Partners
Westport

Design Principal
Roger Ferris

Project Architect
Robert Marx
Myron Mirgorodsky

Project Manager
Robert Marx

Project Team
Tiziano Fabrizio
Jim Carron
Brian Ridgeway
David Rooth

Structural Engineer
Thornton Tomasetti
The DiSalvo Ericson Group

MEP/FP Engineer
Consulting Engineering Services (CES)

Lighting Designer
Fisher Marantz Stone, New York

Construction Manager
Peacebridge LLC

Site Area
approx. 2.5 acres

Building Area
New buildings: 4,620sf

Photos
Paúl Rivera
archphoto

Johnson's Wiley Residence sits in the right foreground.

What were the circumstances of receiving the commission for this project?

Our client was familiar with a unique golf club we designed in Southampton, a contemporary building that serves both as clubhouse and private gallery. An art collector himself, he recognized our ability to design spaces that display art and approached us for this project. The project required expertise with multifaceted programmatic and contextual challenges and we were selected due to our diverse portfolio and understanding of restoration as well as contemporary architecture.

The renovated barn.

Can you describe your design process for the building?

The client emphasized his desire to respect the architectural integrity of the landmark Philip Johnson Wiley Residence and to carefully integrate the new structures. Any new additions to the site should compliment and underscore the original house. We renovated the deteriorated barn, inserted a new pool house into the composition, restored the pool, added a submerged garage and carefully renovated the 1953 Johnson house. All new exterior and restoration materials were carefully reviewed and selected on site with consideration of the existing residence.

Looking toward the barn from the new pool house.

How does the completed building compare to the project as designed? Were there any dramatic changes between the two and/or lessons learned during construction?

All work was initially very carefully designed and was executed substantially as conceived. The completed project very much matches the design.

The new "submerged" garage.

Are there any new/upcoming projects in your office that this building’s design and construction has influenced?

We see an increase in adaptive reuse and restoration projects in recent years and are currently working on a variety of projects with similar issues: restoration/conversion of existing structures while adding new structures to the composition. Combining the old with contemporary architecture is not only aesthetically challenging but technically complex; with each new complex project our diversity and depth of experience increases, leading to greater flexibility to respond more thoughtfully to changing circumstances and client needs.

E-Mail Interview conducted by John Hill

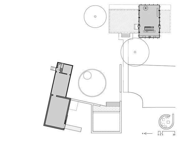
Site plan: Drawing by Roger Ferris + Partners
Elevations: Drawing by Roger Ferris + Partners

Country Estate
2010

New Canaan, CT

Architect
Roger Ferris + Partners
Westport

Design Principal
Roger Ferris

Project Architect
Robert Marx
Myron Mirgorodsky

Project Manager
Robert Marx

Project Team
Tiziano Fabrizio
Jim Carron
Brian Ridgeway
David Rooth

Structural Engineer
Thornton Tomasetti
The DiSalvo Ericson Group

MEP/FP Engineer
Consulting Engineering Services (CES)

Lighting Designer
Fisher Marantz Stone, New York

Construction Manager
Peacebridge LLC

Site Area
approx. 2.5 acres

Building Area
New buildings: 4,620sf

Photos
Paúl Rivera
archphoto

Related articles 

Featured Project 

Atelier KI JUN KIM

House by the Wall

Other articles in this category