Zhou Chunya Art Academy

Creative Industries in the Orchards

14. February 2011

Zhou Chunya Art Academy
2010

Dayu Village
Jiading District
Shanghai

Client
Zhou Chunya

Architect
Tong Ming / TM Studio
Shanghai

Collaborator
Nanjing Zoomar Architects Office

Project Team
Tong Ming
Huang Xiaoying

Build Area
1,460 sqm

Photographer
Lu Hengzhong

View from Garden Side

In the case of Ai Weiwei, the studio was destroyed by officials end of last year, because they argued he had no proper building permits. Ironically the invitation for the building was given to him on the same basis as to the other artists.
The original idea was simple and clear. With the placement of celebrated artists amidst the vineyards the creative industries should become the backdrop for the new economic development.

Main Entrance

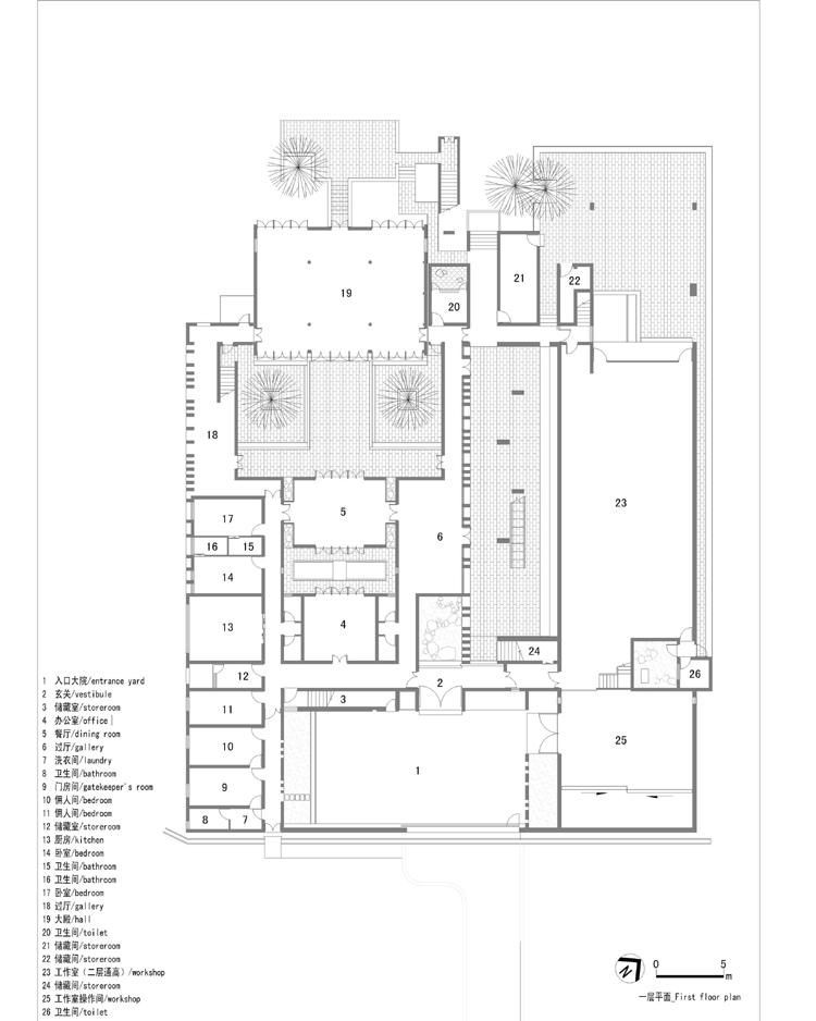
Last year also the Zhou Chunya Art Academy, designed by Shanghai based Tong Ming Studio, was finished. The plot of land is surrounded on three sides by water and includes a garden, connected to the house with a zigzag bridge across the canal. The main part of the complex was composed around an existing and renovated historic building with white walls, a dark tile gable roof and wooden front façade. The radical reduced volumes in concrete stand in full contrast to the traditional appearance of the saved old building.

Building at the Canal

Last year also the Zhou Chunya Art Academy, designed by Shanghai based Tong Ming Studio, was finished. The plot of land is surrounded on three sides by water and includes a garden, connected to the house with a zigzag bridge across the canal. The main part of the complex was composed around an existing and renovated historic building with white walls, a dark tile gable roof and wooden front façade. The radical reduced volumes in concrete stand in full contrast to the traditional appearance of the saved old building.

Court between Old and New

The huge studio space is closed on the main façade and only opens on the level of the roof terrace and the front. With a shed roof the daylight is controlled and direct sunlight can be avoided in the studio. From the different courts as well as from the interior, stairways led to the roof terrace with a fabulous view across the orchards of the surrounding landscape with its myriads of waterways. The flooring at the terrace is also made of black-grey bricks. Two further bedrooms for guests and a study room with a long small window that forms a frame for the view across the landscape are reached at the second floor on the side of the entrance.

Roof Space

Behind the double volume space of the main studio a private flat for the artist, with view across the garden and waterways, completes the composition. The concrete as material for walls, ceiling and floor is processed very carefully. The holes of the form boards decorate the walls with their regular pattern. The light grey colour stays in strong contrast to the lush green of the carefully composed plantings in the courts and the garden. Underneath the living unit of the artist, a covered platform by the water creates a pleasant outdoor space, accessible directly from the big studio. The various paths around the building and the different courts and public spaces, provide multiple possibilities for the users. From private contemplation to public parties and events many different stages can be arranged according to the need.

Under the Living Unit

The architecture stands naturally in strong contrast to the village buildings. Its solid appearance in concrete with rather small openings and the compact form speak of a new area that is meant to catapult the native farmers into 21st century. But what will be their role in the future? And can a few artists pull the rural countryside into a prosperous park for creative industries? The case of the studio of Ai Weiwei has shown that it is not up to the architect or artist, but to politics and the local party-members, how and with which means the needed development will take place.

Eduard Kögel

Main Hall of Artists
Location Plan
Concept Development
First Floor Plan
Second Floor Plan
Section A-B

Zhou Chunya Art Academy
2010

Dayu Village
Jiading District
Shanghai

Client
Zhou Chunya

Architect
Tong Ming / TM Studio
Shanghai

Collaborator
Nanjing Zoomar Architects Office

Project Team
Tong Ming
Huang Xiaoying

Build Area
1,460 sqm

Photographer
Lu Hengzhong

Related articles 

Featured Project 

Atelier KI JUN KIM

House by the Wall

Other articles in this category