Curved House

Curved House

12. September 2010

Curved House
2009

Springfield, MO

Architect
Hufft Projects
Kansas City
Design Principal / Project Architect
Matthew Hufft

Project Manager

Adam Crowley

Project Team
Clayton Vogel
Sarah Schultz
Jonathan Tramba
Kimball Hales

Structural Engineer
Meridian Structural

Landscape Architect

John Galloway, 40 North

Lighting Designer

Kathi Vandel, Lightworks, Inc.

Interior Designer
Hufft Projects

Contractor
Herman and Associates

Site Area
8 acres

Building Area

6,000 sf

Photos
Mike Sinclair

View from Drive through “The Aperture” to Side of House

What were the circumstances of receiving the commission for this project?

The clients first hired us to design a pool and cabana for their existing house. During the design process, they found the property that the Curved House sits on. They were enjoying the design process so much, that they abandoned that project and decided to go forward with a complete new house design.

View from Kitchen Towards Living Room

Can you describe your design process for the building?

We spent a lot of time working with the client to understand the true desires and ideas of how they saw themselves living in this house. A lot of the first design meetings were schematic diagrams that showed the different spaces and their relationship to one another. It very much was a process of programming, determining circulation between those programs, and then skinning that diagram.

View of Fire Pit and Cabana from across Pool

How does the completed building compare to the project as designed? Were there any dramatic changes between the two and/or lessons learned during construction?

The completed project trumps the designed project. This was one of our first projects that we fabricated a large portion of the pieces. As such, the process of construction allowed us to be hands on and constantly tweak and perfect the as-designed on paper design.

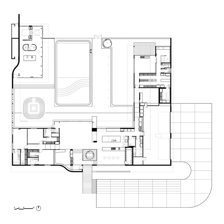
Floor Plan

How does the building compare to other projects in your office, be it the same or other building types?

This was a project very much based on our office ethos of “modern” and “sustainable”. It achieves both – something that we have had good success in doing in most of our other projects. It also is extremely site and client driven. The site dictated the interior focused courtyard, but allowed for calculated views from and toward the house. The client dictated the flow and feel of the house.

Concept Sketch

How does the building relate to contemporary architectural trends, be it sustainability, technology, etc.?

It is very sustainably designed. It has a 10,000-gallon cistern, 4KW solar array, geothermal heating and cooling, all of the wood is FSC, all of the cabinets are formaldehyde free, and most of the materials are locally sourced.

It is completely automated and capable of being controlled remotely.

It also is centered on and focused around the outdoors. The house is as much about the outdoors as it is the indoor.

Developmental Rendering

Are there any new/upcoming projects in your office that this building’s design and construction has influenced?

Yes, we are currently building a Show House to demonstrate our design and fabrication capabilities. This projects taught us a lot about what was capable, and thus inspired some of the design and detailing of the Show House. It also taught us a lot about how to use brick in interesting ways, so we are fine tuning our brick skills on the Show House.

E-mail interview conducted by John Hill

Curved House
2009

Springfield, MO

Architect
Hufft Projects
Kansas City
Design Principal / Project Architect
Matthew Hufft

Project Manager

Adam Crowley

Project Team
Clayton Vogel
Sarah Schultz
Jonathan Tramba
Kimball Hales

Structural Engineer
Meridian Structural

Landscape Architect

John Galloway, 40 North

Lighting Designer

Kathi Vandel, Lightworks, Inc.

Interior Designer
Hufft Projects

Contractor
Herman and Associates

Site Area
8 acres

Building Area

6,000 sf

Photos
Mike Sinclair

Related articles 

Other articles in this category