Department of Veterinary UNAM

Department of Veterinary UNAM

20. July 2008

Department of Veterinary
2007

Tequisquiapan-Ezequiel Montes
Querétaro

Contractor
Lerma Edificaciones S.A. de C.V.

Architecture
Isaac Broid
Reynaldo Esperanza
Lenin García
Alfredo Hernández
Miguel Ángel Jiménez
 
Project Team
Carla Becerril
Elena Erreguerena
Juliana Isaza
Adriana Jiménez
Carolina Keller
Camilo Osorio
Víctor Torres
 
Supervision
Ditapsa Consultores S.A. de C.V.
 
Consultant
Emilio Nava
 
Constructed Surface Area
4.300 m2

Photos: Jorge del Olmo

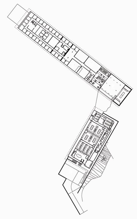
These off-campus installations of the Universidad Nacional Autónoma de México house a rotating population of 1,120 students each semester. The program also called for laboratories, study cubicles, classrooms, an auditorium, and complementary equipment such as a dining area for the students, two common rooms, self-service laundry facilities and a terrace.
The building is located on a small rise, on the highest part of the lot. The structure rises from horizontal platforms adapted to the irregular terrain, rather like a ship run aground on the site.
The building consists of a base volume made of local stone and therefore well integrated with the surrounding landscape. This volume contains the dormitories and supports several colored "boxes" which house the public spaces such as the auditorium and the library, with terraces that offer panoramic views of the landscape.

Thus, the private areas maintain a direct relation with the terrain, in the lower part of the building, while the public one -administrative offices, classrooms, auditorium, and library- are on the upper floors, with a visual connection to the rural surroundings.
In line with recent buildings constructed by the UNAM, this project expresses the university's traditional topologies in easy-to-maintain local materials.

Lower level plan
Acess floor plan
Section

Isaac Broid (Mexico City, 1952) graduated as an architect from the Universidad Iberoamericana in 1977. In 1970 he earned a master's degree in urban design from the Oxford Polytechnic. He is a professor in the projects area of the Universidad Iberoamericana and of the Max Cetto Workshop at the UNAM.

Department of Veterinary
2007

Tequisquiapan-Ezequiel Montes
Querétaro

Contractor
Lerma Edificaciones S.A. de C.V.

Architecture
Isaac Broid
Reynaldo Esperanza
Lenin García
Alfredo Hernández
Miguel Ángel Jiménez
 
Project Team
Carla Becerril
Elena Erreguerena
Juliana Isaza
Adriana Jiménez
Carolina Keller
Camilo Osorio
Víctor Torres
 
Supervision
Ditapsa Consultores S.A. de C.V.
 
Consultant
Emilio Nava
 
Constructed Surface Area
4.300 m2

Related articles 

Featured Project 

Atelier KI JUN KIM

House by the Wall

Other articles in this category