Downtown Transportation Center & Parking Garage
Downtown Transportation Center & Parking Garage
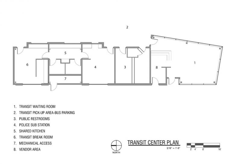
Parking garages may make for striking architecture in places like Miami, but ultimately they are occupy a realm below other building types because they house automobiles rather than people (minus some retail space tucked into the ground level of many). But this project in Juneau, Alaska by NorthWind Architects is commendable for incorporating public transit into the mix, in effect creating a transit node at a major intersection. As well it skillfully integrates itself with an elevated park. Architect James Bibb answered some questions about the project.
What were the circumstances of receiving the commission for this project?
A response to an RFP and then a two year committed local public process to foster a design consensus for a parking garage and bus station in the most prominent location in downtown Juneau.
Can you describe your design process for the building?
This project was a somewhat controversial in terms of building type and location. Parking garages are typically a utilitarian type, and ours is located on perhaps the most important corner in Alaska Capitol City. This meant that the design process required public acceptance early in the conceptual design process. This involvement was successful through informative meetings open to the general public and more specific workshops with key community use groups, such as the local historical advisory committee, neighborhood association, and local planning department. The key to the success of this project was the informative process “early and often” to keep key design decisions and design development progress available to all.
How does the completed building compare to the project as designed? Were there any dramatic changes between the two and/or lessons learned during construction?
The thorough design process using computer modeling and careful consideration of realistic design graphics enabled us to be very close to what we envisioned the project to be early in the schematic phase. Tools such as Google Sketch-up were instrumental in allowing a simple and realistic model to be developed and used as a communications tool to show what the finished project would look like. Before and after graphics were astonishingly close. Lessons learned through the construction project were relatively few and centered around mobilization and construction sequencing.
How does the building compare to other projects in your office, be it the same or other building types?
NorthWind Architects is a relatively young office. This project was our first large-scale public project that required us to really perform in making good and expressive design decisions. It was very meaningful in being successful in that attempt, and in doing so it provided us with a sense of credibility in the local design community.
How does the building relate to contemporary architectural trends, be it sustainability, technology, etc.?
This project is far from being compared to trends currently being expressed in most major urban cities. What could be related is the use of contemporary building materials such as stainless steel mesh, and the expressed openness of the interior spaces to the exterior. There is a sense of “lightness” that could be related to the current trends of minimizing the scale of structural components to the simplest of expression and allowing local and regions materials to be used as much as possible.
Are there any new/upcoming projects in your office that this building’s design and construction has influenced?
It has influenced the confidence we express to our clients in terms that good design matters and that our work takes the this successful project as an example.
Email interview conducted by John Hill.
Downtown Transportation Center & Parking Garage
2011
Juneau, AK
Client
City & Borough of Juneau
Architect
NorthWind Architects
Juneau, AK
Design Principal/ Project Architect/Project Manager
James Bibb, AIA
Structural Engineers
Wilson Engineering
ABKJ Engineering
MEP/FP Engineer
Tetratech
Landscape Architect
Corvus Design, Inc.
General Contractor
Coogan Construction
Construction Manager
E. Dave Hurley, Wilson Engineering
Stainless Steel Decorative Wire Mesh
McNichols Co.
Building Area
89,825 sf (2,507 transit center + 87,318 parking garage)





