Dutchess House No.1

Dutchess House No.1

3. September 2012

Dutchess House No.1
2012

Millerton, NY

Client
Withheld

Architect
Grzywinski + Pons
New York

Design Principals
Matthew Grzywinski
Amador Pons

Site Area
7 acres

Building Area
1,800 sf

Photos
Floto + Warner

Drawings
Grzywinski + Pons

General exterior view of house

Can you describe your design process for the building?

When Grzywinski + Pons was commissioned to design this house we were excited by a brief and directive from the client that was very specific programmatically and where budget had primacy but was open to whatever form that might manifest from our process in addressing their requests. The house was conceived as a country home initially used as a complement to and reprieve from their apartment in the city, that could ultimately evolve into a primary residence. They wanted a detached cottage or guest house that could accommodate their visiting elderly parents for extended stays from the west coast, and be available to rent out on a nightly basis at their discretion to help defray costs. Another request was to create a place that felt very open to it's beautiful surroundings yet could be battened down and secured during any extended periods when it was unoccupied. Furthermore, the client - when anticipating stays in the house alone - requested we create a master bedroom suite that allowed unfettered access to the outdoors (both physically and visually) from a safe "perch" when the ground floor was secured for the night.

Exterior view of house (right) and guest cottage (left)

We paid special attention to sightlines, exposures, seasonal variations in the quality and direction of light, and the flow between interior and exterior spaces. As we integrated the program into the site and retained the desired dialectic with the landscape on a room by room basis, the process yielded what would become the basis for our formal approach.

We wanted to make sure that the house felt very warm and happy - a truly convivial environment - while unabashedly modern and durable. The natural environment is the star of the show and each room or interior space is predicated on celebrating that. Even the exterior cladding, specified for performance - matte aluminum and ipe - was designed to amplify the progression of hues both throughout the day and throughout the seasons.

Close-up view of house

How does the completed building compare to the project as designed? Were there any dramatic changes between the two and/or lessons learned during construction?

I think the greatest challenge for us was to readjust to the pace things are done in the country. We are accustomed to the relatively breakneck speed of New York City which is normal for us, so adjusting to the comparatively leisurely rate of things up north was difficult and I am sure frustrating and annoying at first for the contractors, officials and tradesmen who had to deal with our expectations.

View of guest cottage

While having things change via value engineering during both the design and construction process is certainly nothing new, something unique (for us) that occurred on this project was making a significant change on the exterior cladding even after the bid came in to sheathe the house because of the time it took to get to that stage. We originally specified standing seam copper cladding, bid it out, and got it to work within the budget. When it came time for the subcontractor to purchase the material the price of copper had risen so precipitously that it was no longer financially viable. Making the switch to aluminum was ultimately something we became excited about - after site testing some early samples we were very excited about how well the mill finish interacted with the environment. It was however enlightening to be reminded that some raw materials are in fact commodities and fluctuate with some volatility as such.

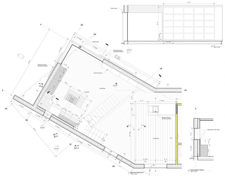
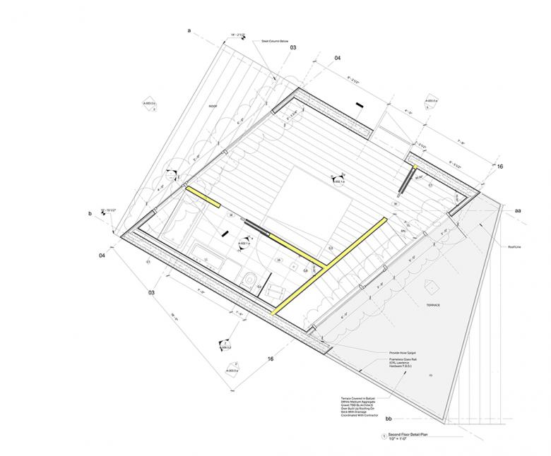
Partial house plan

How does the building relate to contemporary architectural trends, be it sustainability, technology, etc.?

As it was a priority for both our client and ourselves, we were focused on making the home very sustainable and energy efficient. While this informed the design of the home in a significant way we didn't want the house and cottage to wear their green credentials on their sleeve as an aesthetic. The house was built with ICFs, strategically glazed with low-e assemblies and clad in high albedo mill finish aluminum. We designed deep eaves into the largest expanses of glass based on our solar studies. The home and cottage ended up being so well insulated that we needed to specify an EVR unit for fresh air exchange. An on demand hot water system precludes any wasted energy on water heaters when the home is unoccupied and also heats the home through a hydronic radiant slab. Low flow fixtures, dual flush toilets, LED lighting, high efficiency appliances and sustainably grown lumber were all specified and employed. The security system for the home was augmented to allow the mechanical systems to be remotely accessed and controlled during extended periods of absence as well.

Email interview conducted by John Hill

Partial house plan
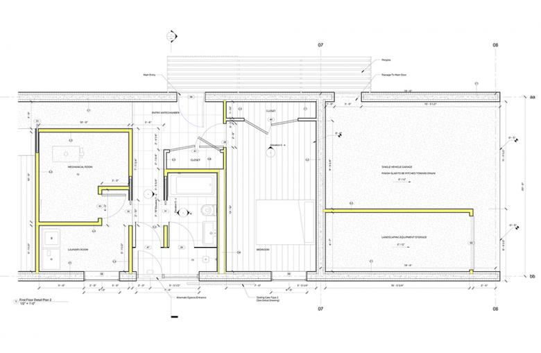
Guest cottage plan
Rendering with standing seam copper cladding

How does the building compare to other projects in your office, be it the same or other building types?

Though the crux of our commissions to date have been hospitality or residential, many of them are built upon urban infill sites. While this project - albeit on a smaller scale - encompasses both of these programs, our site was a rural, seven-acre wooded lot. This setting certainly sets the home apart from the rest of our completed works but it was interesting to see that our process remained consistent. Site and the consideration of contextuality via harmony, studied dissonance or anything in between is a significant consideration in all of our work and the Duchess House was no exception.

Dutchess House No.1
2012

Millerton, NY

Client
Withheld

Architect
Grzywinski + Pons
New York

Design Principals
Matthew Grzywinski
Amador Pons

Site Area
7 acres

Building Area
1,800 sf

Photos
Floto + Warner

Drawings
Grzywinski + Pons

Related articles 

Other articles in this category