Education Comes First

Education Comes First

6. November 2016

Project Name
East China Normal University Affiliated Bilingual Kindergarten
 
Location
Anting Town, Jiading District, Shanghai
 
Program
Fifteen Classes Kindergarten
 
Site Area
7,400 sqm
 
GFA
6,600 sqm
 
Structure
RC Frame, partial corridors in steel frame 
 
Exterior Material
White paint, transparent and translucent insulated glass, aluminum panels
 
Design/Built
2012–2015
 
Client
Anting International Automobile City
 
Structural and MEP Design
Jiangnan Architectural Design Institution
 

The new bilingual kindergarten of the ‘East China Normal University’ designed by Zhu Xiaofeng and scenic architecture located south of Anting Metro Station next to a canal and a new residential development. The subdividing streets are not yet all built and the neighbourhood will develop further over the next few years. That the kindergarten is bilingual reflects both the international profile of the Anting population, as well as the eagerness of Chinese parents to teach their children through English and Chinese right from their first contact with education. 

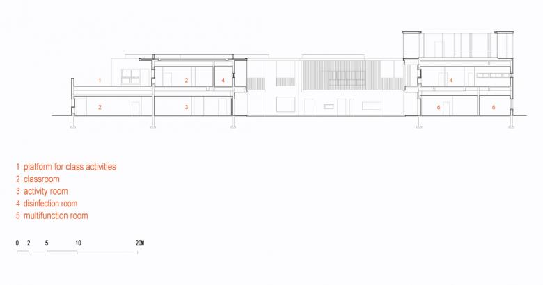
The ideal of the historic Chinese courtyard housing – an impossible dream for most urban residents today – comes through in the kindergarten’s scenic architecture and spatial arrangement around courtyards, traditionally the central space for communication in the family unit and the wider neighbourhood. The tight site houses fifteen-classrooms in two to three storeys on a hexagonal grid plan. The hexagonal shape enables flexible clustering of units according to function, while the combined honeycomb layout achieves maximum use of sunlight. Outdoor space or courts connect directly to the classrooms giving the children opportunities for indoor and outdoor activities. On the ground floor, these outdoor spaces merge to form a continuous and enclosed open space system for the children. Inside the building, zigzag corridors connect the hexagonal units along their courtyard edges, thus offering a rich indoor-outdoor experience. On the first and second floors these outdoor spaces form enclosed courts accessible from a few units.

Activities in each unit are organized around the round column in the centre of the hexagonal space. Each two classroom units share a courtyard, and the children are enabled to visit the library, music room and other courtyards by the corridors. Children from the second and third floor use the covered outdoor staircase to join the playground. Overall, the communication within and between the different units and classes allow new experiences for the children and the teachers.  

The facades are rendered, wood is used for the railings, the inner window frames and flooring, and aluminium is used in tubes for the vertical fins and as panels for the outer coating of the window frames. The combined effect of this material expression is a strong unit with a compelling atmosphere. 

From their first contact with education, Chinese children are stressed by too much pressure to learn for a competitive society. From kindergarten through primary and secondary school and into university education, the entire learning education is based on high input with little space for individual interpretation and experience. The best marks bring the best starting position in later working life. However, looking to future, creative capacity will be crucial. Therefore it is becoming urgent to allow children a new freedom to learn for themselves in a stress-free environment. At least this new kindergarten provides a fitting and enabling physical space for such an experience, even if might take some time for society to reach the insight that creativity is not something hard-learned by heart, but something stimulated by experience. 

Master plan
Section

Project Name
East China Normal University Affiliated Bilingual Kindergarten
 
Location
Anting Town, Jiading District, Shanghai
 
Program
Fifteen Classes Kindergarten
 
Site Area
7,400 sqm
 
GFA
6,600 sqm
 
Structure
RC Frame, partial corridors in steel frame 
 
Exterior Material
White paint, transparent and translucent insulated glass, aluminum panels
 
Design/Built
2012–2015
 
Client
Anting International Automobile City
 
Structural and MEP Design
Jiangnan Architectural Design Institution
 

Related articles 

Other articles in this category