E.J. Ourso College of Business
E.J. Ourso College of Business
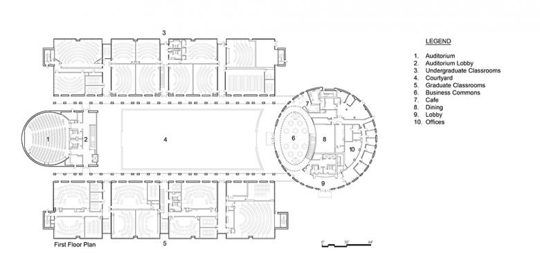
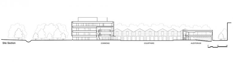
The E.J. Ourso College of Business's new Business Education Complex is comprised of four volumes: a circular commons, a semi-circular auditorium, and two rectangular classroom wings. Facades of wood, glass, and bronze look upon a landscaped courtyard at the project's center. Ikon.5 architects sent us some text and images about the recently completed project.
At the ground level, the pavilions which house the classrooms are interconnected by an arcade and surround the landscaped courtyard. Internally, a multi-story business commons, located in the rotunda, opens up visually and physically to the courtyard and is the iconic centerpiece for the business school campus.
The E.J. Ourso College of Business at Louisiana State University is a glass and steel "academic village" for business education. The courtyard site plan and building forms are contextual—recalling the sloped roof pavilions and arcaded courtyards of the adjacent historic campus.
The design team researched glass technologies and developed a cream colored ceramic fritted insulating glass unit with mirror glass back panel which creates a moiré pattern over the surface of the pavilions resulting in a three-dimensional appearance that is similar in color and modeling to its stucco-clad neighbors. The south and west sides of the rotunda are surrounded by a custom bronze screen that utilizes an arch motif which recalls the university’s treasured campus arcades. The screen is designed to shield the glass rotunda from harsh solar gain.
E.J. Ourso College of Business
2012
Baton Rouge, LA
Client
Louisiana State University
Architect
ikon.5 architects
Princeton, NJ
Building Area
167,000 square feet
Photographs
Brad Feinknopf
Drawings
ikon.5 architects





