ISA - Interface Studio Architects
El Chalet
ISA - Interface Studio Architects is known for creative responses to housing needs in Philadelphia, Pennsyvania. Six years ago we featured their aptly named Modular Apartments as a Building of the Week, and now we highlight their El Chalet project, which had to contend with an elevated train line. This piece of urban infrastructure pointed the way to an attention-getting profile that is highly visible thanks to an empty lot next door. The architects answered a few questions about their design of El Chalet.
Please provide an overview of the project.
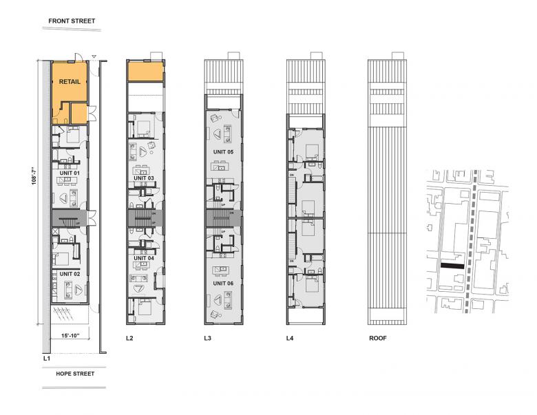
El Chalet is a four-story mixed-use building sited along an elevated train line in the formerly industrial East Kensington neighborhood of Philadelphia. The building shifts program to the long edge of a narrow site along the busy Frankford-Market elevated Blue Line, creating an interior façade facing an adjacent vacant parcel. With a roofline that connects the dots of a quirky zoning envelope, the elevation juxtaposes six units of housing above with a storefront tucked underneath the elevated train line.
What are the main ideas and inspirations influencing the design of the building?
As marginalized urban areas transition into desirable neighborhoods, seemingly problematic contextual elements like adjacent vacant land and elevated railroads can be treated as productive design constraints. The building design was a direct reaction to the owner’s concern about living directly adjacent to the elevated train running along Front Street. The project created a series of setback decks with unusually intimate relationships to the train, turning a liability into a surprisingly novel asset. By further thinning an already narrow site, the building massing unlocked the long south wall as an access point for a central stair as well as south-facing light, air, and views. The blank north-facing facade along the property line was employed as an opportunity for an art piece oriented toward viewers riding south on the train.
How does the design respond to the unique qualities of the site?
The building profile was designed to pick up on the textured shapes and massings of buildings on surrounding lots, where layers of structures have accumulated over time to create a range of urban elevations. Responding to constraints of zoning, acoustics, and views, El Chalet’s roofline creates a dynamic new section operating within this context. Bright orange facade highlights and interior finishes articulate the profile and tie the interior and exterior of the building together.
How does the design respond to the unique qualities of the site?
The building profile was designed to pick up on the textured shapes and massings of buildings on surrounding lots, where layers of structures have accumulated over time to create a range of urban elevations. Responding to constraints of zoning, acoustics, and views, El Chalet’s roofline creates a dynamic new section operating within this context. Bright orange facade highlights and interior finishes articulate the profile and tie the interior and exterior of the building together.
Was the project influenced by any trends in energy-conservation, construction, or design?
While energy performance was not an explicit concern, acoustic isolation from the train was a driving factor. A window performance upgrade intended to mitigate sound transmission had the secondary effect of improving energy performance.
Email interview conducted by John Hill.
El Chalet
2016Philadelphia, Pennsylvania
Client
Earth Flats LLC
Architect
ISA - Interface Studio Architects
Philadelphia, PA
Design Principals
Brian Phillips, Deb Katz
Project Manager
Mat Huffman
Project Team
Tyler Wallace, Pat Corrigan
Structural Engineer
Larsen & Landis Structural Engineers
MEP/FP Engineer
Pressman and Associates
Contractor
Mega Contractors
Windows
Inline Fiberglass Windows
Kitchens & Baths
IKEA
Site Area
2,000 sf
Building Area
6,500 sf









