Elementary School Gymnasium “Taishi no Mori”
Elementary School Gymnasium “Taishi no Mori”
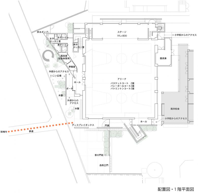
When it came time to rebuild an aging elementary school gymnasium in the town of Taishi, Hyogo Prefecture, officials decided to add a space open to the general public as well. Akira Sakamoto of Akira Sakamoto Architect & Associates, the firm in charge of the project, says his team aimed to create a “rich space that would serve as a contact point with the town” and a “cornerstone for the children and the community.” Because the gym is located in a residential district, the architects took care to avoid designing an overwhelmingly large volume, instead adjusting the scale of the building by deconstructing the exterior walls into several parts. They also set the structure back from the street and added benches under the eaves, along with an outdoor plaza, to enhance opportunities for interaction with the local community.
Tell us about the basic concept behind this project.
The gymnasium at Ikaruga Elementary School in the town of Taishi was slated to be rebuilt because it was aging and not up to earthquake standards. In addition to its ordinary use by the school, the client requested that the new gym include common rooms that could serve as the location for multigenerational exchanges with the surrounding community, as well as other spaces to serve the neighborhood as a whole. In response, we tried to design a rich space that would serve as a contact point with the community. Motivated by a wish that the children grow up healthy in mind and spirit, we aimed for a place similar to a “sacred grove,” or mori, created out of earth and air. That’s where the name “Taishi no Mori” [Taishi Grove] came from.
Does the structure that was actually built differ in any way from your original plan? How did you solve any challenges that arose?
There were no differences [between the plan and the final structure]. However, because a gymnasium is a very particular type of structure, there were a number of ways in which we needed to innovate. First, in order to realize a comfortable environment for indoor sports, we included north-facing clerestory windows in the interior arena. That eliminated the need to artificial lighting during the day and supplied a stable natural light source. Next, by allowing the windows to be opened and closed at will, we ensured efficient natural ventilation that takes advantage of the change in elevation between different parts of the building.
How is this project similar to or different from your previous projects?
This was the first time we’d done a public facility, and it became an oportunity to re-think not only the creation of space, but also the nature and the possibilities of the community that such a space brings into being. Because this was a public project, it was important that it fit into the community as a whole. From the question of how to carry out the planning, to the demolition, the construction process, and all the way to the project’s completion, we explored different forms of expression and talked about what it means for the community to inherit a piece of architecture.
When designing residential projects in the past our main focus has been on creating a centerpoint for the family, This time too, what was called for was a centerpoint for the children and local residents, so there was continuity with our other work in the sense that thoughout the design process we focused on the people who would be using the building.
What did you learn from this project? What will you take from it to future work?
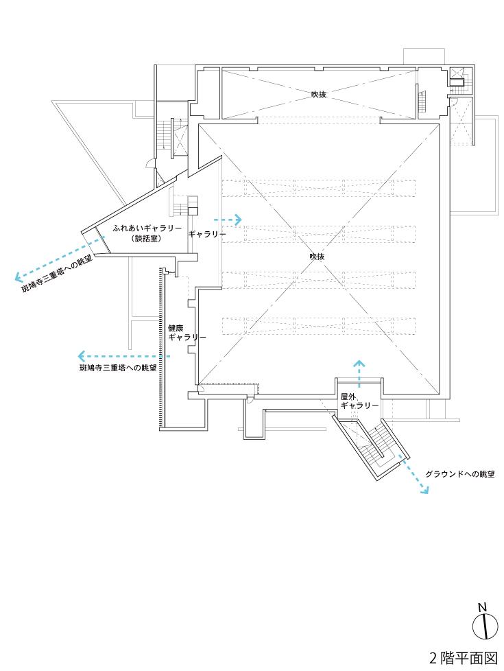
Both inside and outside Taishi no Mori, we included many places to display pictures, pottery, flower arrangements, and photographs by the kids and locals, so that the space can also be used as a gallery. By opening up the building to the community instead of limiting it just to school events and sports, we were able to create places and mechanisms within the large arena where interactions with the neighborhood would take place. Since the project was completed I’ve had a chance to see with my own eyes how architecture can give rise to communication with the community and broaden the children’s education. Architecture changes people and changes towns. This project taught me that that is the purpose of public architecture.
E-mail interview by Yuna Yagi (translated from Japanese)
Elementary School Gymnasium “Taishi no Mori”
2012
Hyogo
Client
Taishi, Ibo District, Hyogo Prefecture
Architects
Akira Sakamoto Architect & Associates
Design Principal
Akira Sakamoto
Structural Engineer
Hojo Structure Research Institute
MEP/FP Engineer
Soukensha
Constr. Manager
Kumagai Gumi Co., Ltd Kansai Office
Landscape Planning, Interior and Lighting Design
Akira Sakamoto Architect & Associates
Site Area
12,962㎡
Total Floor Area
1,284㎡
Photo
Yoshiharu Matsumura












