World Building of the Week

Erlebnis-Hus St. Peter-Ording

Holzer Kobler Architekturen | 25. March 2024
Photo: Jan Bitter
What makes this project special?

The project's task was to find a sustainable, ecological and innovative solution, contributing to the attractiveness of the location, both from a tourism and societal perspective. In terms of inclusion, it should serve visitors of all ages and backgrounds as a meeting place that is formally and functionally anchored at a local level and also radiates a strong identity beyond the region.

We are interpreting the identity-forming pile dwellings on site with an impressive six-story weathered timber construction. It will become the new landmark of the municipality of St. Peter-Ording.

What is the inspiration behind the design of the building?

The tradition of pile dwellings on the beach of St. Peter-Ording, which have existed since 1911.

View of the Erlebnis-Hus from the salt marshes (Photo: Jan Bitter)
How did the site impact the design?

The new Erlebnis-Hus (Adventure House) forms the highlight and conclusion of the extended beach promenade behind the dyke, which is also intended to serve as a link between the two districts of Bad and Dorf. Despite its eye-catching shape, the wooden construction blends in sensitively with the surroundings of the Wadden Sea World Heritage Site. The timber matrix of the new pile dwelling extends organically into the surroundings and serves as a framework for play equipment. A footbridge connects the entrance level of the building barrier-free with the dyke and ends with a viewing platform.

What were the circumstances of receiving this commission?

The commission resulted from an open competition in 2017, which we won together with the landscape architecture firm Uniola.

View of the Erlebnis-Hus from the dyke (Photo: Jan Bitter)
Skateboard pool (Photo: Jan Bitter)
To what extent did the owner, client, or future users of the building affect the design?

The Tourismus-Zentrale (tourist office) manages and maintains all the pile dwellings in the municipality itself. This means that it has many years of experience and expertise in how to deal with exposed timber structures. This gave us the courage and the will to realize this unusual project. Throughout the planning and construction phase, there was close cooperation and coordination with the client.

The 47-meter-long slide (Photo: Jan Bitter)
Were there any significant changes from initial design to completion?

The project was actually implemented from competition to completion with almost no design changes. However, the shortage of wood, Covid and the Ukraine crisis led to the construction costs increasing by almost a third.

To what extent did you aim to use natural building materials and circular building materials in the project?

The building is a timber hybrid construction. A reinforced concrete volume houses the emergency staircase, the elevator and the storage rooms at promenade level.

The timber matrix consists of glulam and the five cubes of cross-laminated timber with a suspended timber facade. We only used steel as a connecting element and in the form of stiffening elements where necessary.

The timber construction can be completely dismantled; beams and columns can be replaced in every second grid.

Windbreak at the restaurant terrace (Photo: Jan Bitter)
Playground equipment in the wood matrix (Photo: Jan Bitter)
Did you work in the office with the trends of circular construction and social sustainability?

According to the motto “play in, on, under, next to and around,” the Erlebnis-Hus is a place that offers a program for everyone — regardless of age, origin or physical limitations. Because the various activities are spread all over the building, people interact with the house and move around it, creating a lively atmosphere and a new meeting place.

Creating architecture that touches and appeals to people, creating barrier-free meeting places and thus doing justice to social sustainability, are important themes in all our designs. Whether in urban planning, building construction or scenography, we have found that a design that engages everyone is not only a lot of fun to develop, but is also very positively received by people after completion and inspires them.

This interview was first published, in German, as “Erlebnis-Hus St. Peter-Ording” on German-Architects. Translation edited by World-Architects.

Game House (Photo: Jan Bitter)
Example of a node inside the building (Photo: Jan Bitter)
Project: Erlebnis-Hus St. Peter-Ording, 2023
Location: Fritz-Wischer-Straße 1, 25826 St. Peter-Ording
Client: Toursimus-Zentrale St. Peter-Ording
Architect: Holzer Kobler Architekturen GmbH, Berlin
Project Team: Andrea Zickhardt, Max Kaske, Ingo Böhler, Heike Zeschke, Julia Kull, Philip Peterson
Landscape Architect: Uniola AG, Berlin 
Lighting Designer: Lichtvision Design, Berlin
Structural Engineer: ifb | frohloff staffa kühl ecker, Berlin
Construction Management: Assmann Beraten + Planen GmbH, Hamburg
Fire Protection: brandschutz plus GmbH, Berlin
Gross Floor Area: 3,000 m² 
Photos: Jan Bitter
Axonometric (Drawing: Holzer Kobler Architekturen)
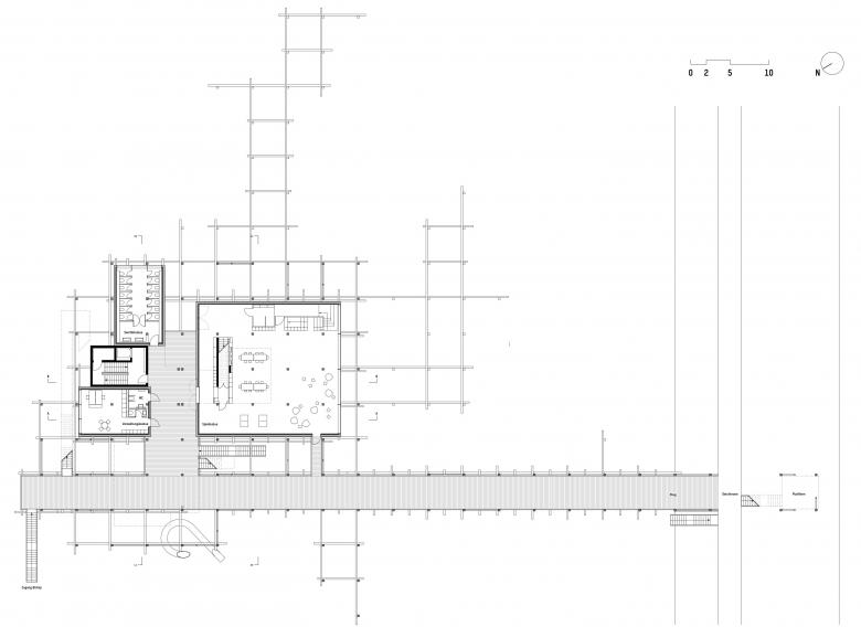
Ground level (Drawing: Holzer Kobler Architekturen)
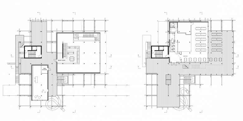
Level 1 (Drawing: Holzer Kobler Architekturen)
Levels 2 and 3 (Drawing: Holzer Kobler Architekturen)
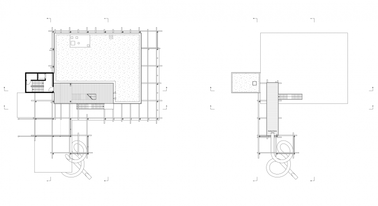
Levels 4 and 5 (Drawing: Holzer Kobler Architekturen)
Sections (Drawing: Holzer Kobler Architekturen)

Related articles 

Other articles in this category