Faena District

2. December 2016

Faena District

2016
Miami Beach, Florida

Architect
OMA - Office for Metropolitan Architecture
New York, NY

Partners
Shohei Shigematsu, Jason Long

Associate-in-Charge
Jake Forster

Concept Design – Design Development
Project Architects
: Clarisa Garcia Fresco, Paxton Sheldhal
Project Team: Clarisa Garcia Fresco, Lawrence Siu, Francesca Portesine, Ravi Kamisetti, Ted Lin, Jesung Park, Anupama Garla, Andy Westner, Daniel Queseda Lombo, Andrew Mack, Caroline Corbett, Denis Bondar, Ahmadreza Schricker, Darien Williams, Gabrielle Marcoux, Marcela Ferreira, Jenni Ni Zhan, Lisa Hollywood, Paul Tse, Sarah Carpenter, Carla Hani, Sean Billy Kizy, Simona Solarzano, Ivan Sergejev, Tamara Levy, Matthew Austin, Ben Halpern

Construction Documentation - Construction Administration
Project Architect
: Clarisa Garcia Fresco, Paxton Sheldhal (BOS|UA),
Project Team: Yusef Ali Denis, Slava Savova, Cass Nakashima, Ariel Poliner, Jackie Woon Bae, Matthew Haseltine, Salome Nikuradze, Simon McKenzie

Project Management
Gardiner & Theobald, Inc., Claro Development Solutions

Architect of Record
Revuelta Architecture International, PA

Landscape Architect
Raymond Jungles, Inc.

Civil Engineer
Kimley-Horn and Associates, Inc.

Structural Engineer
DeSimone Consulting Engineers

MEP & Fire Engineer
Hufsey Nicolaides Garcia Suarez Consulting Engineers

Lighting
Tillotson Design Associates

Elevator
Persohn Hahn Associates

Acoustic
Electro-Media Design, Ltd., Stages Consultants, LLC

Exterior Building Envelope
IBA Consultants, Inc.

Parking
Tim Haahs Engineers

Theatre Consultant
Stages Consultants, LLC

Food Service Consultant
Clevenger Frable and Lavallee, Inc.

Architectural Concrete Consultant
Reginald Hough Associates

Life Safety
SLS Consulting, Inc.

Security
Security Industry Specialist, Inc.

Building Areas
Faena Forum: 42,565 square feet with a performance hall of 6,700 square feet
Faena Bazaar: 20,074 square feet
Faena Park: 28,283 square feet

Photographs
Iwan Baan

Drawings
OMA
The Faena District seen from Faena Hotel across Collins Avenue

Located on a majestic stretch of beach in the heart of Miami Beach, Faena District encompasses both sides of Collins Avenue from 32nd to 35th Streets, with direct waterfront views of the Atlantic Ocean and Indian Creek. Faena District will provide the city of Miami Beach with a neighborhood integrating dynamic cultural, residential, hotel, retail, culinary and public environments with a dynamic combination of art, culture, and design as their foundation. OMA has designed three buildings for Faena District—Faena Forum, Faena Bazaar and Park. These distinct structures are linked by a sequence of public areas including an entry plaza on Collins Avenue and an open courtyard within the Faena Bazaar.

Faena Forum

Faena Forum
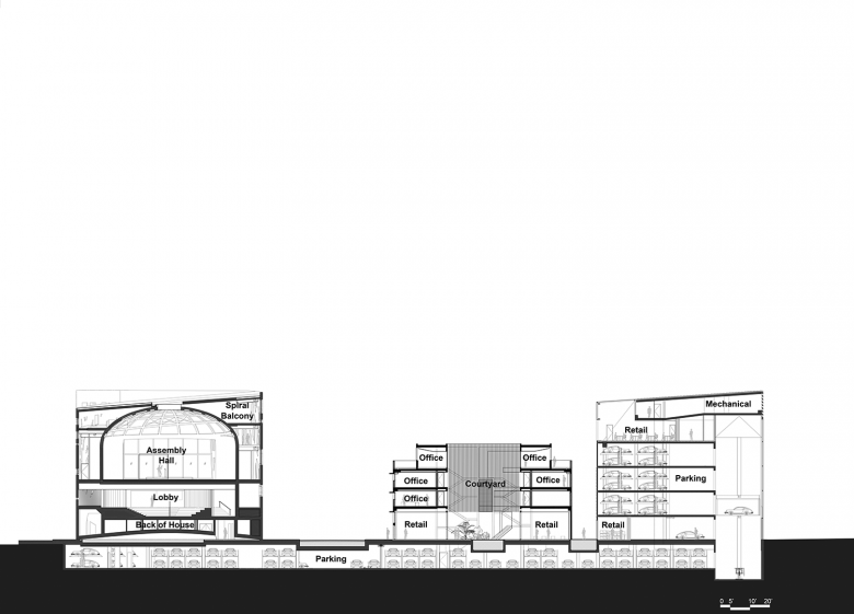
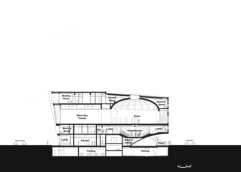
Faena Forum has been designed as a series of large flexible spaces that can accommodate a variety of events from a temporary culinary pop up to an acoustically optimal concert, with everything in between the realms of traditional art galleries to new and innovative cultural programs. Two volumes, a classic cylinder and a black box cube that are similar in size, can be combined or subdivided to support any type of production, from projects and commissions to performances, exhibitions and events. An exterior plaza along Collins Avenue features a 46-foot cantilever and reflecting pool upon arrival. The cantilever is supported by a structural facade of concrete cast as a series of arches and catenary curves, overlaid with a hurricane grid. The structural façade of 350 distinct windows also allows for vast column free spaces on the building’s two main levels. The lobby amphitheater features Rosa Portugal pink marble floors and technical capabilities for surround projections. The upper floor assembly hall features a 40-foot-high dome with a central glazed oculus and a floor-to-ceiling window overlooking Indian Creek that can also be used for loading large scale art. A walkway that spirals up the interior wall of the Forum from street level to the top of the dome provides visitors with a range of perspectives on the space and additional seating. Combined, the balcony spiral, dome and cube have the capacity to host over 1,000 visitors.

Faena Bazaar

Faena Bazaar
Faena Bazaar is a renovation of the historic Atlantic Beach Hotel, built in 1939 and designed by prominent Miami Beach architect Roy France, whose work includes the Saxony and Versailles, both part of Faena District. In addition to preserving the building’s original façade details and lobby entrance, OMA’s design inserted an intimate central courtyard, unified by privacy screen and a penthouse terrace with views to the Atlantic Ocean. The Bazaar will provide curated ground floor retail and event space in upper levels.

Faena Park

Faena Park
Faena Park is a state-of-the-art parking structure with a capacity for 81 cars, as well as retail spaces at the street and top level. The 28,000 square foot structure features a mechanical system with parking lifts that stacks cars 2 per space for maximum efficiency. An exposed glass shaftway on 35th street reveals the vehicular and passenger movement within the building’s structure. The precast concrete façade features angled perforations allowing for ventilation and controlled views, subtlety reflecting the color of cars parked within The elevators descend to a subterranean level of parking that connects all three sites with a capacity for an additional 154 cars. Faena Park will be programmed with street level retail and an upper level retail area with views to the Atlantic Ocean.

Faena Forum from the east

Shohei Shigematsu, lead designer, on the Faena Forum
As the cultural core of the Faena District, the Forum provides a focal point to the neighborhood and to the mid-Beach zone at large. The ensemble of three buildings – the Faena Forum, Faena Bazaar and Parking — enrich Faena’s hotel and residential components along Collins Avenue, providing a dynamic symmetry between the district’s cultural and commercial programming across Miami Beach’s main thoroughfare.

Faena Forum from the west

The existing site presented three distinct conditions for the three distinct programs– a large, wedge shaped site for the Forum, a protected historic art deco hotel for the Bazaar and an empty lot allocated for parking. Although the Faena District enjoys a unique location spanning two waterfronts, the cultural components were positioned on the quieter, residential zone along Indian Creek rather than the activated Atlantic beachfront.

Domed space inside the Faena Forum

The Forum claims the heart of the complex by addressing this urban context with two volumes that generate distinct frontages toward Indian Creek Drive and Collins Avenue. Embedded within the residential zone west of Collins, the Forum’s cube and cylinder achieve the same intimate scale as the Bazaar and Park. The Forum’s circular plan enables the public domain to expand, activating pedestrian movement within the district. A 45-foot cantilever allows the landscaped plaza to slip under the Forum along Collins, providing a dramatic sense of arrival.

Walkway around the dome

The combination of the Forum’s classical dome space with a black box theater in the main assembly space provides the ultimate flexibility for the diverse programming of Faena’s multifaceted ambitions. Combined, the full layout has the capacity for large scale events. Independently, the spaces can be divided to host distinct events, with dedicated acoustics and arrival. The Forum represents endless possibilities to host a range of events - from concerts to conventions; roundtable discussion to banquets; intimate exhibitions to art fairs — all within a single evening. Liberated from obligations to operate as a strictly institutional or a strictly commercial entity, the Forum presents a new typology for interaction, leveraging the ambiguous advantage of Faena’s redefinition of culture.

Site Plan
Faena Forum - Level 1 Plan
Faena Forum - Level 2 Plan
Faena Forum - Level 3 Plan
Faena Forum - Level 4 Plan
Faena Forum - Level 5 Plan
Faena District Section (L-R: Faena Forum, Faena Bazaar, Faena Park)
Faena Forum Section

Faena District

2016
Miami Beach, Florida

Architect
OMA - Office for Metropolitan Architecture
New York, NY

Partners
Shohei Shigematsu, Jason Long

Associate-in-Charge
Jake Forster

Concept Design – Design Development
Project Architects
: Clarisa Garcia Fresco, Paxton Sheldhal
Project Team: Clarisa Garcia Fresco, Lawrence Siu, Francesca Portesine, Ravi Kamisetti, Ted Lin, Jesung Park, Anupama Garla, Andy Westner, Daniel Queseda Lombo, Andrew Mack, Caroline Corbett, Denis Bondar, Ahmadreza Schricker, Darien Williams, Gabrielle Marcoux, Marcela Ferreira, Jenni Ni Zhan, Lisa Hollywood, Paul Tse, Sarah Carpenter, Carla Hani, Sean Billy Kizy, Simona Solarzano, Ivan Sergejev, Tamara Levy, Matthew Austin, Ben Halpern

Construction Documentation - Construction Administration
Project Architect
: Clarisa Garcia Fresco, Paxton Sheldhal (BOS|UA),
Project Team: Yusef Ali Denis, Slava Savova, Cass Nakashima, Ariel Poliner, Jackie Woon Bae, Matthew Haseltine, Salome Nikuradze, Simon McKenzie

Project Management
Gardiner & Theobald, Inc., Claro Development Solutions

Architect of Record
Revuelta Architecture International, PA

Landscape Architect
Raymond Jungles, Inc.

Civil Engineer
Kimley-Horn and Associates, Inc.

Structural Engineer
DeSimone Consulting Engineers

MEP & Fire Engineer
Hufsey Nicolaides Garcia Suarez Consulting Engineers

Lighting
Tillotson Design Associates

Elevator
Persohn Hahn Associates

Acoustic
Electro-Media Design, Ltd., Stages Consultants, LLC

Exterior Building Envelope
IBA Consultants, Inc.

Parking
Tim Haahs Engineers

Theatre Consultant
Stages Consultants, LLC

Food Service Consultant
Clevenger Frable and Lavallee, Inc.

Architectural Concrete Consultant
Reginald Hough Associates

Life Safety
SLS Consulting, Inc.

Security
Security Industry Specialist, Inc.

Building Areas
Faena Forum: 42,565 square feet with a performance hall of 6,700 square feet
Faena Bazaar: 20,074 square feet
Faena Park: 28,283 square feet

Photographs
Iwan Baan

Drawings
OMA

Related articles 

Other articles in this category