U.S. Building of the Week
Figure 8 House
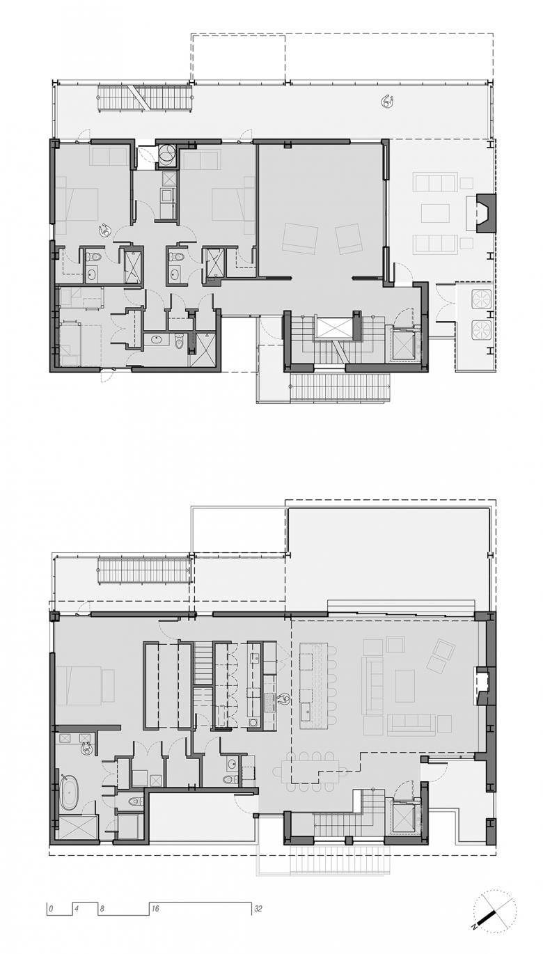
This house takes its name from Figure Eight Island, a barrier island in North Carolina that is home to a large number of regionally inflected modern homes. Point Office responded to the island's architectural context and the dictates of coastal regulations. The architects answered a few questions about their design of Figure 8 House.
Location: Wilmington, North Carolina, USA
Client: Withheld
Architect: Point Office
- Design Principals: Clark Tate AIA, Matt Weaver AIA
MEP/FP Engineer: Proficient Engineering, Atlanta
Landscape Architect: Classic Landscapes, Wilmington NC,
Lighting Designer: Gabler – Youngston, Atlanta
Interior Designer: Lee Kleinhelter, Atlanta
Contractor: Parker Construction Group, Wilmington NC, Makawao, Maui Hawai’I
Site Area: 1/2 acre
Building Area: 4,500 sf
We were approached by the client to design a house on a beautiful barrier island that their family had been gathering at for years. They wanted the house to be a unique creation but also wanted to ensure that it integrate gracefully into the existing environment (both natural and built) of the island. They furthermore requested that the house be structured out of steel, as steel fabrication has been their primary family business for generations.
The island that the house is situated on was originally developed in the 1960s and included exceptional examples of regional modernism from that period by local architect Ligon Flynn. Many of those original houses remain and Flynn’s work became a touchstone in early conversations between us and the client. The house we designed could perhaps be seen as a reinterpretation of some of Flynn’s architectural concepts, and by extension, the original architecture on the island.
Coastal regulations for this area dictate that houses be designed and constructed to withstand severe flood and storm events which, by and large, means houses have be elevated to allow coastal floodwaters to pass underneath. We chose to embrace this requirement by materially distinguishing the base of the house from the upper volumes and by creating a large, central ‘dog-trot’ passage through the house at the ground level.
In response to the site and the client’s programmatic goals we began with a simple rectangular form in the initial design stages. As the design process evolved the greatest changes centered around pushing and pulling the volume (as made possible by the steel structure fabricated and erected by SteelFab, Inc.) to create a more dynamic architectural expression. The extrusions result in pockets for small gathering, extensions for views and breezes, and moments of both introversion and exuberance.
Cladding the house in an unfinished cedar that will weather over time was critical in situating it in its natural environment. Along these lines we also designed portions of the exterior wall to be slatted, which serves to blur the border of house and ground plane while subtly referencing adjacent reeds and palms. From a technical standpoint it was critical that the glazing and door systems (Fleetwood Doors & Windows) be sophisticated enough to handle the large volumes of rain and the occasional hurricanes associated with this coastal region.
Email interview conducted by John Hill.









