US Building of the Week
First Tech Federal Credit Union, Corporate Office
At the time of its completion the corporate office for First Tech Federal Credit Union in Hillsboro, Oregon, west of Portland, was the largest glulam and cross-laminated timber (CLT) building in the United States. More important than such an accolade is how the design by Hacker aligns with the company's “People First” motto to create healthy workspaces. The architects answered a few questions about the building.
Location: Hillsboro, Oregon, USA
Client: First Tech Federal Credit Union
Architect: Hacker
- Design Principals: Corey Martin; Jennie Fowler
- Project Architect: Chandra Robinson
- Project Manager: Stefee Knudsen
- Project Team: Scott Barton-Smith, Vijayeta Davda, Maddy Mackin Freeman, Matt Sugarbaker, Amelie Reynaud
MEP Engineer: Glumac
Acoustical Engineer: Listen Acoustics
Landscape Architect: WHPacific
Lighting Designer: O-
Interior Designer: Hacker
Contractor: Swinerton Builders
Design-Build Subcontractors: Apollo, Oregon Electric Group (OEG)
Building Area: 156,000 sf
First Tech Federal Credit Union’s motto is “People First” and their new Oregon campus is designed to support and promote the health, comfort, and happiness of their employees. Each design choice — from the cross laminated timber (CLT) structural system and the vast windows, down to the material details and finishes — aims to blur the line between inside and out, bridging a connection between people and nature.
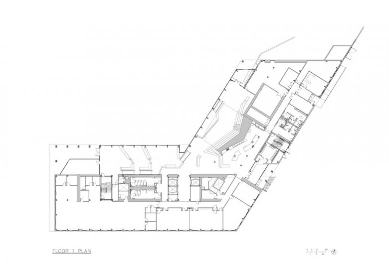
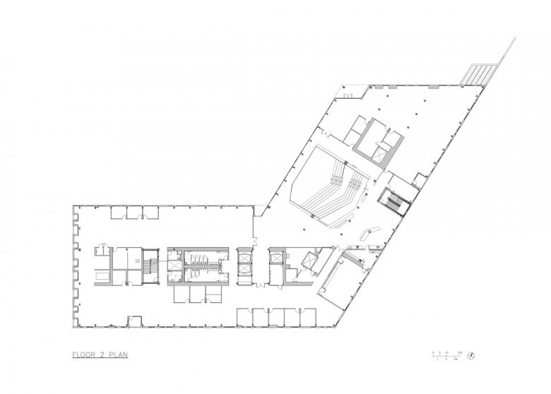
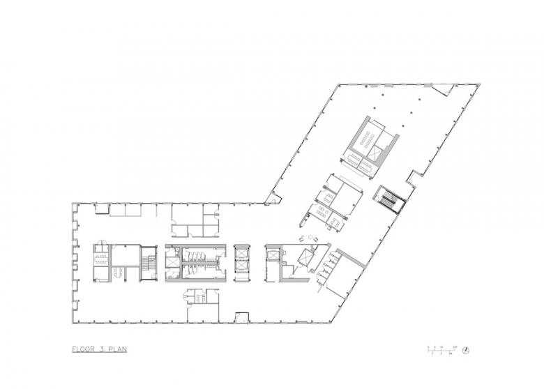
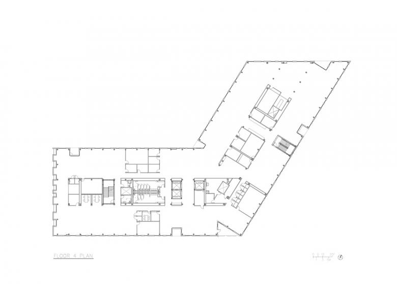
Mass Timber: Much of the building’s design draws on the beauty of wood and the CLT structural system. The elegant timber frame is visible throughout the building, complemented by a warm, natural material palette. The glulam beams frame floor-to-ceiling views to the park and the creek that surrounds three sides of the site. Raised access floors conceal HVAC, electrical, and low-voltage systems, contributing to clear, uncluttered spaces that showcase the simple beauty of the CLT.
People First: The open office system is designed with emphasis on equitable access to natural light and views, with work stations on each floor arranged to ensure that all employees can benefit from biophilic opportunities, and that there are no “bad” work stations. Additional program elements in this office build include: a distinctive central commons with stadium-style seating, capable of accommodating large gatherings and presentations; a kitchen and lunch room adjacent to the courtyard; a coffee bar, which is operated and staffed by students through a partnership with the local school district; a game room; training rooms; private huddle rooms; and flexible collaboration spaces with retractable walls allowing teams and work groups to define their own spaces as needed.
Viewed from a distance, this 156,000-square-foot building nearly disappears into the landscape. The mirrored facade reflects the sky, trees, and creek, and the randomized pattern of the exterior paneling helps to minimize the visual size of the building. The boomerang-shaped building footprint creates an embraced courtyard that allows work and leisure spaces to spill outside. The site’s naturally sloped topography continues into the first and second floor, expressed through shallow terraces in the communal dining area and culminating in an amphitheater-style all-hands space that expands into a double height atrium.
The building achieved LEED Gold certification. An exemplary score was awarded in the regional materials category as all the columns, beams, and CLT were sourced and refined within five hundred miles of the site. Upon completion, First Tech was the largest glulam and CLT building completed in the United States.
Email interview conducted by John Hill.












