Flathead Lake Cabin

30. June 2014

Flathead Lake Cabin
Polson, Montana

Architect
MacArthur, Means & Wells, Architects
Missoula, MT

Project Architect
Don MacArthur

Project Manager
Mike Bond

Contractor
Scariano Construction

Site Area
1/2 acre

Building Area
2,934 sf (1,559-sf with 1,375-sf basement)

Photographs
Chris Chapman Photography

Drawings
MacArthur, Means & Wells, Architects

North Elevation

What were the circumstances of receiving the commission for this project?

The client is actually a contractor we’ve hired a number of times, for example on a remodeling project in Missoula. He had hired us to remodel his house, so later he came to us to design him a summer cabin – more accurately it's a year-round cabin but not his primary residence. Rather than a project with an RFQ or RFP, it was a typical residential commission where he came to us directly.

East elevation, looking toward lake

Please provide an overview of the project.

The Flathead Lake Cabin is a year-round cabin on the shore at the south end of Flathead Lake. It was designed for a couple in their forties and their four school-age sons. The cabin has terrific views to the north, up the 25 mile length of the lake, and east, to the Mission Mountains.

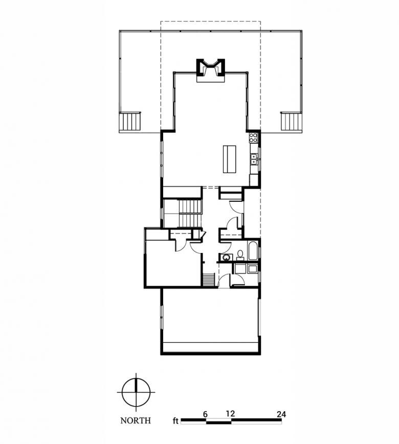
The main floor houses the primary living area, master bedroom, and garage. The loft bunkroom above the garage is accessed by ladder. The ground level has two sleeping porches, a family room, and storage. The cabin has beds to sleep 10 and the ground floor family room can accommodate another visiting family. There are two full bathrooms, one on each floor.

East elevation

The living areas in the cabin face the water. On the main level the living room is enclosed only by large sliding glass doors and the fireplace. The cabin feels like an open air pavilion when the doors are wide open. An elevated concrete patio surrounds the living room on three sides and allows a variety of shaded or sunny experiences, each with a spectacular view. Outdoor dining is fantastic on the east side of the house with views to the mountains and the lake but protected from the late afternoon sun. The indoor and outdoor fireplaces recall beachside campfires and allow the family to gather comfortably around the hearth in any weather while watching the lake. Stairs connect the main level patio to grade.

West Elevation

What are the main ideas and inspirations influencing the design of the building?

The site informed the design in powerful ways. It is located at one end of the 25-mile-long Flathead Lake, on a site with views the length of the north-south lake. The site slopes gently on a rolling lawn to the lake edge, although steep cliffs edge the rest of the lake. We had the idea early on that the building would be like a wedge of land lifted up from the land. The slope of the site is 16%, and the grass-roof wedge has same slope. So the project's poetic image is of a wedge of land that follows the natural slope.

Further we focused on the idea of a glassy living area with anchored by a heavy masonry chimney. This is Montana, so it is cold in the winter, and we wanted the idea of fire and hearth to be an important part of the cabin experience, yet balanced by looking at the length of the lake through the glass walls.

Entry

To what extent did the clients and/or future users of the building influence the design and the outcome of the building?

In the early stages we had a programming session wth the owners, and one of the poerwful images they brought forward from having owned and camped on the site for years was the the idea of an open tent wall facing onto the water. This becamse a powerful image that pushed us toward the transparency of the living area.

In the more practical, contractor end of things, they were very interested in using reclaimed materials, in being thoughtful about resources. They had the idea of using salvaged materials, such as the metal siding that was salvaged from a historic barn near the site. While the form is hardly traditional, the use of materials ties the building back to the area's vernacular history. Came with idea of salvaged materials, such as metal sideing was slavaged from historic barn near site. Form is not traditional but tied back to vernacular history through use of materials.

Also, they were intrigued with having a grass roof planted with native grasses, something that came from us as a way of making a connection with the landscape.

Interior, looking north toward lake

Were there any significant challenges that arose during the project? If so, how did you respond to them?

From my perspective it was quite easy. The owner/builder was very committed to the design, and he was very proactive about problem solving issues that came up during construction. They did a great job considering it was a tight site with very little room to work on and a steep pitch to deal with.

Really the only struggle we had was a small one in getting the roof to our liking. The idea was that when you look at the wedge from ths side, the wall-to-grass-roof transition would be a minimal detail, so the depth of the soil would not be visible. We went back and forth to get the right profile and make it watertight. Initially we pictured the grass roof extending to point, but this was not possible due to the required soil depth. So we adapted it to have a metal roof that comes to a crisp point, which looks just the way we wanted it.

Evening view toward lake

How would you describe the architecture of Montana and how does the building relate to it?

In any palce there are a variety of architecture strands happening. This cabin is in the strand of a modern conception of space, though in Montana lots of houses are built as log houses, with a dominant hunting/western motif. Nevertheless, some architects are doing things that are more responsive to the landscape. Since the landscape at Flathead Lake is fantastic, the cabin is trying to say something about the landsape and to keep the focus on the landscape.

Phone interview conducted by John Hill.

Site Plan
Main Floor Plan
North-South Section, looking west

Flathead Lake Cabin
Polson, Montana

Architect
MacArthur, Means & Wells, Architects
Missoula, MT

Project Architect
Don MacArthur

Project Manager
Mike Bond

Contractor
Scariano Construction

Site Area
1/2 acre

Building Area
2,934 sf (1,559-sf with 1,375-sf basement)

Photographs
Chris Chapman Photography

Drawings
MacArthur, Means & Wells, Architects

Related articles 

Other articles in this category