Fulton Center

2. May 2016

Fulton Center

2014
New York, NY

Client
MTA - Metropolitan Transportation Authority

Architect
Grimshaw*
New York, NY

*Grimshaw (primary headhouse building at the corner of Broadway and Fulton); additional work was done by HDR (new entries and platforms) and Page Cowley (the Corbin Building)

Prime Consultant and Structural Engineer
ARUP

M & E Consultant
ARUP

Quantity Surveyor
VJ Associates

Main Contractor
Plaza Schiavone Joint Venture

Sky Reflector-Net Artwork
James Carpenter Design Associates

Consultant Construction Manager
PB-Bovis Lend Lease

Total Square Footage
190,000 sf

Photography
James Ewing

Drawings
Grimshaw

What were the circumstances of receiving the commission for this project?
Grimshaw responded to an open RFQ from which four teams were selected to develop detailed proposals. Grimshaw’s team, led by Arup, was selected after a final interview. Fulton Center was completed in November 2014. The projected commenced in 2004, requiring ten years for completion.

Please provide an overview of the project.
Situated in the heart of Lower Manhattan, the Fulton Center is designed to be a catalyst for the redevelopment of the area. The dynamic transport environment is a vital link to this commercial center and its growing residential sector, streamlining connectivity between eight New York City subway lines and enhancing the user experience for 300,000 daily transit passengers.

The brief called for the selected architect to "enhance the user experience" for 300,000 daily transit passengers and design the project to serve as a catalyst for the redevelopment of Lower Manhattan. The project was an opportunity to relieve the frustrations of the daily user at the Fulton Street station complex and provide a civic space that honors New York’s past while inspiring renewed optimism for its future.

At the same time, the project was also presented with significant challenges: untangling a confusion of subway lines into a cohesive transit hub, pairing that new utility with an equally transformative beauty, rehabilitating and incorporating the adjacent 125-year-old registered landmark Corbin Building, and constructing it all in one of Manhattan’s most intensely congested neighborhoods. The assembled team accomplished each of these objectives towards establishing Fulton Center as a new gem of Lower Manhattan, a space to rival New York City’s greatest transportation hubs. Today, the station is a transformational piece toward the revitalization of Lower Manhattan and a testament to a collaboration of excellence in design, planning, preservation, and construction.

How is the project laid out?
Fulton Center is organized around a large-scale atrium contained within an elegant, transparent façade. Tapered steel columns draw inspiration from the historic neighborhood’s cast-iron buildings and complement the integration and restoration of the adjacent Corbin Building. The greatest design problem was in negotiating the labyrinth of dimly-lit passageways, confusing signage, and cumbersome transfers between subway lines, a century-old relic of a time when the lines were owned by three competing companies. Now, carefully aligned entrances and exits allow the streetscape to permeate the building, defining clear and efficient pathways across an open ground plane and unimpeded to all trains. Passengers now encounter brighter, widened walkways with clear signage connecting the complex array of platforms. Today’s Fulton Center is a model of transit efficiency and ease-of-use.

Once inside the Fulton Center, travelers will find interconnected subway stations, serving nine transit lines of the MTA New York City Transit subway system (2, 3, 4, 5, A, C, J, Z and R). In addition to the transportation functions of the complex, commercial space is offered within the restored Corbin Building, a historic and integral part of the finished project, and retail space is offered within the project’s soaring atrium, which also functions as a grand civic space. Travelers will also find remodeled entries on William, Dey and John Streets. The Dey Street connecting concourse will eventually allow travelers direct accessibility to the World Trade Center’s underground concourse.

Both a neighborhood asset and regional interchange, the Fulton Center fulfills a significant civic role as a gateway to and from Lower Manhattan. Commuters and visitors alike arrive and depart through a memorable, contemporary urban transit center that celebrates the city’s history while looking forward to the area’s future and its escalating growth.

Can you please describe the dome above the atrium?
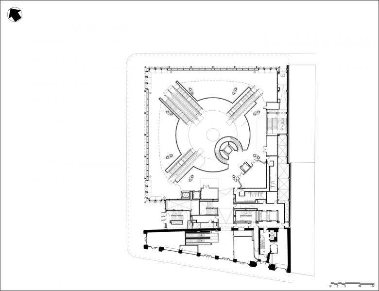
Perhaps the most prominent, and certainly the most photographed, component of the Fulton Center is Sky Reflector-Net, an integrated public artwork designed to reflect natural light deep into the subway station environment below. Situated beneath a 53 ft. diameter skylight known as an oculus, the artwork utilizes 952 polished aluminum panels attached to a carefully calibrated cable net structure to make optimal use of available natural light year round. A “scatter gloss” finish enables the panels to reflect up to 95% of the light that reaches them while carefully placed glass lenses amplify sunlight as it enters the oculus. Composed of 112 tensioned cables, 224 high-strength rods and nearly 10,000 individual stainless steel components, the design of the steel cable net sculpture emphasizes simplicity of construction and optimal performance in all environmental conditions. Held aloft below the oculus, the artwork paints an ever-changing image of the sky across the Fulton Center’s atrium.

Sky Reflector-Net is a collaboration between Grimshaw Architects, Arup and James Carpenter Design Associates (JCDA), with preliminary form-finding by Schlaich Bergermann und Partner, commissioned by MTA Arts & Design and MTA Capital Construction Company.

JCDA was commissioned by MTA Arts for Transit and Urban Design and Urban Design Program. Given the civic nature of the brief, the importance of this major mass transit hub for Lower Manhattan and the special importance of the site adjacent to Ground Zero, JCDA submitted a design that would support Grimshaw Architects’ desire to integrate the experience of daylight into the subway experience, thereby making a stronger connection between the city’s stratified levels.

How did the project change between the initial design stage and the completion of the building?
Designing and upgrading the Fulton Center was a challenge, combining numerous historical elements and design motifs with contemporary architecture and planning aimed at improving the passenger experience. Many artistic elements from the previous incarnation of the station were held over, including intricate tile work by Heins & Lafarge, while contemporary, more resilient complementary finishes were chosen for the highly-trafficked station. The Corbin Building, one of the first skyscrapers constructed in New York City, was meticulously restored, bringing back its former luster and lending a sustainable element to the project by repurposing the elegant brick and terra cotta façade. Both the façade and interior elements were restored, conserved, and cleaned instead of replaced, thus preserving as much of the original 19th century construction as possible.
 
Critical but less obvious interventions allow the station to meet contemporary accessibility codes, lending mobility-impaired passengers new connections and easier transit around the station environment. All visitors are assisted by the updating and addition of various signage and wayfinding elements, pointing passengers to their trains and available exits while assisting transfers and integrating revenue opportunities through advertising. 

Email interview conducted by John Hill.

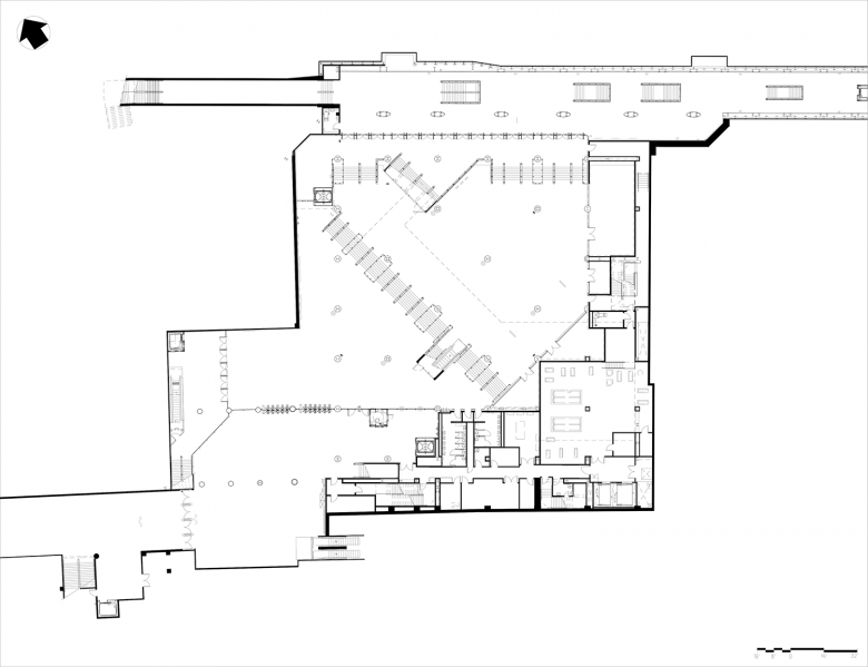
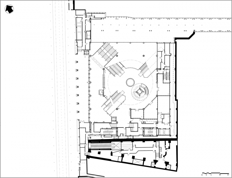
Site/Roof Plan
Lower Level Plan
Platform Level Plan
Ground Level Plan
Mezzanine Level Plan
North-South Section
West (Broadway) Elevation

Fulton Center

2014
New York, NY

Client
MTA - Metropolitan Transportation Authority

Architect
Grimshaw*
New York, NY

*Grimshaw (primary headhouse building at the corner of Broadway and Fulton); additional work was done by HDR (new entries and platforms) and Page Cowley (the Corbin Building)

Prime Consultant and Structural Engineer
ARUP

M & E Consultant
ARUP

Quantity Surveyor
VJ Associates

Main Contractor
Plaza Schiavone Joint Venture

Sky Reflector-Net Artwork
James Carpenter Design Associates

Consultant Construction Manager
PB-Bovis Lend Lease

Total Square Footage
190,000 sf

Photography
James Ewing

Drawings
Grimshaw

Related articles 

Other articles in this category