Galileo's Pavilion

Galileo's Pavilion

12. November 2012

Galileo's Pavilion
2012

Overland Park, KS

Client
Johnson County Community College

Architect
Studio 804, University of Kansas School of Architecture, Design, and Planning
Lawrence, KS


Professor
Dan Rockhill

Students
Aaron Aday, Megan Carrithers, Chris Claassen, Raymond Dwyer, Jon Hanes, Nate Jarvis, Seamus McGuire, Phil Meyer, Rhett Morgan, Thomas Nguyen, Dan Nordmeyer, Kevin Porter, Liz Pritting, Melissa Schoch, Andy Seemiller, Adam Smith, Stephanie Stone

Photographs and Drawing
Courtesy of Studio 804, University of Kansas School of Architecture, Design, and Planning

Exterior view from the south 

Studio 804 is named for the graduate-level design-build class taught by J.L. Constant Professor Dan Rockhill. Students in the fulltime, two-semester course design a building during the fall each year and construct it in the spring. Last fall a group of administrators for the community college visited the Center for Design Research, a building that Studio 804’s designer-builders had recently completed. The CDR is an energy efficient, glass-and-stone clad classroom located on KU’s West Campus. The CDR inspired Terry Calaway, JCCC’s president, to ask Rockhill if Studio 804 could build an even more sophisticated building on their campus.

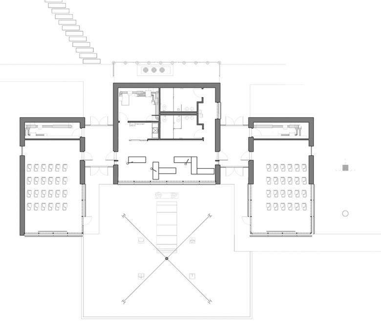
Floor Plan
Exterior view from southeast 

JCCC’s new building is sited just north of  “Galileo’s Garden,” an interactive art piece by artist Dale Eldred. His artwork functions as a solar calendar, and uses several sculptures to demonstrate the way the sun’s path varies throughout the seasons. The plan of the new building is U-shaped, with a classroom housed in each of its two wings. A pair of vestibules and reception area join the wings. In the reception area students can view explanations of the building’s sustainability features. For example, the building’s energy consumption, and how much electricity its photovoltaic panels and wind turbine are producing are displayed on a monitor in real time. JCCC also receives credit from the local utility company for the electricity generated by the photovoltaic panels and wind turbine.

Interior view of lounge 

Other sustainability features include LED lighting, and walls planted with ferns to purify the indoor air. The harvesting of rainwater for later use, and green roof trays that grow drought resistant plants both reduce runoff from the building. Some parts of the building were prefabricated before being taken to the building site and assembled in the School of Architecture, Design, and Planning’s 80,000 square-foot East Hills shop and fabrication facility, just outside Lawrence.

Interior view of west classroom 

Galileo’s Pavilion is expected to earn a U.S. Green Building Council LEED Platinum rating, the highest that is offered by the organization. It would be Studio 804’s fifth building to do so in as many years. Rockhill said his students were inspired by JCCC’s commitment to resource conservation and changing the way its students think about buildings. “Universities are about ideas and service to communities. Our role is to demonstrate the ideas and concepts that will propel us into a future that builds on both the successes and mistakes of the past,” he said.

Exterior view of courtyard from east 

The use of recycled materials is an attribute of nearly all Studio 804’s buildings. In this case, portions of the north, west, and east façades of the building are clad in slate chalkboards reclaimed from schools throughout the Midwest. The south facades and remaining portions are clad in full-height glass panels. Louvered glass screens that resemble oversize jalousie windows cover these glass walls. The glass louvers are not just decorative. They are angled so they block heat from the summer sun when it is high relative to the horizon. In the winter the sun shines between the louvers, heating the polished concrete floors inside. 

Galileo's Pavilion
2012

Overland Park, KS

Client
Johnson County Community College

Architect
Studio 804, University of Kansas School of Architecture, Design, and Planning
Lawrence, KS


Professor
Dan Rockhill

Students
Aaron Aday, Megan Carrithers, Chris Claassen, Raymond Dwyer, Jon Hanes, Nate Jarvis, Seamus McGuire, Phil Meyer, Rhett Morgan, Thomas Nguyen, Dan Nordmeyer, Kevin Porter, Liz Pritting, Melissa Schoch, Andy Seemiller, Adam Smith, Stephanie Stone

Photographs and Drawing
Courtesy of Studio 804, University of Kansas School of Architecture, Design, and Planning

Related articles 

Featured Project 

Atelier KI JUN KIM

House by the Wall

Other articles in this category