GAP

GAP

1. April 2015

GAP
2014
Chiba

Architects
Komada Architects' Office

Design Principal
Takeshi and Yuka Komada

Project Team
Kenji Yokota

Structural Engineer
Yasushi Moribe

Contractor
Tokyo Kokudo Kaihatsu

Constr. Manager
Isao Oya

Site Area
207.64 ㎡

Building Area
80.95 ㎡

Total Floor Area
117.79 ㎡

Photo
Noboru Inoue

North exterior. The approach is on the right, facing the deck and Japanese-style room. 


Please give us an overview of the project.

This is a home for a young couple with one child. The clients participated in designing the landscaping, and in order for them to be able to see the garden from every part of the house we decided to set the structure in the approximate center of the property.

Inside, we omitted conventional ceilings and instead covered the frame with large, canopy-like roofs. Below the canopy, a grid of walls extends down from the intersections of the ceiling beams. By carving out parts of these walls, we were able to create an assortment of heterogeneous spaces within a single loosely-partitioned room. Spaces appear and disappear behind the wall fragments as you move through the house, constantly changing what is visible. In that sense we were aiming for a forest-like home. 

Evening view of the exterior, showing slit-like windows below the roof of the first and second stories.
Entryway viewed from the living room, with the Japanese-style room to the left. 


What was most important for you during the design process?

Creating places for family members to spend time alone but still be able to sense the presence of the other people in the house. 

Dining room viewed from the northwest corner of the living room. The desk corner is to the left, and beyond that the pantry leading to the kitchen.
Looking towards the entryway and dining room from the east side of the living room. The exposed beams are visible above the grid of walls.


What did you learn from this project? What will you take from it to future projects?

We got the idea for playing up the exposed ceiling beams from an earlier renovation project we’d done, “Funabori.”  We realized that the line between building new structures and doing renovations is very flexible, and we’re not particularly interested in making a clear distinction between the two (aside from in a social sense). 

Dining room with sliding glass doors opening onto the deck. The kitchen is beyond the opening visible to the left. 
Looking from the dining room to the living room. The single room is loosely partitioned into heterogeneous spaces by hanging walls.


How does this project fit into current architectural trends such as sustainability, social function, or technology? 

The house is simple and practical but not designed exclusively with practicality in mind, and has an active relationship with the exterior environment. Although it was created for a particular family, it can be used later by other people who want an open structure, whether as a residence or for other purposes. 

Looking from the dining room to the living room. The entryway is beyond the wall storage.
Looking from the kitchen doorway to the living room. The light coat of paint on the walls highlights the rough texture of the structural plywood. 


What challenges did you face in the project? How did you respond to them?

We turned the tight budget to our advantage by intentionally exposing the ceiling beams (we did not plan their layout any differently than normal, however). That led to the concept of the roof as a canopy-like structure with slit-like windows below it to let sunlight in. For the walls, we used ordinary plywood covered with only one layer of paint, which kept costs down and also accentuated the rough texture of the wood (it’s hard to see the texture in the photographs). 

Looking down on the living and dining rooms from the spiral staircase. The gap between the walls and roof is visible.


What is the societal role of the architect?

Houses designed only for a particular user or set of users have limited value for future generations. We can refer to ourselves with the single word “architect,” but we carry out a wide range of work. For architects like us who build many individual residences, I think it is difficult to perform our role with impact every time. Nevertheless, it’s important that we respond adequately to the client’s requests while at the same time creating structures that are open to the community and to people beyond the client. I think that over time those small accomplishments build up and become the catalyst for social change.  

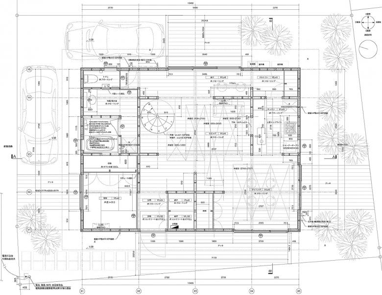
First floor plan 
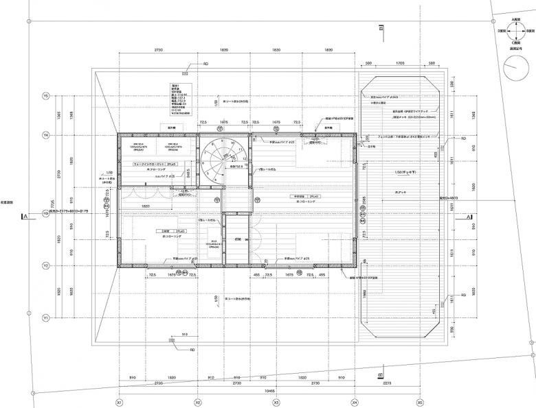
Second floor plan 
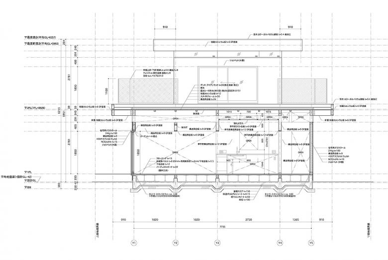
Section 
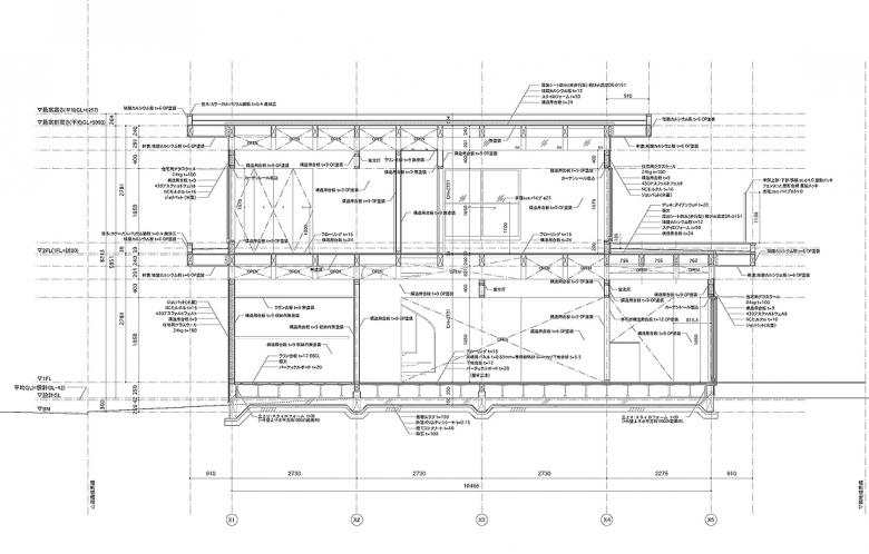
Section 

E-mail interview by Yuna Yagi (translated from Japanese by Winifred Bird)  

GAP
2014
Chiba

Architects
Komada Architects' Office

Design Principal
Takeshi and Yuka Komada

Project Team
Kenji Yokota

Structural Engineer
Yasushi Moribe

Contractor
Tokyo Kokudo Kaihatsu

Constr. Manager
Isao Oya

Site Area
207.64 ㎡

Building Area
80.95 ㎡

Total Floor Area
117.79 ㎡

Photo
Noboru Inoue

Related articles 

Other articles in this category