Gary Comer College Prep

Gary Comer College Prep

4. July 2011

Gary Comer College Prep
2010

Chicago, IL

Client
Comer Science and Education Foundation

Architect
John Ronan Architects
Chicago

Design Principal
John Ronan

Project Architect
Josh Bergman

Project Team
Evan Menk
John Trocke
Marcin Szef
Lane van Buren
Sam Zeller

Structural Engineer
Goodfriend Magruder Structure

MEP/FP Engineer
WMA Engineers

Interior Designer
John Ronan Architects

Contractor
Norcon, Inc.

Corrugated Stainless Steel
Centria

Aluminum Composite Panels
Alpolic

Precast Concrete Panels
Mid-States Concrete

Membrane Roofing
Sarnifil

Glass Curtainwall
Vistawall

Site Area
53,485 sf

Building Area
45,000 sf

Photos
Steve Hall
Hedrich Blessing Photography

Exterior view from the sidewalk

What were the circumstances of receiving the commission for this project?

We were selected because we had designed the youth center (completed 2006) with which this building forms a campus.

Exterior view from the south west at dusk

How does the completed building compare to the project as designed? Were there any dramatic changes between the two and/or lessons learned during construction?

The building started out with a series of courtyards carved out of the building mass; later, these courtyards were removed for cost reasons, and a series of linear skylights were added to bring natural light into the center of the building. Classroom walls were glazed so that classrooms could receive light from two sides (through exterior wall and corridor wall).

Interior view from the corridor looking through a classroom

How does the building compare to other projects in your office, be it the same or other building types?

The project is one of four high schools we have completed in the past year or so. Each one is different and unique to its culture. This one speaks to issues of security—it is in a neighborhood troubled by violence—with its perforated metal cladding over the windows. The spring green color references the youth and optimism of its young faculty. Glass classroom walls both reflect its goals of transparency and accountability, as well as shape its culture.

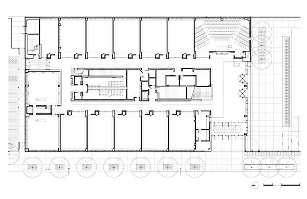
Ground floor plan

How does the building relate to contemporary architectural trends, be it sustainability, technology, etc.?

This LEED Silver-certified building’s envelope is designed to minimize energy consumption; 3” of rigid exterior insulation supplement in-wall insulation to provide strong thermal performance, while an extensive green roof and 12” of roof insulation combine to provide thermal efficiency from above. An extensive green roof mitigates the urban “heat island” effect. Perforated metal screening on the outboard side of the windows on the east and west facades and low-e glass minimize heat gain. Porous paving in the faculty parking lot allows for site retention of rain water, to reduce the amount of water handled by the city sewer system.

E-Mail Interview conducted by John Hill

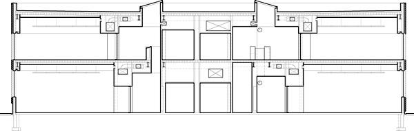
Section – looking east
Section – looking north - classrooms

Gary Comer College Prep
2010

Chicago, IL

Client
Comer Science and Education Foundation

Architect
John Ronan Architects
Chicago

Design Principal
John Ronan

Project Architect
Josh Bergman

Project Team
Evan Menk
John Trocke
Marcin Szef
Lane van Buren
Sam Zeller

Structural Engineer
Goodfriend Magruder Structure

MEP/FP Engineer
WMA Engineers

Interior Designer
John Ronan Architects

Contractor
Norcon, Inc.

Corrugated Stainless Steel
Centria

Aluminum Composite Panels
Alpolic

Precast Concrete Panels
Mid-States Concrete

Membrane Roofing
Sarnifil

Glass Curtainwall
Vistawall

Site Area
53,485 sf

Building Area
45,000 sf

Photos
Steve Hall
Hedrich Blessing Photography

Related articles 

Other articles in this category