GEMS World Academy Lower School
Chicago's Lakeshore East development consists primarily of high-rise residential towers oriented about a central green space just steps from Millennium Park and the Loop. At one corner of the park is the ten-story GEMS World Academy, the first of two planned school buildings designed by bKL Architecture for Dubai-based GEMS Education. The architects at bKL answered a few questions about the building, whose colorful facade makes the vertical campus a pleasing addition to the community.
Please provide an overview of the project.
The 83,000-square-foot GEMS World Academy Lower School stacks ten floors of state-of-the-art learning spaces into an efficient stepped footprint. The school is located in the downtown Lakeshore East neighborhood, characterized by its high-rise buildings. This is GEMS’ first North American facility and is phase one of a two-building campus that assists in completing the broader Lakeshore East masterplan. With its playful façade, the building provides an aesthetic contrast and creates a civic gesture within its otherwise neutral setting. GEMS is an international network of private schools and their new Chicago facility marries GEMS’ global program with local requirements, creating a new model for this high-rise school.
What are the main ideas and inspirations influencing the design of the building?
The exterior of the school was given extensive consideration. The design intentionally introduced color to distinguish the facades from the surrounding residential buildings and using the curtainwall to express the nature of the multi-story facility. The selection and arrangement of materials showcase the school‘s brand and highlights the importance of learning to the broader community. The curtainwall creates a focal point for the neighborhood and is visible from multiple vantage points beyond the immediate community.
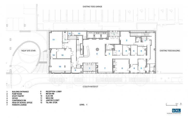
As a multi-story school, the design was developed around vertical strategies that limit circulation time. The cafeteria, multi-purpose room, and library are among the spaces strategically located on floors 5-7 to promote a feeling of community, while enabling easy circulation from classrooms at the base and the top of the building. With three elevators, two light-filled stairwells and with centrally stacked common spaces, walkability is promoted and accessibility is achieved.
A major focus was the provision of natural light throughout the building. Bound by existing construction at its base, use of single loaded corridors enables daylighting. All major teaching and administrative spaces were located along the south side of the site to take advantage of daylight and views. Vertical and horizontal circulation is located to the north, integrating natural light wherever possible and to bring light into the corridors.
Flexibility, optimized floor area, collaboration and connectivity, and a unified approach to design also drove the interior space features. The building fills the 9,500 s.f. site footprint and the even more compact 7,500 s.f. upper floor plates maximize use of instructional space through careful selection of furniture and installation of perimeter storage. Due to limitations of the size of each floor, a multifunctional approach was considered for the uses of the dining hall and gym (each of which fill nearly a full floor) as well as other instructional spaces. With the restrictions of a very small site, the Lower School has limited outdoor area. The introduction of an outdoor playground at the 10th level enables children to play outside while having impressive views to the Chicago lakefront. Children are protected at this space by extending the curtainwall a full level above the rubber play surface.
The holistic approach to integration of technology is intended to create a connected and flexible learning hub that enables collaboration internally and with GEMS facilities across four continents. The network of schools enables a broad cultural interface that encourages critical thinking and develops leadership abilities. Easily movable furniture and the thoughtful integration of touchscreen LCDs support varied learning activities. Throughout the school, smart furnishings, colorful finishes, and multiple textures are intended to keep the spaces flexible, welcoming and foster a strong sense of place.
The facility was efficiently planned with the intent that the school would also make use of the city’s extensive resources. GEMS has made arrangements around the city to utilize existing recreational fields and sports facilities. With numerous public and private partnerships to supplement the offerings provided within their own building, GEMS also makes use of the “city as a classroom.”
Additionally, no new parking has been provided for the Lower School, with the assumption that parking demands can be met by the multiple surrounding facilities.
How does the design respond to the unique qualities of the site?
The mid-rise school infills a slim and challenging site at the corner of Lakeshore East Park and takes cues from its surrounding environment. The facility’s stepped massing responds to planned development requirements, established building datum lines, and a bi-level site section. The compact, vertical design addresses limitations of the site foot print, height and setback restrictions, and existing construction abutting its base.
For its first four floors, the school is bound by walls on three sides. With access to natural light limited to only the south façade at these levels, the need for single loaded corridors set the planning direction for the building. The massing addresses both the school’s programmatic needs and enables the adjacent residential tower to retain access to light and natural ventilation.
With a creative approach to managing vehicular traffic, the facility makes use of the first floor of an adjacent residential parking structure as an internal drop-off for the school, thereby limiting cars from entering the park level ring road. With additional modifications to the garage, cars can circulate efficiently from access roads with minimal traffic impact to the neighborhood.
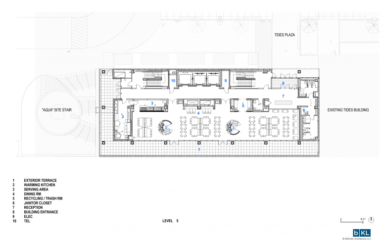
As the roof of the same adjacent garage doubles as a pedestrian plaza for the community, GEMS’ fifth floor incorporates a secondary school entrance at this upper level. The cafeteria and private terrace provide for a vibrant indoor/outdoor hub that purposely aligns with this upper level walkway. At the top of the building, multi-level green roofs and a rooftop playground provide appealing views for surrounding building occupants and assist in reducing the building’s carbon footprint.
With its comparatively playful façade, GEMS provides an aesthetic contrast within the neighborhood. The curtainwall’s modernist composition of interlacing colored metal panels and varied glass creates a strong presence in the park. The arrangement of unitized aluminum panels emphasizes the vertical nature of the planning and creates a strong civic presence.
Was the project influenced by any trends in energy-conservation, construction, or design?
By utilizing a curtainwall system as the primary building enclosure, bKL Architecture was able to balance user experience, aesthetics and energy efficiency. With a combination of high performing Low E glass and insulated metal panels a cohesive exterior design is achieved. The facades address a range of interior functions, provide an abundance of natural light and limit thermal heat gain. The arrangement of unitized elements emphasizes the vertical nature of the school and allowed for fast paced fabrication and construction requirements.
Properties of the building envelope were studied in the broader context of the building’s design through the development of a computer generated energy model. Through this, a coordinated approach to energy efficient walls, roofs and mechanical systems was developed. For GEMS, the integration of insulated metal panels and insulated glazing units have both a positive effect on energy savings and a strong visual impact. As large areas of glass were planned, an interior lighting scheme was developed to incorporate both digital and user controls. With these features in place, real time daylight harvesting can be achieved, providing appropriate light levels for varied activities as well as significant energy reduction. Two of GEMS facades incorporate high impact glass with a silk screened pattern that covers 60% of the glass surface at the Multipurpose Room. Use of the frit cuts down on glare without the need for shades, enabling the space to be used for athletic functions with only a subtle change in appearance to the exterior.
Due to its height, the school’s vertical circulation is achieved through two light filled stairwells and three elevators. Integration of glass at the stairwells provides students and staff with a frame of reference to the exterior and improves wayfinding as students move from floor to floor. A sun study confirmed that the positioning of the stairs at the north elevation, combined with the shading effects of surrounding buildings, would limit solar heat gain to these spaces.
The building made use of a cast in place concrete structural system to maximize the floor to floor heights. This strategy allowed four levels to be stacked between grade (street level) and the exterior pedestrian plaza. Use of this system also allowed for maximum upper level floor to floor heights to be achieved, while maintaining a total building height that met planned development requirements.
GEMS‘ mechanical system adds another unique aspect to the building by integrating chilled water piping that extends from an existing district cooling plant to the building’s air handling unit, eliminating the need for a chiller in the school. With this system in place, the gross square footage dedicated to mechanical functions is reduced, enabling more usable program area. The district cooling plant creates ice during off-peak electrical hours, reducing the need for additional investment in utility generation and distribution to meet peak loads. The ice, acting as thermal storage, is released slowly during the day when cooling and electricity are at their peak demands. Energy consumption is reduced by taking advantage of cooler ambient air temperatures and running district chillers at their optimum conditions.
What products or materials have contributed to the success of the completed building?
The building’s exterior materials are durable, sophisticated in appearance, and assist in emphasizing the school’s mission for providing high quality education. Made of gray aluminum plates punctuated by primary colors, the vibrant, playful façade provides an aesthetic contrast within the context of the otherwise neutral neighborhood.
Significant consideration was given to the arrangement of features throughout the building. With a concept of the younger students being located toward the base of the structure, older students toward the top, and all using the central portion, wayfinding features help to differentiate the zones. Selection of materials on walls, floors and furniture assists in identifying each section of the school. The interior design provides a variety of spatial experiences, while maintaining a consistency of detailing, providing strategic use of color, and capitalizing daylight and striking views.
Email interview conducted by John Hill.
GEMS World Academy Lower School
2014Chicago, Illinois
Client
GEMS Americas, Inc.
Architect
bKL Architecture LLC
Chicago, IL
Principal in Charge
Thomas Kerwin, FAIA
Project Director
Lynne Sorkin, AIA
Design Director
Michael Karlovitz, AIA
Technical Director
Carl Moskus, AIA
Project Team
Srdjan Avram, AIA
Angela Spadoni, AIA
Brad McBride
Danielle Tillman
Structural Engineer
Halvorson and Partners
MEP/FP Engineer
WMA Consulting Engineers, Ltd.
Landscape Architect
Wolff Landscape Architecture, Inc.
Lighting Designer
Archiluce International
Interior Designer
bKL Architecture LLC
Contractor
Power Construction Company
Owner’s Representative
Arcadis US, Inc.
Curtainwall
Harmon
Exterior Glass
Viracon
Masonry
Elgin Butler
Acoustical Ceilings
Armstrong
Rubber Flooring
Mondo
Site Area
9,500 sf
Building Area
83,000 sf
Photography
Darris Lee Harris Photography, Wayne Cable
Drawings
bKL Architecture LLC















