George E. Wahlen VAMC Parking Structure

3. November 2014

George E. Wahlen VAMC Parking Structure
2013
Salt Lake City, Utah

Client
Department of Veterans Affairs

Architect
Axis Architects
Salt Lake City, UT

Design Principal/Project Architect
Pierre O. Langue, AIA 

Project Manager
Jim Smuin

Project Team
Jeff Douglas

Structural Engineer
BHB Consulting Engineers

MEP/FP Engineer
Van Boerum Frank and Associates (Mech/Plumb)
Envision Engineering (Elec)

Landscape Architect
ArcSitio

Contractor
Pacific North, LLC

Construction Manager
Comtrol, Inc.

Civil Engineer
Great Basin Engineer North

Laser Cut and Bent Cor-ten Panels
Wasatch Laser (pattern provided by architect)

Site Area
5.2 acres

Building Area
109,000 sf

View of Facade

What were the circumstances of receiving the commission for this project?

The project was awarded based on a response to an RFP (Request for Proposals) for a design-build project. Axis Architects teamed with contractor Pacific North and was awarded the project in late 2010.

View of Front Entrance

Please provide an overview of the project.

By 2010 it was apparent that the demand for parking by veteran customers of the George E. Wahlen VAMC at Salt lake City had exceeded the available parking. In response to this, the VAMC made the decision to fund and source a project to design and build a new parking structure at VAMC Salt Lake City.

Our intent was to create a structure that was functional and safe, as well as to create an unconventional and innovative design. This particular project is located on a very prominent section of the VA Campus and we needed to incorporate the parking structure into an aesthetically pleasing, yet low maintenance design that would stay within the original budget. We designed the structure to blend with the existing topography of the site, while decreasing the visual impact of the structure from the adjacent busy street. The panels also serve a function that resolves the issue of light pollution and allows for proper air circulation.

The innovative use of metal for exterior cladding, coupled with the careful attention to site placement makes this facility aesthetically pleasing, low maintenance and highly functional – improving the VA Medical Center as a whole.

Interior

What are the main ideas and inspirations influencing the design of the building?

The design team wanted the veterans using the facility to feel that this noteworthy structure was created specifically for them, to honor and recognize their sacrifices for our country.

The VA also specifically requested that the architect develop a fall protection deterrent solution. Principal in charge of design, Pierre O. Langue, came up with a solution of wrapping the structure with a perforated Cor-ten steel skin. The exterior skin creates a metal cladding system that becomes a virtually impenetrable exterior – thus, effectively eliminating the risk.

View of Exterior Facade

Perforated steel sheets were bent and formed into rigid panels that were then attached to the structure. This allowed the skin to be constructed of a lighter gauge, lowering the overall weight, as well as decreasing the amount of required structural support. As the metal naturally oxidizes, it creates a self-sealed surface which will not spall, discolor, or require repainting. The perforated panels create a unique façade that sets this parking structure apart from any other.

The amount and size of the perforation vary based on the requirements, creating an overall pattern which is visible from both the exterior and interior of the structure. The pattern that was chosen was derived from a microscopic image of bone marrow. The solids and voids of the image allowed us to design open pockets where the weathered steel skin seems to actually disappear from view. The façade stretches around building creating a dynamic appearance that also has an organic feel.

View of Panel (Close-up)

Were there any significant challenges that arose during the project? If so, how did you respond to them?

One of the greatest design challenges presented to Axis Architects by the client was to create a parking structure with a solution for suicide prevention and fall protection. Unfortunately, a recent increase in suicide attempts by discharged military personnel made this a necessary element associated with the design of this new project. Most parking structures have large openings, which could allow for possible suicide attempts. The exterior skin of the VA parking structure was designed to prevent this by creating a metal cladding system that creates a virtually impenetrable exterior. Not only do the panels create a striking impression to all that view it, the perforated panels satisfy the ventilation requirements by the IBC (International Building Code) to be classified as an open parking structure.

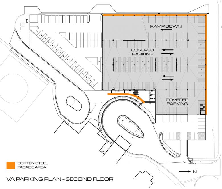
Floor Plan

How does the building relate to contemporary architectural trends, be it sustainability, technology, etc.?

We wanted to stay away from the conventional concrete block parking structure and create something that was not only functional, but also visually appealing. The color of the rusted panels blends in with the beautiful mountainous landscape, as opposed to the typical gauche appearance of a standard gray concrete parking structure.

This project redefines the traditional stack of cars and concrete. Digitally fabricated steel panels provide a stunning façade while simultaneously promoting proper ventilation, and enhancing safety and security. The steel panels are more than just functional – they create an intriguing graphic pattern and are designed to help minimize light pollution in the surrounding neighborhood. Combined with a progressive structural system, this project is significantly less expensive than a typical parking structure of similar size.

The VAMC Parking Structure is an exquisite example of the use of new building technology; the façade is comprised of a custom pattern which required each panel to be numbered individually for future assembly by the laser itself. The erection of the panels was basically a large puzzle where each piece has its place within the overall composition of the façade.

Section

How would you describe the architecture of Utah and how does the building relate to it?

Architecture in Utah has a reputation for being traditional. However, emerging creative and modern design trends are becoming more common and the architecture in the state is constantly evolving. We feel this change is due mostly to a handful of small architectural firms committed to creating and developing outstanding design that will push the envelope of traditional architecture.

The VAMC parking structure is a perfect example of that movement and utilizes the latest technologies available, while changing the standard design for something as simple as a parking structure. Even a parking structure can be a work of art.

Email interview conducted by John Hill.

Vicinity Map

George E. Wahlen VAMC Parking Structure
2013
Salt Lake City, Utah

Client
Department of Veterans Affairs

Architect
Axis Architects
Salt Lake City, UT

Design Principal/Project Architect
Pierre O. Langue, AIA 

Project Manager
Jim Smuin

Project Team
Jeff Douglas

Structural Engineer
BHB Consulting Engineers

MEP/FP Engineer
Van Boerum Frank and Associates (Mech/Plumb)
Envision Engineering (Elec)

Landscape Architect
ArcSitio

Contractor
Pacific North, LLC

Construction Manager
Comtrol, Inc.

Civil Engineer
Great Basin Engineer North

Laser Cut and Bent Cor-ten Panels
Wasatch Laser (pattern provided by architect)

Site Area
5.2 acres

Building Area
109,000 sf

Related articles 

Other articles in this category