German Embassy in Mexico

27. December 2007

Architectural Design:
Staab Architekten
Volker Staab, Alfred Nieuwenhuizen
www.staab-architekten.com
 
Competition Team
Filiz Dogu, Patrick Eckstein
Jürgen Rustler

Project Team
Hanns Ziegler, Jürgen Rustler, Elke
Sparmann, Oliver Kampmann, Martina
Eisler, Julia Renfer, Birgit Knicker,
Micheal Schmid, Helga Blocksdorf,
Manuela Jochheim

Project Supervision
Nuño, Mac Gregor y de Buen

Contractor
Eisenlöffel, Sattner & Partner

Engineering
Winter Ingenieure

Constructed Surface Area
3,472 m2

Landscaping
Levin Monsigny

Art
Renate Wolff

Photography
Gabriela Solis

Location
Ciudad de México

Date
2006

 
Context
How German should a German embassy be? What might be the characteristic features of a German -or European- building within the parameters of current international architecture? It is easy to fall into stereotypes such as rationality or functional and technical rigor. The European tradition of construction, moreover, has its own lineaments, associated with its relationship with context. This suggests that the embassy's exposure to the site, the dialogue with the neighboring buildings, and the use of local materials are not in contradiction with a European constructive identity. Apart from the question of the lot on Avenida Horacio, there was the issue of enclosure: the German embassy wished to present itself as an open, hospitable building, in spite of the increased demand for security created by present circumstances.
 

 
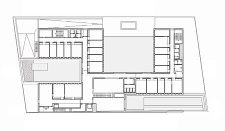
Patios
Apart from functional requirements, the three patios inserted into the volume articulated the design and the layout on the lot, and determined the streetfront image. The walls that delimit the patios are both divisions and façade.
All of the work spaces and waiting areas are oriented toward the patios. This has also been determined by safety concerns. The parts of the building that look onto the street have a spaciousness and formal abstraction far removed from a conventional office building.
Each patio has its individual character. The entry patio, with is stone surfaces and orange trees, is the most public space, serving as a central core and open to vehicular circulation. A treed garden and a patio with a pool are reserved for embassy employees and official events.
 
Structure
The internal organization is clear and simple. The three patios can be seen from the central lobby, making the orientation of the building easy to read. The clarity of the structure and the well-lit circulations created by the open spaces generate pleasing contrasts in transitional zones.

Materials
Many historic buildings in Mexico City are constructed with a rough-textured, reddish-brown volcanic stone known as tezontle. This is the material used for the streetfront façade of the embassy. In clear contrast, the façades of the patios are of light polished stone. The patios strike a different note than the consular building located behind the screen of vegetation. The walls and floors of the patios have the same natural stone. In contrast to the streetfront façade, the windows opening onto the patios are sheer with the plane of the façade, creating an effect of uniformity. Discreet colors are used for the public areas, lending them an official air, while the wooden floors and furniture create a more intimate atmosphere.
 

Photography: Gabriela Solis  
Ground floor plan
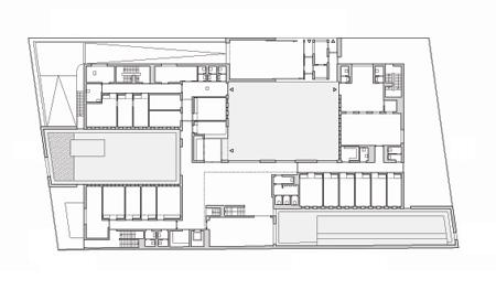
First level  
Section A
Section B  

 
Volker Staab (Heidelberg, 1957) graduated as an architect from the ETH in Zurich in 1984. From 1985 he worked independently in Berlin. In 1996 he founded Staab Architekten with Alfred Nieuwenhuizen. He has been guest lecturer and professor at the Berlin Technical University, the Nuremburg Academy of Arts , and the University of Applied Sciences in Münster. In 2005 he was name to the Berlin Academy of Arts.
 
Alfred Nieuwenhuizen (Bocholt, 1953) graduated as an architect from the Aachen Technical University in 1984. He has worked as an independent architect in Heidelberg and Berlin. He has been a partner in Staab Architekten since 1996.

Architectural Design:
Staab Architekten
Volker Staab, Alfred Nieuwenhuizen
www.staab-architekten.com
 
Competition Team
Filiz Dogu, Patrick Eckstein
Jürgen Rustler

Project Team
Hanns Ziegler, Jürgen Rustler, Elke
Sparmann, Oliver Kampmann, Martina
Eisler, Julia Renfer, Birgit Knicker,
Micheal Schmid, Helga Blocksdorf,
Manuela Jochheim

Project Supervision
Nuño, Mac Gregor y de Buen

Contractor
Eisenlöffel, Sattner & Partner

Engineering
Winter Ingenieure

Constructed Surface Area
3,472 m2

Landscaping
Levin Monsigny

Art
Renate Wolff

Photography
Gabriela Solis

Location
Ciudad de México

Date
2006

Related articles 

Other articles in this category