GH Residence

15. December 2014

GH Residence
2013
Jackson, Wyoming

Client
Peg Gilday and Maho Hakoshima

Architect
Gilday Architects
Jackson, WY

Design Principals
Peg Gilday

Project Team
The talented, collaborative team at Gilday Architects

Structural Engineer
KL+A Structural Engineers

MEP/FP Engineer
Sage Consulting Engineers PLLC, Beaudin Ganze Consulting Engineers

Landscape Architect
Moss Gilday Group, James P. Gilday

Lighting/Interior Designer
Peg Gilday

Contractor
GE Johnson Construction Company

Siding
Charred Cedar

Windows and Doors
Pella

Site Area
7500 sf town lot (.17 acres)

Building Area
2,100 sf plus 750 sf garage

Photographs
David Agnello

Drawings and Models
Gilday Architects

View of entrance from street

Please provide an overview of the project.

Two people met and formed a strong relationship. Prior to meeting him, her divorce led to a search for a lot in the community that she and her two children called home. She found an in-town parcel that came with the ability to walk and bike places and without restrictive design guidelines allowing her greater creativity. He and his two children, also having gone through a similar transition, were without a permanent home. The time had come for them to either build a home together with a very tight budget or move on and sell the lot.

View of house from backyard

The architect and the chef pulled their resources together, including a tremendous amount of sweat equity and creative problem-solving, to build a home that could evolve with their transitioning blended family.  At any time, there might be only the couple and maybe one teen at home, or up to as many as all four kids when home from college.  Then, there is always the extended family wanting to visit the inspiring location.

Close up view of entrance

What are the main ideas and inspirations influencing the design of the building?

The home is designed with a less traditional approach to living. A compact open floor plan experiments with domestic spaces that adapt as a family transforms: main level kitchen/living/dining for embracing the active life of family and friends; upper level loft-like retreat for lounging, sleeping and taking in powerful views; a daylight basement of private compact daylight bedrooms. The interiors are organized by a north-south transparency of living spaces flanked by solid volumes of circulation and support spaces adjacent to neighbors. The garage, which takes advantage of the alley access, allows for an urban courtyard, and has the ability for a future second level.

Rear view of house at night

The overall concept of flexibility carried to the exterior allowing the sourcing of materials during construction process to fit with the vision and the budget. The low maintenance final selections include: working with a peer in the development of sculptured TWICC fiberglass panels, charring their own cedar and reusing faded corrugated steel from an old Quonset hut he owned. They raided the warehouses of friends and wisely reused elements where possible.

View of second floor master bedroom

Were there any significant challenges that arose during the project? If so, how did you respond to them?

The most significant challenge was to align the tight budget to the scope and scale at a very affordable $135/s.f. (not including a huge amount of sweat equity required for the DIY/design-build process).

View of main level kitchen, dining, living room

How does the building relate to contemporary architectural trends, be it sustainability, technology, etc.?

Elements such as added insulation, plenty of natural light, heat recovery ventilator and a gas-fired furnace with domestic water flat solar collectors make for a home that uses half the energy required by code (Energy Star 5 stars plus). The project also allowed for the architect and her talented team in her firm to experiment and provide hands-on design-build services.

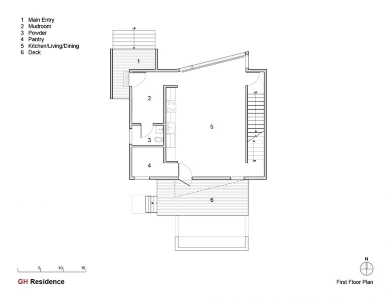
First floor plan

How would you describe the architecture of Wyoming and how does the building relate to it?

Wyoming is a state that embraces the expression of personal freedom and this project allowed that investigation. The home is simple and resourceful with low maintenance materials and building systems to deal with a harsh climate while embracing the beautiful surrounding views from an in-town location.

Email interview conducted by John Hill.

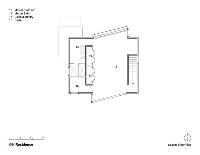
Second floor plan
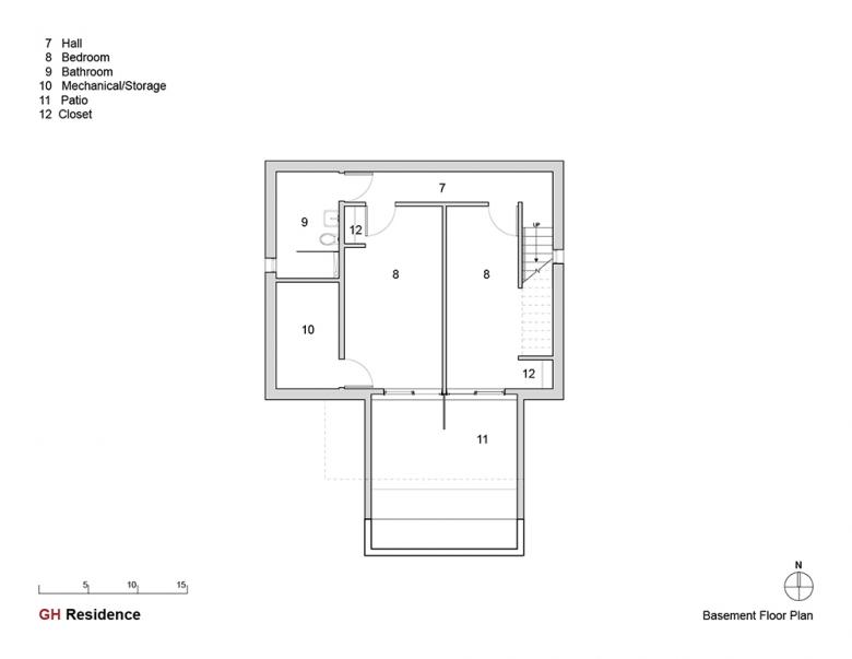
Basement floor plan
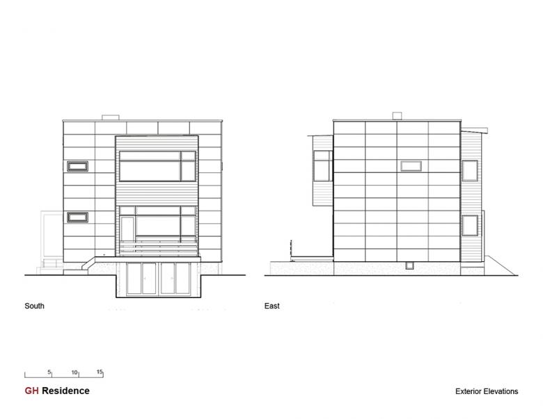
Exterior elevations
Exterior elevations
Site section

GH Residence
2013
Jackson, Wyoming

Client
Peg Gilday and Maho Hakoshima

Architect
Gilday Architects
Jackson, WY

Design Principals
Peg Gilday

Project Team
The talented, collaborative team at Gilday Architects

Structural Engineer
KL+A Structural Engineers

MEP/FP Engineer
Sage Consulting Engineers PLLC, Beaudin Ganze Consulting Engineers

Landscape Architect
Moss Gilday Group, James P. Gilday

Lighting/Interior Designer
Peg Gilday

Contractor
GE Johnson Construction Company

Siding
Charred Cedar

Windows and Doors
Pella

Site Area
7500 sf town lot (.17 acres)

Building Area
2,100 sf plus 750 sf garage

Photographs
David Agnello

Drawings and Models
Gilday Architects

Related articles 

Other articles in this category