Girl Scouts Camp Prairie Schooner
Girl Scouts Camp Prairie Schooner
Summer for parents often means sending the kids to camp. One that any parent would be proud to send their daughter to is the colorful Girl Scouts Camp Prairie Schooner in the woods near Kansas City, Missouri. The bunkhouses by el dorado inc are designed to be used year-round, through the heat of summer but also the cold of winter and the windy seasons in between. The architect answered some questions about the project.
What were the circumstances of receiving the commission for this project?
el dorado, along with other firms, received an RFP for this project. The list of potential design teams was shortened via review of the proposals, at which time we interviewed with a panel of people including the Board, the Executive Director, and the property manager of this campsite, prior to ultimately being selected.
Can you describe your design process for the building?
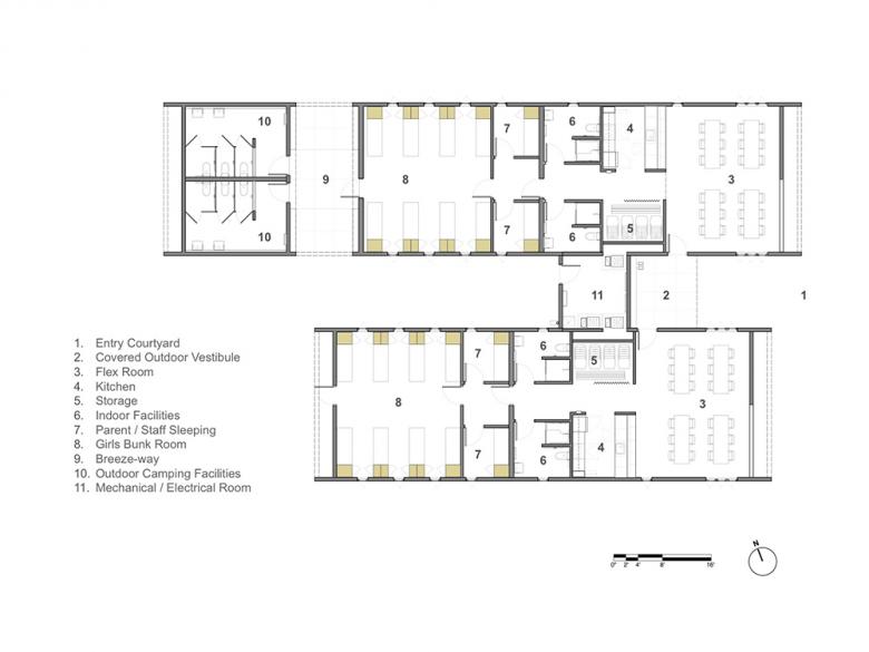
With the goal of a clean, modern facility, and a responsibly managed project that reflects good stewardship of limited funds, the design process began by hearing lessons learned by the owner on previous campsite projects. Careful attention was given to the siting of the building to allow for economical use of infrastructure and easy access, while naturally fitting the structure into the wooded site to avoid unnecessary loss of trees. A simple floor plan allowed for the efficient layout of utilities and structure, while a careful layout of durable materials provided access to the wonderful light and views the site offered. Polycarbonate glazing was an economical way to provide some privacy within each bunkhouse, while bringing into the space sunlight during the day and borrowing electric light from the interior to the surrounding landscape during night. Finally, colors influenced by the iconic Girl Scouts cookie boxes was strategically used to "brand" the two bunkhouses.
How does the completed building compare to the project as designed? Were there any dramatic changes between the two and/or lessons learned during construction?
While there were small refinements during construction, the design team worked closely with the contractor during the design process to verify that the design and budget were coordinated, avoiding any dramatic, stress-inducing revisions.
How does the building compare to other projects in your office, be it the same or other building types?
el dorado is committed to developing design solutions that are both innovative and practical. Every project in our portfolio represents an expression of the unique constraints and opportunities of each site and use, while utilizing common-sense strategies that have proven successful in the past. Regardless of building type, projects of a similar size and budget in the past have shown that keeping the floor plan simple and efficient is cost effective. Materials successfully used in past projects informed the selection of durable, affordable options at Camp Prairie Schooner.
Are there any new/upcoming projects in your office that this building’s design and construction has influenced?
The balance of neutral color / material with a strategic "pop" of color has continued to be explored in projects since Camp Prairie Schooner has been completed.
How would you describe the architecture of Missouri and how does the building relate to it?
Modern architecture in Missouri must meet the challenges of construction and maintenance in a fairly unforgiving environment. Buildings must withstand the extremes of both winter and summer, as well as the wind and 40-50 degree swing days that Spring can offer. The bunkhouses at Camp Prairie Schooner were designed to be utilized year-round. A durable, insulated structure and skin provides shelter and warmth during winter months, while windows are strategically located to provide natural cross ventilation into the higher interior volume during the summer.
Email interview conducted by John Hill.
Girl Scouts Camp Prairie Schooner
2012
Kansas City, Missouri
Client
Girl Scouts of NE Kansas / NW Missouri
Architect
el dorado inc
Kansas City, MO
Design Principal
Douglas Stockman, AIA
Project Architect
Project Team
Structural Engineer
Contractor
Jeff Wasinger
Exterior Siding
Firestone Corrugated Sheet Metal (UC-601, also roofing) / Polygal Glazing / Fiber Cement Board
Flooring
INSL-X Concrete Stain
Lighting Fixtures
Acculite / custom pendants by artist
Built Area
4,800 sf
Photographs
Mike Sinclair
Drawings
el dorado inc







