Gordon Parks Arts Hall

12. December 2016

Gordon Parks Art Hall

2016
Chicago, Illinois

Client
University of Chicago Laboratory Schools

Architect
Valerio Dewalt Train Associates
Chicago, IL

Design Principal
Joe Valerio, FAIA

Project Architect
Randy Mattheis, AIA

Project Manager
Sheri Andrews, AIA, LEED AP BD+C

Project Team
Robert Webber, AIA, LEED AP BD+C; Steve Droll, AIA; Matt Gamache, AIA, LEED AP

Architect of Record
FGM Architects

Structural Engineer
Rubinos & Mesia Engineera

MEP/FP Engineer
ARUP

Landscape Architect
Mikyoung Kim

Lighting Designer
Hugh Lighting Design

Interior Designer
Valerio Dewalt Train Associates

Environmental Graphics
Stephen Killion, SEGD, AIGA

Contractor
Lend Lease

Architectural Lighting
Pinnacle

Tile and Stone
Daltile

Flooring
Forbo Marmoleum

Carpet
Milliken

Site Area
93,350 sf

Building Area
90,000 sf

What were the circumstances of receiving the commission for this project?
Gordon Parks Arts Hall is one part of a larger project that included master planning the renovation and expansion of the existing Laboratory Schools of the University of Chicago. As executed, the project included the renovation of 300,000 square feet in five existing buildings, construction of Earl Shapiro Hall for the youngest of the Lab School students, and construction of the new Gordon Parks Arts Hall. The project selection built on an RFQ (Request for Qualifications) response, with five firms invited to provide RFP (Request for Proposals) response.  The central framework for decision making by the university were interviews in which teams described their approach to the project as a whole. Our team was selected primarily based on merit.

Please provide an overview of the project.
Gordon Parks Arts Hall is a 90,000-square-foot performing, visual, and multi-media arts building for the University of Chicago Laboratory Schools' hands-on, project-based learning curriculum. The building is composed of an inventory of spaces that include light-filled visual and performing art studios, a 750-seat assembly hall, a 250-seat black box theater, a formal gallery, and a large, double-high lobby that serves as an informal gallery for a current rotation of new student work. The Arts Hall is, in many ways, a new makerspace for the Lab School — a place where every space and surface is in service to producing and presenting creative work. The building is a statement of Lab Schools’ value to "present art as a language with unique expressive powers."

What are the main ideas and inspirations influencing the design of the building?
The dominant form of the architecture is a nod to the adjacent, neo-gothic Belfield Towers. By reinterpreting the angular, gabled, neo-gothic roofs and limestone cladding in the Arts Hall, the existing campus is brought into conversation with contemporary design. A central gathering space was an important programmatic component from the onset that drove the design. Research shows that connection to community is an important dimension of academic engagement and success. David Magill, Director of the Lab Schools (now Emeritus), envisioned a space large enough to hold the student the body, but compact enough that students could see each other across the room, such that a single person could speak to the entire audience without the aid of a microphone. This was manifested in a rotunda theater whose form protrudes into the lobby and interrupts the continuity of the south elevation, expressing the building’s interior program on the outside. The efficiency of form and acoustic optimization afforded by a circular plan facilitates the programmatic needs of the school, while embracing Valerio Dewalt Train’s signature architectural shape play. The cylindrical space anchors not only the architecture, but also the school, acting as a kind of town hall where the entire lower school, middle school or upper school can gather as a community.

How does the design respond to the unique qualities of the site?
In addition to the formal and material design which gestures to the neighboring neo-gothic architecture, the new building responds to Scammons Garden to the north and the Lab Schools’ central courtyard to the south. With circulation connected to both exterior spaces, they each become extensions of the interior programs for outdoor play, teaching, and performances. Additionally, the Arts Hall is connected to the Belfield Hall’s towers at each end by glass corridors, seamlessly integrating the new building with the existing campus. 

How did the project change between the initial design stage and the completion of the building?
Two central changes occurred in the project during its development. First, the original program did not provide for an all-school meeting space, which the director of the school identified as central to building a sense of community for the school. The new Arts Hall provided the opportunity to make a space that is a large enough to accommodate 750 people.

Second, there was a recognition that an arts building provides an authentic opportunity to create multi-disciplinary collaborative teaching opportunity. To make a movie, one completes research, writes a script, sets a visual direction, creates costumes and sets, brings in actors and director, makes music, records the content and completes digital editing. The building was organized to facilitate these activities the push students to use all parts of their intelligence and to work together to create the final product.

Was the project influenced by any trends in energy-conservation, construction, or design?

While the project was not necessarily influenced by specific trends, the building does intentionally incorporate several environmentally-conscious design elements and construction methods. The development of a vision for sustainable strategies was an integral part of the initial phases of the project and an integrated part of the development of the design for the new building.

The new building replaces a prior non-functional building. The preservation of outdoor green space that is available for outdoor student activities and visual access to daylight and views were important considerations in the basic planning of the building. At the west side of the building, a new main entrance to the Laboratory Schools campus opens on to a public plaza inviting both the University of Chicago campus community and neighbors into the building.

The high performance glass exterior allows daylight into all interior spaces where daylight is desirable. At the top level, a 20-foot-high north-facing glass curtain wall provides daylight to the visual arts studio spaces. Energy modeling tools were used to optimize the energy performance of the exterior enclosure.
 
A series of solar chimneys provide passive cooling and are a primary architectural feature of the north façade of the building. Solar collecting surfaces face south over the top of the building. Vents open to tunnels below the ground floor spaces so that air is drawn though the spaces passively through the chimneys. As an architectural feature, the vertical towers recall Gothic towers that are throughout the University of Chicago campus. 

Rainwater is collected both through an internal roof drainage system and as it runs off the north façade of the building. A new stormwater management system for the Laboratory Schools campus is located under the green space north of the building. Some storm water is collected and flows along the north edge of the new building and into a landscaped rain garden at the edge of the entrance plaza west of the building. The rain garden is a visible sustainable feature that, like the solar chimneys, is a teaching tool for the faculty of the school.
 
Additionally, during construction, the contractor employed sustainable building practices with 95 percent of construction waste recycled and careful maintenance of good indoor air quality.

What products or materials have contributed to the success of the completed building?
The building has a concrete frame and structure that in many places is left exposed so that students see how the building is built. The primary façade on the north has a semi-custom curtain wall system designed by Innovation Glass, and fabricated by Alliance Glass. The east and west facades of the building are finished with Indiana limestone, a material used consistently across the University of Chicago Campus. Epicore from EPIC Metals is used as both an exterior and interior finish wrapping the drum of the assembly space. Along the central circulation spine of the building, the same material is integrated with vertical light fixtures. As an architectural element, the treatment is an orienting device, helping students to see the simple organization of the plan.

Email interview conducted by John Hill.

Ground Level Plan
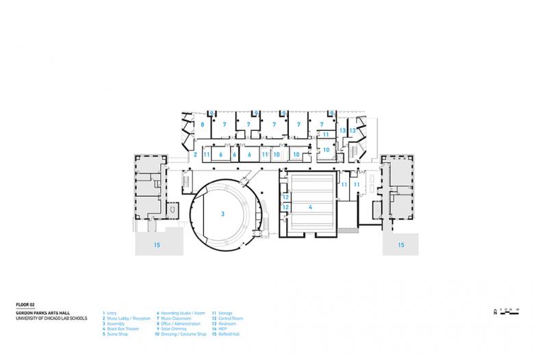
Second Level Plan
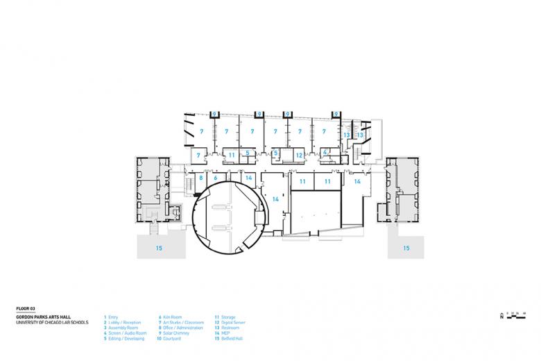
Third Level Plan
South Elevation and Building Section

Gordon Parks Art Hall

2016
Chicago, Illinois

Client
University of Chicago Laboratory Schools

Architect
Valerio Dewalt Train Associates
Chicago, IL

Design Principal
Joe Valerio, FAIA

Project Architect
Randy Mattheis, AIA

Project Manager
Sheri Andrews, AIA, LEED AP BD+C

Project Team
Robert Webber, AIA, LEED AP BD+C; Steve Droll, AIA; Matt Gamache, AIA, LEED AP

Architect of Record
FGM Architects

Structural Engineer
Rubinos & Mesia Engineera

MEP/FP Engineer
ARUP

Landscape Architect
Mikyoung Kim

Lighting Designer
Hugh Lighting Design

Interior Designer
Valerio Dewalt Train Associates

Environmental Graphics
Stephen Killion, SEGD, AIGA

Contractor
Lend Lease

Architectural Lighting
Pinnacle

Tile and Stone
Daltile

Flooring
Forbo Marmoleum

Carpet
Milliken

Site Area
93,350 sf

Building Area
90,000 sf

Related articles 

Other articles in this category