Greater Texas Foundation
Greater Texas Foundation
The Greater Texas Foundation "supports efforts to ensure all Texas students are prepared for, have access to, persist in, and complete post-secondary education." With this mission it's not surprising their new headquarters is located in Bryan, a small town near Texas A&M University, the flagship of one of the largest higher-ed systems in the country. Designed by Furman + Keil Architects, the building strives to create a sense of place in its "middle of nowhere" context, instilling sustainable strategies that earned it a LEED-Gold rating. The architects answered some questions about the project.
What were the circumstances of receiving the commission for this project?
The Greater Texas Foundation sent out an RFQ (Request for Qualifications) to a select set of approximately twenty architects across the state of Texas. Furman + Keil’s RFQ response earned us a place on their short-list, and the client responded well to our interview, where we discussed our collaborative team approach and process. We were able to demonstrate our commitment to a high level of engagement with their board and staff in the planning and design process, a high level of involvement by firm principals, and the depth and breadth of our team expertise.
Can you describe your design process for the building?
Our team approached this project as a collective of small firms coming together around a common set of goals. GTF’s RFQ was clear in its desire for a LEED facility, and asked that a fully integrated team of designers be formed.
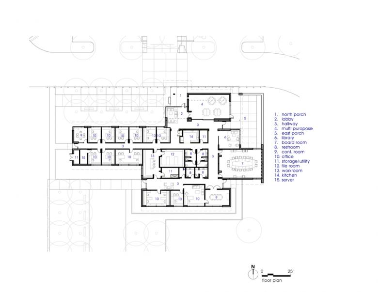
A two-day visioning session and master planning charrette involving our design team and the board and staff of GTF established the programmatic goals for the project.
Communicating directly with the all of the GTF personnel gave us insights into the inner workings and relationships of their organization. These insights created the framework for the project’s master plan and building layout.
The sustainability goals were established very early in the design process during a LEED kickoff meeting attended by all project team members, including the client and the contractor. Exploring the synergies of shared ideas between the typical professional divisions was the underlying reason for the meeting. Through this process of hyper-collaboration, our team developed strategies for optimizing all of the building systems. These efficiencies resulted in overall reductions in energy consumption, water use, raw materials, and overall impact to the ecology.
The existing site presented the challenge of creating a “sense of place” in what most would call “the middle of nowhere”. With no immediate built context, our site strategy relies on a series of orchestrated landscape interventions to transition from the surrounding rural setting to the building. The large retention pond at the approach and the restored prairie of native grasses and trees provides a new context for the building.
The architecture is an attempt to bridge the gap between the local rural traditions of shed roofs found throughout the Brazos River Valley and the local urban traditions of brick construction found in the historic downtown of Bryan, TX.
How does the completed building compare to the project as designed? Were there any dramatic changes between the two and/or lessons learned during construction?
The design team worked very closely with Braun and Butler Construction during the entire design phase, which ensured that the completed building did not deviate far from the project as designed.
One pleasant surprise came about in an early design presentation to the City of Bryan; we communicated our desire to use reclaimed wood as a significant feature in the building, and the city informed us of a warehouse building slated for demolition very near our site. Through a novel collaboration with the City, we were able to salvage a large quantity of antique long-leaf pine from the structure of the demolished building. This very-local reclaimed material is now prominently featured throughout the new building. For example: all the wood floors, exposed roof decking, wood ceilings, the front door and several custom furniture pieces throughout the building. In addition to being a sustainable choice, the long-leaf pine turned out to be the most stunning material in the building.
How does the building compare to other projects in your office, be it the same or other building types?
Our office is best known for our custom residential architecture, so this project represents an exciting new direction for us in terms of program type. The process of working with such a large team of consultants was a new experience for our office, but one that we embraced. While our office generally takes a collaborative design approach for our residential projects, involving key trades at appropriate stages of the design, this was our first foray into a truly integrated project team starting before the design was initiated and continuing throughout the design and construction process. We feel that the success of this project has been significantly amplified by the cross-pollination of disciplines, to the overall betterment of our client and the building.
Despite the inherent differences we encountered throughout the process, we found that much of our past experience transferred smoothly to this new project type. For example, the same methods of careful listening, which we have always employed with our residential clients, were paramount to our design process with GTF. In the end, our larger goal for this project was consistent with that of any of our residential projects, which is to design fitting and long-lasting buildings for end users.
How does the building relate to contemporary architectural trends, be it sustainability, technology, etc.?
The GTF Headquarters received a LEED Gold rating from the USGBC, making it the first LEED building in Bryan, TX. It is located in a part of the city that will be experiencing focused development in the upcoming decade, so we hope that the project raises the bar by example for future sustainable development in the region.
Each material used in the building was scrutinized for its content (source of raw material, recycled content, recyclability), energy to create it, effect on indoor air quality and proximity to the site. Building materials manufactured within 500 miles of the site were prioritized in order to minimize the energy expended during transportation. Twenty percent of the total building materials meet these criteria and of those, at least 50% were extracted, harvested, or recovered within 500 miles of the site.
Solar orientation was a primary consideration when developing the master plan for the project site. The building is oriented to maximize daylight throughout the building while minimizing solar heat gain, thereby reducing energy use for lighting and for cooling. All of the exterior glazing is a high performance glass that efficiently maintains indoor comfort by blocking the sun’s heat, while letting in natural light and views. Every occupied space in the building is flooded with high quality natural light, creating a healthier and more comfortable environment for occupants.
Other sustainable strategies include rainwater collection, an onsite bioswale to help control stormwater runoff, a highly efficient HVAC system, and an airtight and super-insulated thermal envelope.
Email interview conducted by John Hill.
Greater Texas Foundation
2011
Bryan, TX
Client
Greater Texas Foundation
Architect
Furman + Keil Architects
Austin, TX
Design Principal
Philip Keil, AIA
Project Architect
Arthur Furman, Architect, LEED AP
Project Team
Gary Furman, FAIA, LEED AP
Christine McManus
Dave Birt
Structural Engineer
MJ Structures
MEP/FP Engineer
Bay & Associates
Landscape Architect
Land Interactive
Lighting/Interior Designers
Dunman Tita Architecture
Contractor/Construction Manager
Braun & Butler Construction
Master Planning
City Lights Design
LEED Consultant
BioSitu
Glass
Oldcastle/Vitro America
Building Area
9,600 sf





