Haffenden House

11. August 2014

Haffenden House
2014
Syracuse, New York

Client
Withheld

Architect
Jon Lott / PARA-Project
Brooklyn, NY

Design Principal
Jon Lott

Project Team
Hilary Pinnington, Min Lam, Cristina Webb

Contractor
Paul Knepley

Building Area
1,125sf

Photographs
PARA, Nathan Rader

Drawings
PARA

Exterior view from street at dusk

Please provide an overview of the project.

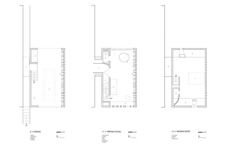
The Haffenden House is a writing studio with a garage/breezeway at ground-level; library, bathtub, and writing space on the second-level; and reading room on the third-level. The project connects to the owner's existing home at the second level, but is otherwise a separate structure. It addresses the suburban context and the repetitive image of “house” creating a blank space for retreat, reflection, and writing.

Exterior view from rear yard

The interior's indifference to context provides seclusive space for work yet maximizes the amount of natural light through the structure's section and skin. The bowl-shaped division in section separates the writing room from the reading space above, increasing indirect light for the second level and avoiding any association with the landscape on the third. The result is a double-height volume at either end in plan (on level 2), with a low ceiling at the entry from the house to the studio, subtly dividing the writing area from the bathtub. The exterior — wrapped in a translucent silicon-impregnated fabric — doubly provides for a filtered light-filled volume without any visual connection to the context. In the rear yard, the fabric is used on the interior as a curtain, offering the owners flexibility to control their privacy.

Exterior view from rear yard

What are the main ideas and inspirations influencing the design of the building?

A couple key ideas were in play: doubling of surfaces and space, and indifference to the context. Translucency was used as means to address light, but also to play with notions of ambiguity. The fabric skin covers the aggregating windows on the front facade, causing a slight blurring of the otherwise crisp lines, treating the group more as a single surface rather than discreet openings. The interior bookcase is made up of alternating openings with mirrored bookends, collapsing foreground and background onto a single surface. The 3rd level ceiling is gold leaf with just enough reflection to produce a vague doubling of itself – resulting in the illusion of a sphere. Lastly, within the context, the simple white box references Gianni Pettana's '72 Ice House, as a blank spot within the image of “house.”

Interior view facing rear yard

To what extent did the clients and/or future users of the building influence the design and the outcome of the building?

The client's first request was that the space have a bathtub and much of the solution is derived from the ritual of bathing, relaxing, and reflection. The volume and materiality of the bath is very much tied to the surface of the floor. It is custom cast in concrete from a mold that was CNC-milled based on three positions of sitting/lounging. The client's body was measured, scanned, and translated into three curves that all blend together, creating a subtly distorted oval bowl. The 3rd level is another kind of bowl – providing options for relaxation and reflection and indirectly light from two linear sklyight slots, redirection the orientaiton vertically outside of itself.

Exterior view from street in snow

Were there any significant challenges that arose during the project? If so, how did you respond to them?

The project required a zoning variance in order to get the 3rd level. It was important that the 3rd level be usable for a reading room and, because the idea of the placeholder with the context, it was equally important that the project reach the common datum of roof ridges in the neighborhood of 30' So we had to go through a variance hearing for approval, which we got by refraining from going any higher than structures within the area and maintaing the 5' side-yard setback.

Section model

How does the building relate to contemporary architectural trends, be it sustainability, technology, etc.?

New materials are constantly being made available for architects practicing today. It is both overwhelming and liberating to have so many options. But experimentation with materiality and new technology is essential to what we do. The silicon fabric we used here is more common in roofs and large canopies, and still relatively new. But it was perfect for our needs on this project and so we altered the techniques required for its intended application. In a general sense, new technologies encourage new techniques, which drives new technologies.

Elevation model

How would you describe the architecture of New York (state) and how does the building relate to it?

Varied. New York's built context has an incredinle range — perhaps more than most states. This project finds itself within an incredibly familiar bandwidth within that range, and while seemingly indifferent, it relies on that familarity in order to work. The project would be very different if it were anywhere else.

Email interview conducted by John Hill.

Exterior perspective view in snow
Interior view of third-level
Exterior view of breezway from rear yard
Exterior view from rear yard at dusk
Site plan
Floor plans
Elevations
Section
Section detail

Haffenden House
2014
Syracuse, New York

Client
Withheld

Architect
Jon Lott / PARA-Project
Brooklyn, NY

Design Principal
Jon Lott

Project Team
Hilary Pinnington, Min Lam, Cristina Webb

Contractor
Paul Knepley

Building Area
1,125sf

Photographs
PARA, Nathan Rader

Drawings
PARA

Related articles 

Other articles in this category